Добавить в корзинуПозвонить
Найти в Дзене
СК Новый дом

Хайтек проект дома 156 м.кв 5 спален с плоской крышей

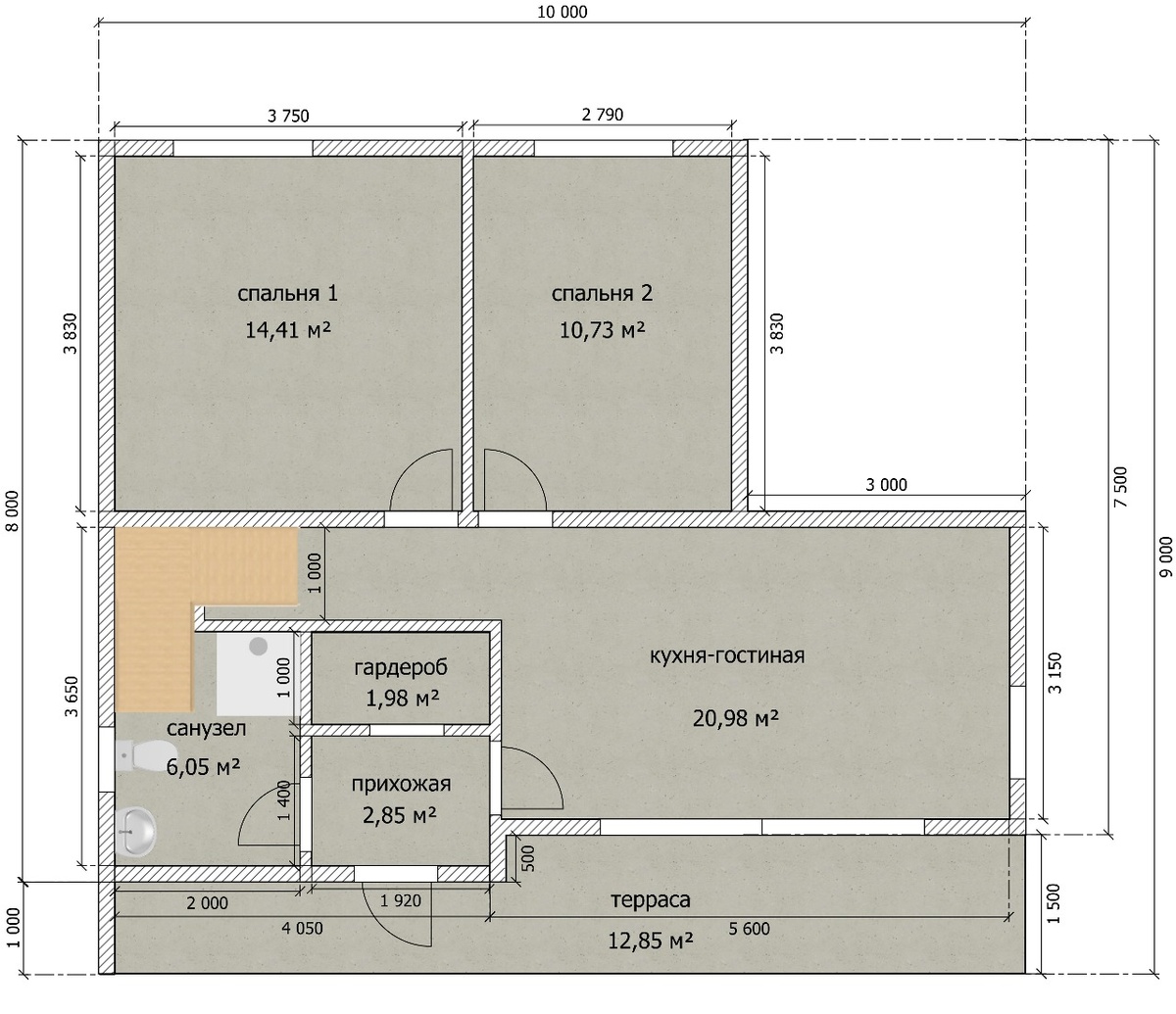
Проект строительства современного двухэтажного дома в стиле хай-тек с плоской крышей. Площадь дома 156 м.кв, габариты 9 на 10 метров, что делает его отличным решением даже для участков с ограниченным пространством. Строительство по семейной ипотеке от банка ВТБ через эскроу счет. Сметный расчет стоимости комплектации "теплый контур" - с фасадом, окнами и входной дверью. Фундамент мелкозаглубленный ленточный. Межэтажное перекрытие деревянные балки. Кровля наплавляемая плоская. Фасад фактурная штукатурка. Лестница деревянная. Каждую неделю новые проекты - Подписаться на канал Смета на странице проекта - https://nd-dsk.ru/pro/nd-4519-3/
Оглавление

Проект строительства современного двухэтажного дома в стиле хай-тек с плоской крышей. Площадь дома 156 м.кв, габариты 9 на 10 метров, что делает его отличным решением даже для участков с ограниченным пространством.

  • 156 м.кв - дом два этажа
  • 9 х 10 метров
  • 5 спален

Особенности

Строительство по семейной ипотеке от банка ВТБ через эскроу счет.

Комплектация

Сметный расчет стоимости комплектации "теплый контур" - с фасадом, окнами и входной дверью. Фундамент мелкозаглубленный ленточный. Межэтажное перекрытие деревянные балки. Кровля наплавляемая плоская. Фасад фактурная штукатурка. Лестница деревянная.

Цена строительства

  • 5 231 412 руб - СИП панели 174 мм
-2
-3
-4
-5
-6
-7
-8

Каждую неделю новые проекты - Подписаться на канал

Смета на странице проекта - https://nd-dsk.ru/pro/nd-4519-3/