Найти в Дзене

Ранее мы показывали уже реализованный стол для рабочей зоны в проекте студии «Точка дизайна

». Сегодня разбираем его изнанку [чертежи] проекта. #чертежи_ШВЕД Корпус выполнен из МДФ со шпоном. Все видимые торцы заданы с единым направлением текстуры — это важно, чтобы изделие в реализации не «распадалось» визуально. В чертежах отдельно зафиксированы толщины деталей и узлы примыкания, чтобы стол выглядел легким, но при этом оставался функциональным в конструкции. Встроенный ящик на скрытых направляющих. Его положение рассчитано так, чтобы он не конфликтовал с посадкой стула и не выходил за габарит столешницы. Это мелочь, которая часто всплывает уже на объекте, поэтому мы всегда фиксируем такие моменты заранее.

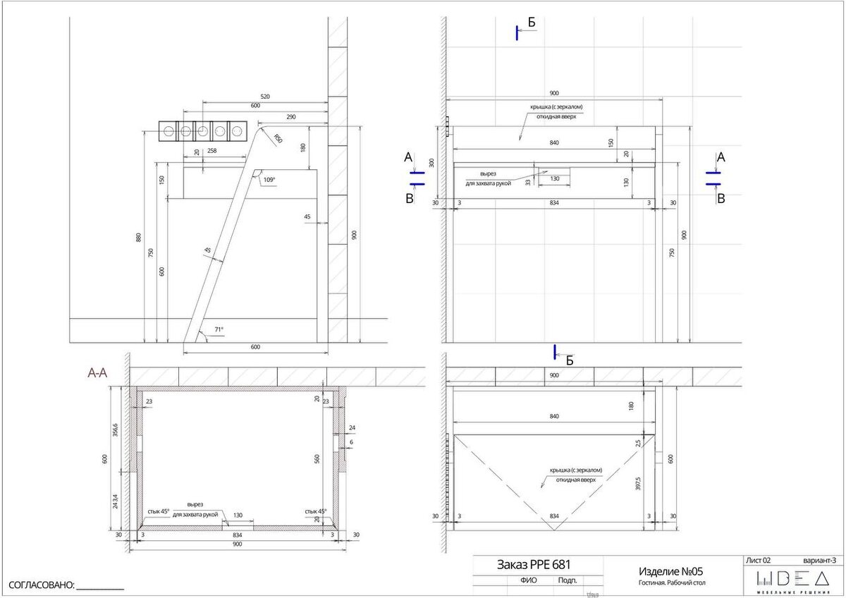
Ранее мы показывали уже реализованный стол для рабочей зоны в проекте студии «Точка дизайна».

Сегодня разбираем его изнанку [чертежи] проекта.

#чертежи_ШВЕД

Корпус выполнен из МДФ со шпоном. Все видимые торцы заданы с единым направлением текстуры — это важно, чтобы изделие в реализации не «распадалось» визуально.

В чертежах отдельно зафиксированы толщины деталей и узлы примыкания, чтобы стол выглядел легким, но при этом оставался функциональным в конструкции.

Встроенный ящик на скрытых направляющих. Его положение рассчитано так, чтобы он не конфликтовал с посадкой стула и не выходил за габарит столешницы. Это мелочь, которая часто всплывает уже на объекте, поэтому мы всегда фиксируем такие моменты заранее.

-2
-3
-4
-5