Найти в Дзене

Проект двухэтажного дома из газобетона с гаражом DTE13

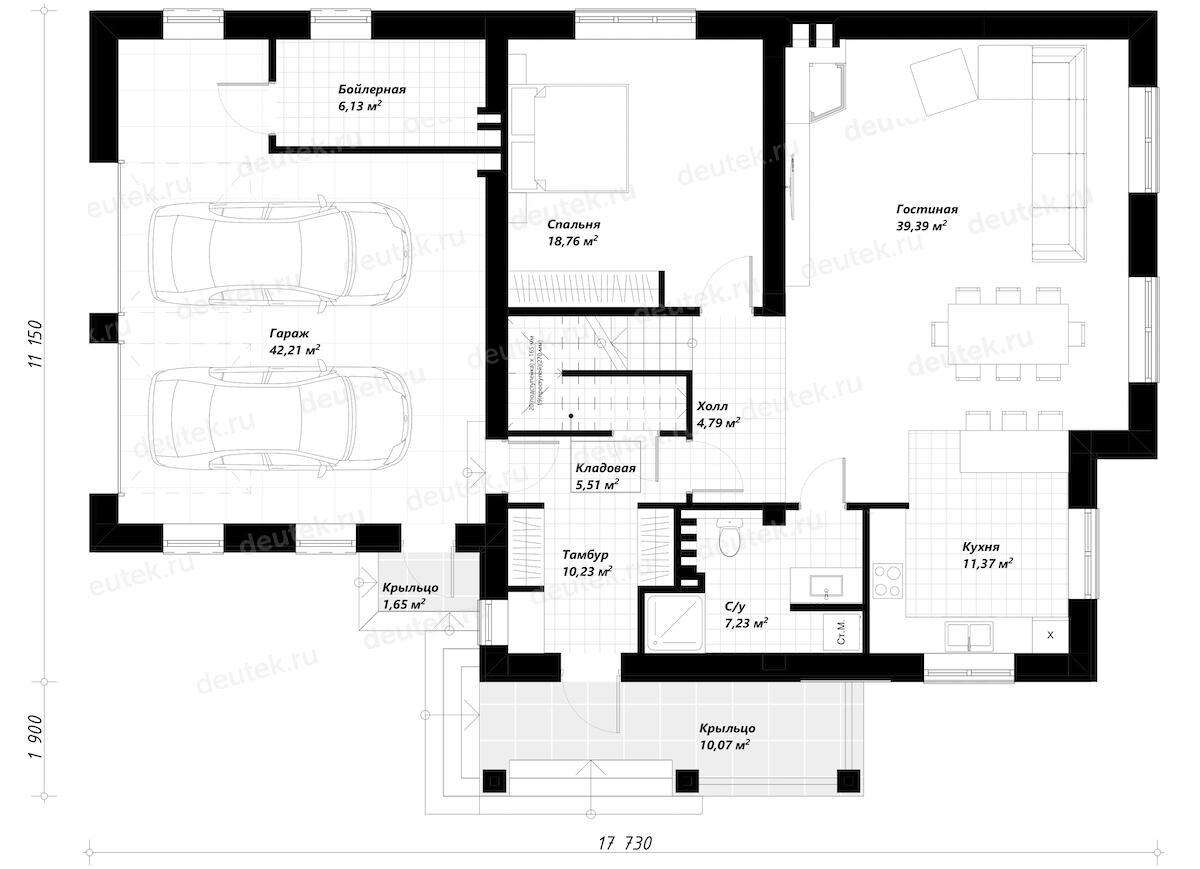
Номер проекта: DTE13 Разделы проекта: Архитектурный и Конструктивный разделы Заказать проект можно на сайте deutek.ru или по телефону +7 (495) 175-30-40 Другие проекты можете посмотреть в этом разделе https://zen.yandex.ru/proektirovaniedomov Представляем современный двухуровневый коттедж в евростиле, общей площадью 245 м2, удобный для жизни семьи из 4-5 человек. К услугам будущих хозяев: 4 спальни; 3 санузла, в том числе две комфортные ванные комнаты; большая гостиная с камином; кабинет; двухместный гараж. За открытым тамбуром с встроенными гардеробными шкафами расположен коридор: повернув из него налево, попадаем в гараж, прямо — кладовая под лестницей, через правую дверь выходим в небольшой холл, объединенный широким проходом с гостиной. По пути заглянем в спальню — и найдем ее достаточно просторной (18,76 м2) и светлой; осмотрим санузел, вмещающий душевую кабину и стиральную машину. Дневные помещения — это обширная гостиная (40 м2) с камином и кухня. В гостиной обозначена зона отды
Номер проекта: DTE13
Разделы проекта: Архитектурный и Конструктивный разделы
Заказать проект можно на сайте deutek.ru или по телефону
+7 (495) 175-30-40
Другие проекты можете посмотреть в этом разделе
https://zen.yandex.ru/proektirovaniedomov
  • Общая площадь: 245 м2;
  • Габариты дома: 17.78 x 13.35 м;
  • Этажность: 2;
  • Фундамент: фундаментная плита с ребрами жесткости;
  • Материал стен: газобетонные блоки 400 мм;
  • Перекрытия: сборное ж.б. / монолитное ж.б. / по деревянным балкам;
  • Крыша: чердачная;
  • Кровля: мягкая черепица;
  • Фасад: штукатурка фасадная/ планкен/ плитка клинкерная;
  • Стиль: европейский.

Представляем современный двухуровневый коттедж в евростиле, общей площадью 245 м2, удобный для жизни семьи из 4-5 человек. К услугам будущих хозяев: 4 спальни; 3 санузла, в том числе две комфортные ванные комнаты; большая гостиная с камином; кабинет; двухместный гараж.

-2

За открытым тамбуром с встроенными гардеробными шкафами расположен коридор: повернув из него налево, попадаем в гараж, прямо — кладовая под лестницей, через правую дверь выходим в небольшой холл, объединенный широким проходом с гостиной. По пути заглянем в спальню — и найдем ее достаточно просторной (18,76 м2) и светлой; осмотрим санузел, вмещающий душевую кабину и стиральную машину. Дневные помещения — это обширная гостиная (40 м2) с камином и кухня. В гостиной обозначена зона отдыха, включающая мягкий уголок, камин и ТВ-панель, а также обеденная зона с большим семейным столом. Кухня (11,37 м2) зонирована полуостровом с тремя посадочными местами. Гараж (42 м2) находится чуть ниже уровня пола жилой части дома. Для автомобилей предусмотрены отдельные въезды, а для входа с улицы — крылечко рядом с главным входом. Небольшую часть гаража занимает бойлерная (6,13 м2).

-3

На втором этаже вы найдете: мастер-спальню (21,61 м2) с санузлом (5,43 м2) и гардеробной (4,47 м2); уютный тихий кабинет (10,83 м2); две равные по площади и расположению детские (12,7 м2); общую ванную (7,6 м2); кладовую (1,86 м2).

Дом полноэтажный, фундамент — монолитная плита с ребрами жесткости. Стены из газобетонных блоков 400 облицованы фасадной штукатуркой, клинкерной плиткой и планкеном. Крыша с холодным чердаком, покрыта мягкой черепицей. Для межэтажных перекрытий предусмотрены различные технологии — монолит, сборно-железобетонные плиты, по деревянным балкам. Габариты дома — 17.78 x 13.35 м. Отсутствующую в проекте террасу заменит просторное крытое крыльцо — на нем справа от входной двери есть площадка, где удобно поставить кресла или чайный столик. Со стороны левого фасада пристроен одноэтажный гараж на две машины, с боковым въездом.

Проект двухэтажного дома из газобетона с гаражом - DTE13

Подробнее с проектом можно ознакомиться на сайте deutek.ru

Подписывайтесь на канал, ставьте лайки.