Найти в Дзене

Проект БП - 115 — это небольшой двухэтажный дом 7x10 м из железобетонных панелей с мансардой и вторым светом, общей площадью 114,5 м²

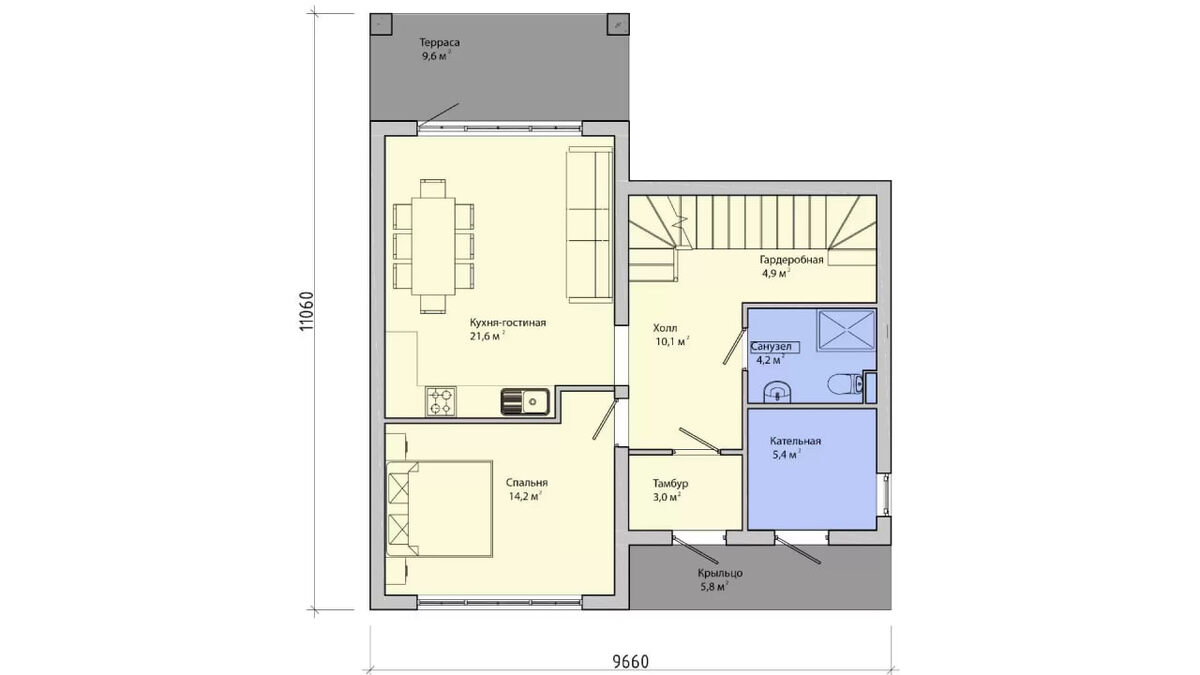
Представляем наш проект — двухэтажный дом БП - 115! ✨ 🏡 Проект БП - 115 — это небольшой двухэтажный дом 7x10 м из железобетонных панелей с мансардой и вторым светом, общей площадью 114,5 м². ✨ Особенности проекта: 🔹 Несущие конструкции наружных стен первого этажа — часторебристые сборные панели с внутренней теплоизоляцией по технологии БЭНПАН Апекс, толщиной 270 мм. 🔹 Перегородки из газобетонных блоков 100 мм, перекрытия — БЭНПАН 405 мм. 🔹 Наружные стены второго этажа — из деревянного каркаса. 🔹 Высота стен первого этажа — 2,74 м, второго — от 1,09 до 2,25 м. 🌟 Подробнее о проекте: https://benpan.ru/project/pb-1552/
❓ Хотели бы построить такой дом? Какие особенности важны для вас при выборе проекта? Поделитесь в комментариях! 📞 Хотите обсудить строительство вашего будущего дома? Звоните прямо сейчас: +7 (495) 260-98-32 #строительство #доммечты #проектдома #недвижимость #бетон #каркасныйдом #строительствоподключ #архитектура #блоки #технологии #жилье #строимвместе

Представляем наш проект — двухэтажный дом БП - 115! ✨

🏡 Проект БП - 115 — это небольшой двухэтажный дом 7x10 м из железобетонных панелей с мансардой и вторым светом, общей площадью 114,5 м².

-2
-3
-4
-5

✨ Особенности проекта:

🔹 Несущие конструкции наружных стен первого этажа — часторебристые сборные панели с внутренней теплоизоляцией по технологии БЭНПАН Апекс, толщиной 270 мм.

🔹 Перегородки из газобетонных блоков 100 мм, перекрытия — БЭНПАН 405 мм.

🔹 Наружные стены второго этажа — из деревянного каркаса.

🔹 Высота стен первого этажа — 2,74 м, второго — от 1,09 до 2,25 м.

🌟 Подробнее о проекте: https://benpan.ru/project/pb-1552/

❓ Хотели бы построить такой дом? Какие особенности важны для вас при выборе проекта?

Поделитесь в комментариях!

📞 Хотите обсудить строительство вашего будущего дома? Звоните прямо сейчас: +7 (495) 260-98-32

#строительство #доммечты #проектдома #недвижимость #бетон #каркасныйдом #строительствоподключ #архитектура #блоки #технологии #жилье #строимвместе