Найти в Дзене

Проект двухэтажного дома из газобетона в европейском стиле DTE2

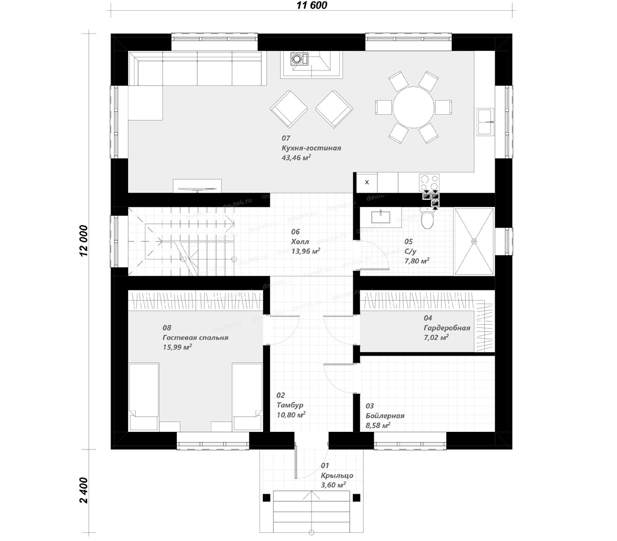
Номер проекта: DTE2 Разделы проекта: Архитектурный и Конструктивный разделы Заказать проект можно на сайте deutek.ru или по телефону +7 (495) 175-30-40 Другие проекты можете посмотреть в этом разделе https://zen.yandex.ru/proektirovaniedomov Семейный дом должен быть вместительным и комфортным. Поэтому мансардный коттедж в европейском стиле, общей площадью 211 м2, заслуживает самого пристального внимания при выборе будущего жилища. Среди его главных особенностей: 4 спальни, в том числе двухместная гостевая; огромный санузел на верхнем ярусе; достаточно мест для хранения — общие гардеробные на каждом этаже и просторные личные шкафы; одинаковые размеры мансардных спален. Большой открытый тамбур позволяет попасть в бойлерную, гардеробную и гостевую спальню. Из расположенного далее холла есть доступ в санузел и на межэтажную лестницу, а открытый проход ведет в кухню-гостиную. Посреди этого большого зала, у внешней стены между панорамными окнами, размещен камин, который отлично просматривает
Номер проекта: DTE2
Разделы проекта: Архитектурный и Конструктивный разделы
Заказать проект можно на сайте deutek.ru или по телефону
+7 (495) 175-30-40
Другие проекты можете посмотреть в этом разделе
https://zen.yandex.ru/proektirovaniedomov
  • Общая площадь: 211.6 м2;
  • Габариты дома: 11.6 x 12 м;
  • Этажность: 2;
  • Фундамент: монолитная плита с ребрами жесткости;
  • Материал стен: цоколь: камень декоративный;
  • Перекрытия: перекрытие 1-го этажа – монолитная ж.б. плита;
  • Крыша: мансарда;
  • Кровля: металлочерепица;
  • Фасад: штукатурка, планкен, декоративный камень;
  • Стиль: европейский.

Семейный дом должен быть вместительным и комфортным. Поэтому мансардный коттедж в европейском стиле, общей площадью 211 м2, заслуживает самого пристального внимания при выборе будущего жилища. Среди его главных особенностей: 4 спальни, в том числе двухместная гостевая; огромный санузел на верхнем ярусе; достаточно мест для хранения — общие гардеробные на каждом этаже и просторные личные шкафы; одинаковые размеры мансардных спален.

-2

Большой открытый тамбур позволяет попасть в бойлерную, гардеробную и гостевую спальню. Из расположенного далее холла есть доступ в санузел и на межэтажную лестницу, а открытый проход ведет в кухню-гостиную. Посреди этого большого зала, у внешней стены между панорамными окнами, размещен камин, который отлично просматривается от самого входа. При желании кухню-столовую можно скрыть с помощью двери, сделав таким образом дневную зону более приватной.

-3

На втором этаже три одинаковые по площади спальни (21,42 м2), холл, вторая гардеробная. «Изюминкой» мансарды, безусловно, является санузел, размер которого равен размеру спален. Здесь поместится вся необходимая сантехника, включая ванну и душевую кабину, а также легко войдет пара стиральных машин и сушильный агрегат.

Основанием дома служит монолитная плита с ребрами жесткости, стены выполнены из газобетона. Между этажами уложена монолитная ж/б плита. Для внешнего оформления выбраны следующие отделочные материалы: для фасадов — штукатурка, планкен и декоративный камень, для цоколя — декоративный камень, для кровли — металлическая черепица. На плане корпус дома выглядит как слабо вытянутый прямоугольник с габаритами 11.6 x 12 м. Крыша мансардного типа, с двумя основными и двумя боковыми скатами. Входной и садовый фасады отличаются большими окнами, скошенными в верхнем ярусе. Боковые фасады остеклены слабо — все это дает возможность поставить дом на относительно узком участке. Крыльцо защищено от осадков лаконичной односкатной крышей на опорах.

Дом спроектирован с учётом потребностей стандартной семьи — в нем предусмотрено место для общения с близкими, уединения и комфортного отдыха.

Проект двухэтажного дома из газобетона в европейском стиле

Подробнее с проектом можно ознакомиться на сайте deutek.ru

Подписывайтесь на канал, ставьте лайки.