Добавить в корзинуПозвонить
Найти в Дзене
ДОМ с умом

Проект "Екатерина"

Этот двухэтажный дом в классическом стиле сочетает в себе традиционную архитектуру с современной эргономикой и комфортом. Он предназначен для семьи из четырех человек и построен на принципе чёткого зонирования: первый этаж — для дневной активности, второй — для приватного отдыха. Общая площадь - 254,6кв.м
Жилая площадь - 228 кв.м
Габариты - 15,4 х 17,8 м
Фундамент: монолитная железобетонная плита
Стены: керамзитоблок 390 мм, утеплитель 100 мм
Отделка фасада: штукатурка
Межэтажное и чердачное перекрытие - железобетонные плиты перекрытия
Крыша - из металлочерепицы по деревянной стропильной системе Внутреннее пространство дома разделено на две функциональные составляющие. На первом этаже расположена просторная кухня-гостиная для дневного времяпровождения, терраса, кладовая, гостевая спальня, ванная комната, а также гараж и котельная. Второй этаж – это ночная зона хозяев дома. Здесь находятся три спальни, одна из которых мастер-спальня с ванной и гардеробной, ванная комната для детей и к
Оглавление

Этот двухэтажный дом в классическом стиле сочетает в себе традиционную архитектуру с современной эргономикой и комфортом. Он предназначен для семьи из четырех человек и построен на принципе чёткого зонирования: первый этаж — для дневной активности, второй — для приватного отдыха.

Характеристики:

Общая площадь - 254,6кв.м
Жилая площадь - 228 кв.м
Габариты - 15,4 х 17,8 м
Фундамент: монолитная железобетонная плита
Стены: керамзитоблок 390 мм, утеплитель 100 мм
Отделка фасада: штукатурка
Межэтажное и чердачное перекрытие - железобетонные плиты перекрытия
Крыша - из металлочерепицы по деревянной стропильной системе

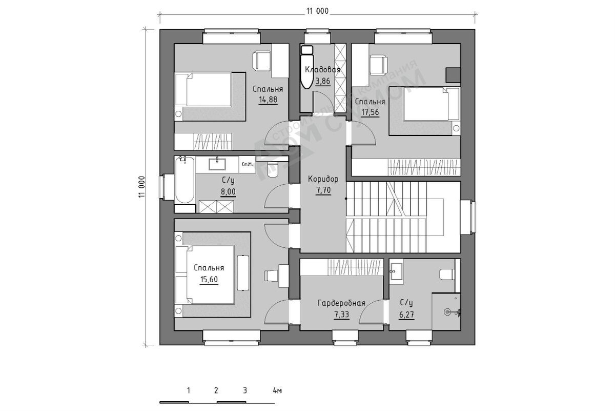
Планировка:

Внутреннее пространство дома разделено на две функциональные составляющие. На первом этаже расположена просторная кухня-гостиная для дневного времяпровождения, терраса, кладовая, гостевая спальня, ванная комната, а также гараж и котельная.

Второй этаж – это ночная зона хозяев дома. Здесь находятся три спальни, одна из которых мастер-спальня с ванной и гардеробной, ванная комната для детей и кладовая.

📌Жилая площадь – 228 кв.м
📌Кухня-гостиная – 72,5 кв.м
📌Спальни – 4 шт.
📌Терраса – 26,5 кв.м
📌Гараж – на 1 авто