Добавить в корзинуПозвонить
Найти в Дзене
G-Art Studio

Трехэтажная история: как мы построили дом-хаб для большой семьи, где всем есть место

Сегодня мы разберем с вами один из наших любимых проектов — дизайн таунхауса для большой и дружной семьи. Это была не просто задача расставить мебель по этажам. Это была головоломка под названием «Как создать личное пространство для каждого, не растеряв по дороге ощущение общего дома?». И знаете, какое ключевое слово стало нашим путеводителем? Гармония. Не та, что скучная и правильная, а живая, спокойная и невероятно удобная. Заказчики попросили современный стиль без кричащих красок и нагромождения декора. Фокус — на качестве жизни, а не на впечатлении гостей. И мы с радостью приняли этот вызов! Входная зона — это не протокольная территория, а первое «Привет!» вашего дома. Мы сделали его светлым и функциональным: большое круглое зеркало (оно станет нашим лейтмотивом!) и умный шкаф с пантографом. Эта волшебная штанга позволяет опускать штангу для плечиков до уровня ребенка — никаких героических прыжков с курткой в руке. Лестницу наверх мы обрамили композицией из линейных бра и подсвет
Оглавление

Сегодня мы разберем с вами один из наших любимых проектов — дизайн таунхауса для большой и дружной семьи. Это была не просто задача расставить мебель по этажам. Это была головоломка под названием «Как создать личное пространство для каждого, не растеряв по дороге ощущение общего дома?».

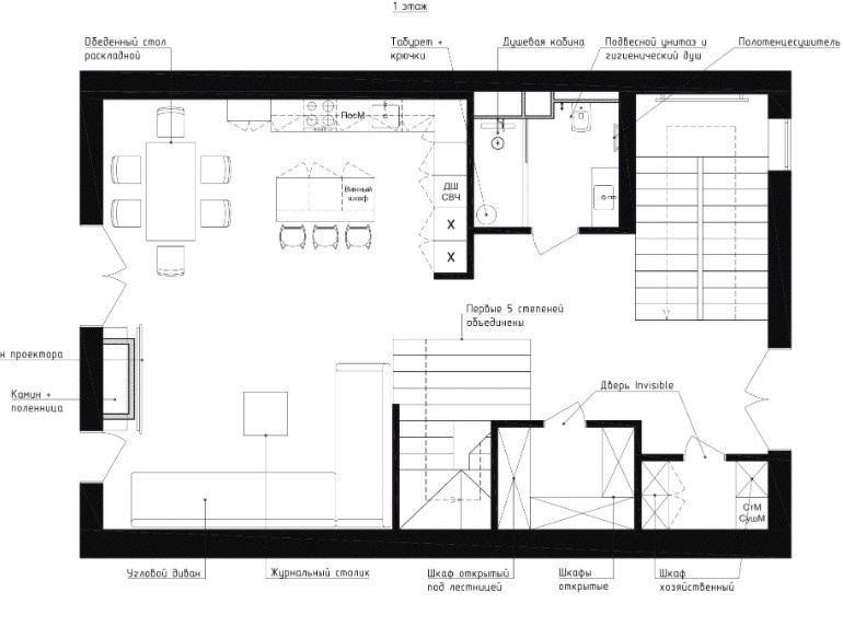
план 1 этажа, фото автора
план 1 этажа, фото автора

И знаете, какое ключевое слово стало нашим путеводителем? Гармония. Не та, что скучная и правильная, а живая, спокойная и невероятно удобная.

-2
Заказчики попросили современный стиль без кричащих красок и нагромождения декора. Фокус — на качестве жизни, а не на впечатлении гостей. И мы с радостью приняли этот вызов!
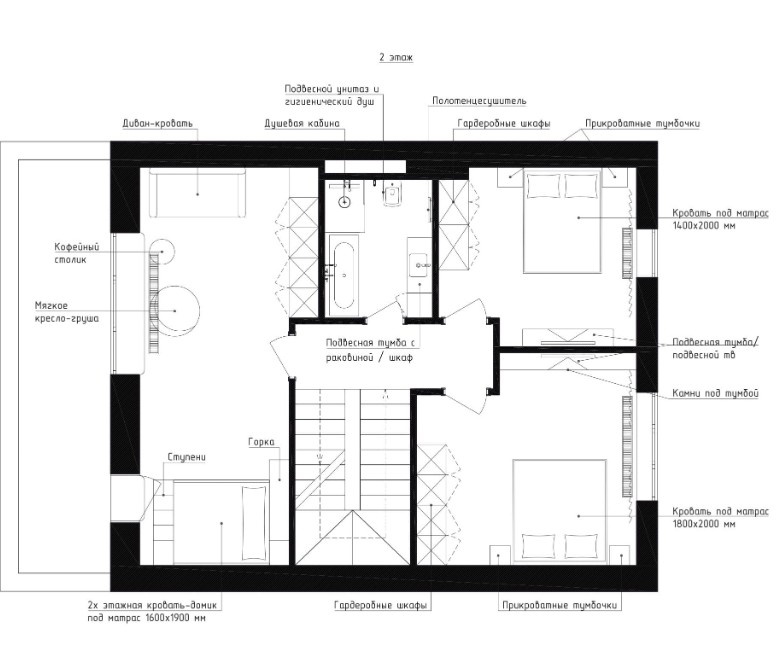
план 3 этажа, фото автора
план 3 этажа, фото автора

Нулевой старт: встречают по одёжке

фото и проект автора
фото и проект автора

Входная зона — это не протокольная территория, а первое «Привет!» вашего дома. Мы сделали его светлым и функциональным: большое круглое зеркало (оно станет нашим лейтмотивом!) и умный шкаф с пантографом.

фото и проект автора
фото и проект автора

Эта волшебная штанга позволяет опускать штангу для плечиков до уровня ребенка — никаких героических прыжков с курткой в руке. Лестницу наверх мы обрамили композицией из линейных бра и подсветили ступени. Получилось как световой портал в личные вселенные.

фото и проект автора
фото и проект автора

Первый этаж: сердце, которое бьется для всех

фото и проект автора
фото и проект автора

Здесь живёт душа дома — кухня-гостиная, объединённая с прихожей. Мы сознательно «растворили» коридор, чтобы пространство пело одним голосом. Цель — чтобы мама, готовя на кухне, не чувствовала себя отрезанной от остальных.

  • Гостиная: акцент — на угловой диван-максимум, заказанный по нашим эскизам, и парящий камин. Главная фишка — проектор с подъемным механизмом. Нужен кинотеатр? Пожалуйста!
фото и проект автора
фото и проект автора
Закончили просмотр — и потолок снова идеально чист. Стены в светло-серой гамме, а углы подчеркнуты тонкой рейкой, добавляющей графичности. Яркие, но не кричащие шторы у камина — тот самый необходимый цветовой импульс.
фото и проект автора
фото и проект автора
  • Кухня: лаконичность в чистом виде. Фасады со скрытыми ручками, благородная мраморная столешница и вся техника встроена. В острове «поселился» винный холодильник — для вечерних семейных посиделок. Светильники серии Iona от Lampatron стали идеальными «драгоценностями» для обеденной зоны.
фото и проект автора
фото и проект автора

Секрет этого этажа — ничего лишнего. Каждый предмет служит комфорту и общению.

Второй этаж: царство бабушек, гостей и детских фантазий

Этот уровень мы посвятили отдыху, тишине и играм.

Гостевые спальни: две симметричные комнаты, как два спокойных оазиса. В них царит та же серая база и паркет, но каждая получила свой характер:
В первой — акцентная стена с асимметричным светом: с одной стороны — крупный подвес, с другой — трековая система, спрятанная в мягкие панели. Современно и очень уютно.

фото и проект автора
фото и проект автора

Во второй — медиазона с углубленной нишей, куда засыпана декоративная галька.

фото и проект автора
фото и проект автора

Получилась тактильная и необычная текстура вровень с полом.

фото и проект автора
фото и проект автора

Детская для двух принцесс: здесь мы позволили себе немного волшебства. Основной цвет стен плавно перетекает с первого этажа, но получает нежное сиреневое обрамление.

фото и проект автора
фото и проект автора

Центр мира — двухъярусный домик-кровать, целая крепость для сна и игр. Мебель с плавными, обтекаемыми формами, безопасная и стильная. И, конечно, выход на большой балкон — для сказок на свежем воздухе.

фото и проект автора
фото и проект автора

Девичья душевая: настроение задает роскошный керамогранит под мрамор Calacatta с золотыми прожилками.

-16

Мебель — светлая карамель, а контраст и изящество добавляют тонкие черные линии фурнитуры.

фото и проект автора
фото и проект автора

Над раковиной поселилась изящная птица-светильник — маленькая поэма в интерьере.

фото и проект автора
фото и проект автора

Третий этаж: личная вселенная родителей

фото и проект автора
фото и проект автора

Убежище для пары, где царит покой и можно сконцентрироваться на себе.

фото и проект автора
фото и проект автора
  • Спальня: здесь нет телевизора. Вместо этого — парящая кровать с подсветкой и биокамин у окна. Только огонь, свет и общение.
  • Гардеробная: не просто кладовая для вещей, а продуманная система. Угловой шкаф разбит на секции под любой тип хранения, а у окна — удобный туалетный столик.
-21

Кабинет-трансформер: наше ноу-хау. Пространство разделено на три зоны:

фото и проект автора
фото и проект автора

Рабочая: мощный стол из слэба на металлической раме.
Для презентаций: на стене — интерактивная доска.
Для отдыха/гостевая: отделена перегородкой из матового стекла. Здесь — кровать в японском стиле и шкаф. При необходимости это полноценная гостевая комната.

фото и проект автора
фото и проект автора

Главный хит: фитостена из стабилизированного мха с подсветкой за рабочим столом. Живой, дышащий арт-объект, снимающий стресс одним своим видом.

фото и проект автора
фото и проект автора

Философия проекта: дом как экосистема

Весь дом объединен палитрой (светло-серый, карамельный, древесный) и материалами. Акценты есть, но они не кричат, а тихо дополняют историю каждой комнаты. Мы использовали много подсветки, круглые зеркала и умные системы (как та же ASKO в постирочной).

фото и проект автора
фото и проект автора

Что получилось в итоге? Не просто красивые картинки. Получилась экосистема для жизни. Этаж для шумных сборов, этаж для тихого отдыха и этаж для личных планов. Дом, где у каждого есть свое «гнездо», но все дороги ведут в общую гостиную-кухню — в то самое сердце, которое мы так старательно наполняли светом, технологиями и теплом.

-26

Этот проект — напоминание, что хороший дизайн не удивляет, а предугадывает. Он молчаливо помогает жить лучше. И ради этого стоит творить.

------------------------------

Как вам такой проект? Поделитесь в комментариях! Что нравится, что, может быть, и нет?

Благодарим вас за то, что читаете наш блог, не забывайте на него подписываться!

Получить нашу консультацию можно здесь.

Рассчитать стоимость вашего дизайн-проекта здесь.

Поддержать автора донатами можно по ссылке.