Добавить в корзинуПозвонить
Найти в Дзене

Очаровательная кухня-гостиная в 2-комнатной квартире

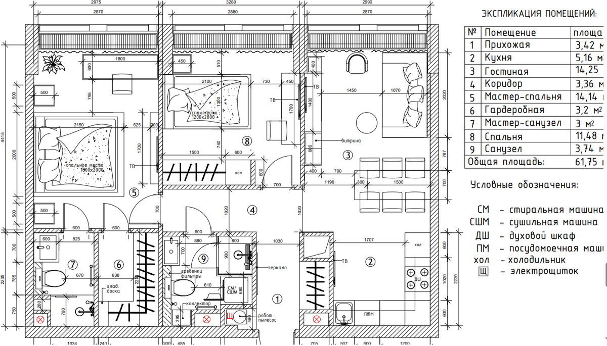
Красивый интерьер можно создать на любой площади, наш сегодняшний пример тому доказательство! Это 2-комнатная квартира в новостройке, ее общая площадь почти 62 м2, а площадь кухни-гостиной – чуть меньше 20 м2. И да, это именно «двушка», хотя кто-то может назвать такую планировку и «евротрешкой», но квартира все равно останется двухкомнатной. Прелесть такой большой кухни в том, что семья с ребенком без проблем может использовать обе комнаты под спальни, сохранив общее пространство в квартире. И да, это помещение хочется видеть максимально красивым, уютным и комфортным. Ведь здесь мы проводим значительную часть жизни, это не спальня, где мы основное время проводим во сне и эстетика, как ни крути, не стоит на первом месте. Наличие панорамного окна во всю стену – это, с одной стороны, красиво, много света, ощущение простора и воздуха, но с другой стороны, это холод в зоне окна зимой и жара в солнечную погоду летом. Первое решено здесь за счет внутрипольного конвектора вдоль всего окна, он

Красивый интерьер можно создать на любой площади, наш сегодняшний пример тому доказательство! Это 2-комнатная квартира в новостройке, ее общая площадь почти 62 м2, а площадь кухни-гостиной – чуть меньше 20 м2. И да, это именно «двушка», хотя кто-то может назвать такую планировку и «евротрешкой», но квартира все равно останется двухкомнатной.

Портфолио Remplanner
Портфолио Remplanner

Прелесть такой большой кухни в том, что семья с ребенком без проблем может использовать обе комнаты под спальни, сохранив общее пространство в квартире. И да, это помещение хочется видеть максимально красивым, уютным и комфортным. Ведь здесь мы проводим значительную часть жизни, это не спальня, где мы основное время проводим во сне и эстетика, как ни крути, не стоит на первом месте.

Портфолио Remplanner
Портфолио Remplanner

Наличие панорамного окна во всю стену – это, с одной стороны, красиво, много света, ощущение простора и воздуха, но с другой стороны, это холод в зоне окна зимой и жара в солнечную погоду летом. Первое решено здесь за счет внутрипольного конвектора вдоль всего окна, он создает тепловую завесу и отсекает холод.

Портфолио Remplanner
Портфолио Remplanner

Плюс небольшой камин в ТВ-зоне, который не только создает настроение, но и служит дополнительным источником тепла. Вторая проблема решается с помощью плотных штор, чаще всего рулонных, которые опускаются по необходимости, и кондиционера.

Портфолио Remplanner
Портфолио Remplanner

В этом проекте очень красивое сочетание цветов и фактур. Светлую базу в серо-бежевом оттенке красиво дополняет синий акцентный цвет. Его пропорции четко выверены, присутствуют в разных плоскостях и везде точечно, не перегружая общую картину. Такой оттенок синего при правильном сочетании выглядит роскошно, освежающе и благородно. Ну и просто шикарно подошел к этому интерьеру медовый оттенок напольного покрытия.

Портфолио Remplanner
Портфолио Remplanner

В ТВ-зоне у нас минимум предметов, лишь небольшая тумба, куда встроен камин, и большая витрина с элегантной подсветкой и ручками из металла цвета золота, как и прочие металлические аксессуары в помещении. Решение было осознанным, потому что это место отдыха, а не еще одна комната с хранением бесконечных вещей.

Портфолио Remplanner
Портфолио Remplanner

Отделка стен – это сочетание краски и декоративной штукатурки с тщательно подобранным тоном. Довольно простое технически решение, но смотрится очень красиво, неброско и стильно. Штукатурка в обрамлении молдингов смотрится, как шелк, натянутый на подрамник, легкие переливы, слабо выраженная фактурность. В этом интерьере в принципе царит дух классики с ее элегантностью и благородным блеском.

Портфолио Remplanner
Портфолио Remplanner

Кстати, фактура штукатурки здесь перекликается с текстурой плитки, выбранной для фартука в зоне кухни. А еще одно изящное решение — зеркало на всю высоту пенала с холодильником. Оно создает иллюзию расширения пространства и увеличивает объем света в обеденной зоне.

Портфолио Remplanner
Портфолио Remplanner

Сама кухня компактная, угловая, но спроектирована так, что на ней достаточно места для готовки и хранения всего необходимого. Светлый цвет фасадов не только вписывается в общую цветовую гамму, но и необходим на таком удалении от окна. Иначе кухня казалась бы темным пятном и визуально уменьшала бы объем комнаты. Кстати, обратите внимание на еще одну эффектную деталь — золотой цоколь! Кто бы что ни думал, но в интерьере с золотыми акцентами он смотрится более чем уместно.

В нашем портфолио собрано множество реализованных проектов, часть из них с визуализациями, возможно, какие-то идеи вам пригодятся. Ну а если вы вы уже знаете, чего хотите, но вам нужна помощь с проектом — оставляйте заявку на сайте, будем рады помочь!