Добавить в корзинуПозвонить
Найти в Дзене
ТАК МОЖНО | 1530mm.design

Ремонт гостиной-столовой и кухни. Без надрыва и лишних затрат

Уже довольно давно я занимаю немного специфическую нишу в сфере дизайна интерьеров. Большинство запросов, с которыми ко мне приходят, не про «дорого-богато» и не про гонку за трендами.
Это ремонты , где важно сохранить здравый смысл, уважение к бюджету и ощущение дома, а не шоурума.
Проект, который я вам сейчас покажу, как раз из таких.
Гостиная-столовая и кухня в частном доме, чистый лист и уже привычный мне запрос: уютно, самобытно и без лишних усложнений.
Заказчице был близок образ немного советского интерьера.
Не как копирование прошлого, а как ощущение. Орнаменты, вышивка, этнические мотивы, предметы с характером.
Мы не воссоздавали эпоху и не делали интерьер «под музей».
Скорее аккуратно перевели знакомые образы на современный язык. В этом проекте есть несколько простых, но точных решений.
Например, смещение потолочного светильника относительно центральной гипсовой розетки.
Мелочь, которая сразу снимает ощущение шаблонности. Белые двери с остеклением и раскладкой добавили возду
Оглавление

Уже довольно давно я занимаю немного специфическую нишу в сфере дизайна интерьеров. Большинство запросов, с которыми ко мне приходят, не про «дорого-богато» и не про гонку за трендами.
Это ремонты , где важно сохранить здравый смысл, уважение к бюджету и ощущение дома, а не шоурума.

Проект, который я вам сейчас покажу, как раз из таких.
Гостиная-столовая и кухня в частном доме, чистый лист и уже привычный мне запрос: уютно, самобытно и без лишних усложнений.

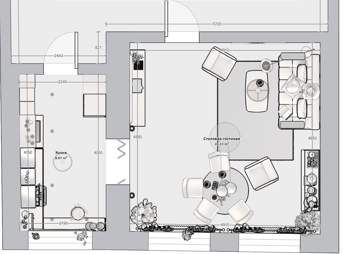
Планировочное решение двух помещений
Планировочное решение двух помещений

Про стиль без реконструкции эпохи

Заказчице был близок образ немного советского интерьера.
Не как копирование прошлого, а как ощущение.

Орнаменты, вышивка, этнические мотивы, предметы с характером.
Мы не воссоздавали эпоху и не делали интерьер «под музей».
Скорее аккуратно перевели знакомые образы на современный язык.

Эскизный вид сверху того, что у нас получилось
Эскизный вид сверху того, что у нас получилось

Про приемы, которые создают характер

В этом проекте есть несколько простых, но точных решений.
Например, смещение потолочного светильника относительно центральной гипсовой розетки.
Мелочь, которая сразу снимает ощущение шаблонности.

Белые двери с остеклением и раскладкой добавили воздуха и света.
Еще в этом доме любят принимать гостей, так что сохранили место для возможности разложить круглый стол на большой овальный.
Гостиная получилась немного советской по настроению, но современной по комфорту.
Несложной в реализации, но очень "своей" и по-своему уникальной.

Сохраняем и вписываем в интерьер то, что уже имеем и ценим

Мои заказчики часто сами подсказывают мне точки опоры и то, чем можно вдохновиться. Здесь был запрос сохранить и вписать оформленную коллекцию марок, бабушкин чудесный сервиз с анемонами и довольно качественный, но морально устаревший раскладной диван.

Вещи, которые предстояло вписать в интерьер
Вещи, которые предстояло вписать в интерьер

С рамками и сервизом все понятно, им несложно найти место. Но что делать с диваном? Да тоже, в общем-то, решаемая "малой кровью" задачка.

Поменяли обивку и ножки на более актуальные деревянные, добавили декоративные подушки с вышивкой, подходящие к скатерти и шторам.
Можно даже заказать все три элемента на одном производстве.

Также добавили два акцентных кресла (такие можно найти в неплохом состоянии на барахолках или на условном Авито и поменять обивку). Красное кресло можно переставлять ближе к дивану для просмотра кино с экрана проектора.

Покажу еще один дополнительный прием, который иногда советую заказчикам. Шторы в одном стиле и из одного материала, но разных цветов:

Эскиз с примером оформления штор
Эскиз с примером оформления штор

В данном проекте решили отказаться от этого решения.

Про кухню без фокусов

Кухня здесь — не про вау-эффект.
Она про удобство, логику и ежедневную жизнь.

Понятные материалы, простые решения, функциональность без усложнений.
Когда кухня работает, а не требует постоянного внимания.

На кухне, при помощи толковых мебельщиков, можно сделать мебельный корпус, который закроет от глаз газовый котел и частично трубы. Нужно будет продумать вентиляционные аккуратные отверстия. Порекомендовала заказчице сделать одновременно короб для котла и дополнительное хранение.

И, напоследок, лаконичная и приятная обратная связь от заказчицы:

Отзыв
Отзыв

Финал

Я люблю такие проекты.
Где не нужно объяснять, почему здесь так — это просто чувствуется.

Если откликнулось — вы знаете, где меня найти.

Мой ТГК
Мое расширенное портфолио
Мой Инстаграм