Добавить в корзинуПозвонить
Найти в Дзене

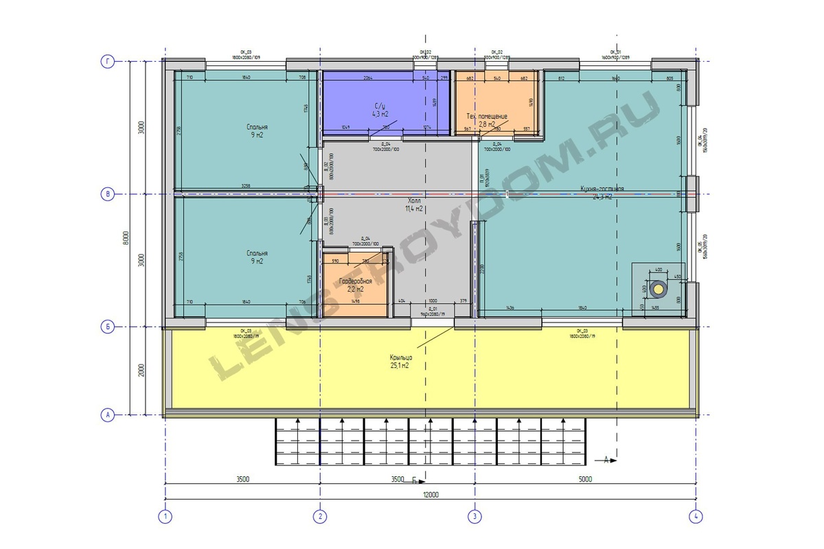
Еще один дом на который будем заезжать в ближайшее время в КП «Центральное Раздолье, 2», Приозерский район р

н. Здесь мы будем строить одноэтажный каркасный дом с террасой по проекту Scandi M. Общий размер дома 12х8 м, жилая основа 12х6 м + терраса 12х2 м. Из помещений в доме предусмотрены кухня-гостиная, две спальни, совмещенный СУ, тех, помещение, гардеробная и холл. За процессом строительства можно следить по тегу #раздолье_scandi_m #ленстройдом #каркасныедома #раздолье_scandi_m lenstroydom.ru +7 (812) 408-30-08 скандимини.рф +7 (812) 504-80-80 clck.ru/3Q8fnK

Еще один дом на который будем заезжать в ближайшее время в КП «Центральное Раздолье, 2», Приозерский район р.н. Здесь мы будем строить одноэтажный каркасный дом с террасой по проекту Scandi M.

Общий размер дома 12х8 м, жилая основа 12х6 м + терраса 12х2 м.

Из помещений в доме предусмотрены кухня-гостиная, две спальни, совмещенный СУ, тех, помещение, гардеробная и холл.

За процессом строительства можно следить по тегу #раздолье_scandi_m

#ленстройдом #каркасныедома #раздолье_scandi_m

lenstroydom.ru

+7 (812) 408-30-08

скандимини.рф

+7 (812) 504-80-80

clck.ru/3Q8fnK

-2