Найти в Дзене
Артек студия

НИКОГДА НЕ ДЕЛАЙТЕ ЭТОГО В СВОЕЙ ПЛАНИРОВКЕ

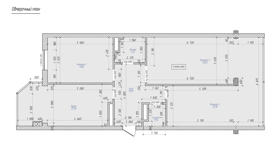
! ❌ не делайте отдельную гостино и отдельно кухню. Отдавайте предпочтение объединенной зоне, если это позволяют требования ❌ не проектируйте один санузел, если в вашей семье четверо и более человек ❌ НЕ делайте проходные комнаты. Спальня или кабинет, через которые нужно идти в другую комнату, — это потеря приватности и вечный дискомфорт. ❌ НЕ экономьте на хранении у входа. Одна маленькая вешалка на семью = горы курток на стуле, куча обуви в коридоре. Продумайте полноценную прихожую с шкафом/системой хранения сразу. (на фото планировка той самой квартиры в Казахстане, о которой мы рассказывали выше)

НИКОГДА НЕ ДЕЛАЙТЕ ЭТОГО В СВОЕЙ ПЛАНИРОВКЕ!

❌ не делайте отдельную гостино и отдельно кухню. Отдавайте предпочтение объединенной зоне, если это позволяют требования

❌ не проектируйте один санузел, если в вашей семье четверо и более человек

❌ НЕ делайте проходные комнаты. Спальня или кабинет, через которые нужно идти в другую комнату, — это потеря приватности и вечный дискомфорт.

❌ НЕ экономьте на хранении у входа. Одна маленькая вешалка на семью = горы курток на стуле, куча обуви в коридоре. Продумайте полноценную прихожую с шкафом/системой хранения сразу.

(на фото планировка той самой квартиры в Казахстане, о которой мы рассказывали выше)

-2