Найти в Дзене
Мастерская дизайнера

Планы квартиры с двумя уровнями и террасой для подготовки демонтажа и монтажа перегородок и перекрытий

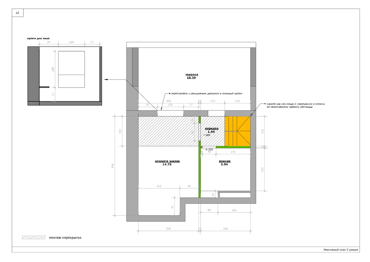
В этом отчете представлены предварительные итоги работы над планировочным решением двухуровневой квартиры и подготовка чертежей для первого этапа черновых работ: демонтаж и монтаж перегородок, а также частичное перекрытие между уровнями. Квартира предназначена для семейной пары с взрослой дочерью. Для нее мы обустроили второй уровень с выходом на террасу. Посмотреть, что получилось на текущем этапе, можно в этом ролике: Пора начинать черновые работы. Для этого нужны чертежи демонтажа старых перегородок, монтажа новых и план обустройства перекрытия. Также предстоит расширить проем, превратив его в окно, и переделать второе окно в дверной проем, ведущий на террасу. Я подготовил все чертежи в SketchUp и LayOut на текущем этапе работы. На данном этапе важно точно определить расположение перегородок, лестницы и проемов в перекрытии. Мебель пока можно будет менять. Вся подборка материалов по этому проекту здесь: Услуги по дизайну интерьеров: Уроки по программам для дизайна:
Оглавление

В этом отчете представлены предварительные итоги работы над планировочным решением двухуровневой квартиры и подготовка чертежей для первого этапа черновых работ: демонтаж и монтаж перегородок, а также частичное перекрытие между уровнями.

Квартира предназначена для семейной пары с взрослой дочерью. Для нее мы обустроили второй уровень с выходом на террасу.

Посмотреть, что получилось на текущем этапе, можно в этом ролике:

Пора начинать черновые работы. Для этого нужны чертежи демонтажа старых перегородок, монтажа новых и план обустройства перекрытия. Также предстоит расширить проем, превратив его в окно, и переделать второе окно в дверной проем, ведущий на террасу.

Я подготовил все чертежи в SketchUp и LayOut на текущем этапе работы.

Планы демонтажа:

Планы монтажа:

Эскизы с расстановкой мебели и оборудования:

Планы эскизные с расстановкой мебели и оборудования:

На данном этапе важно точно определить расположение перегородок, лестницы и проемов в перекрытии. Мебель пока можно будет менять.

Вся подборка материалов по этому проекту здесь:

Двухуровневая квартира с террасой | Мастерская дизайнера | Дзен

Услуги по дизайну интерьеров:

Дмитрий Красса - отзывы, фото проектов, сайт, Архитекторы, Гардеробные и кладовые комнаты, Декораторы и стилисты интерьера, Детские и пеленальные, Дизайнеры интерьера, Корпусная мебель, Лестницы и перила, Освещение, Проектирование и строительство, Производство и установка кухонь, Ремонт и отделка квартир и домов, Специалисты по ремонту кухни, Москва, graphproject52

Уроки по программам для дизайна:

Дмитрий Красса, дизайнер интерьера и преподаватель