Найти в Дзене

Проект двухэтажного дома по каркасной технологии в европейском стиле - DTE3

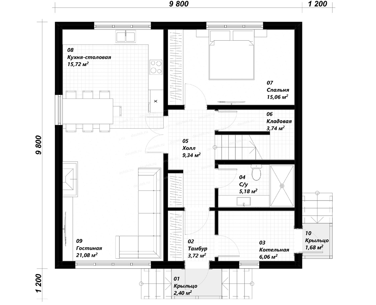
Номер проекта: DTE3 Разделы проекта: Архитектурный и Конструктивный разделы Заказать проект можно на сайте deutek.ru или по телефону +7 (495) 175-30-40 Другие проекты можете посмотреть в этом разделе https://zen.yandex.ru/proektirovaniedomov Современный горожанин, мечтающий о собственном доме, видит идеальное жилище красивым, функциональным и удобным для жизни, несложным в возведении и эксплуатации. Возможно, таким, как этот каркасный мансардный коттедж в европейском стиле, общей площадью 146 м2. Он спроектирован для небольшой семьи, отличается компактностью и выраженным ощущением гармонии и уюта. Для будущих хозяев предусмотрено 3 спальни, двусветная гостиная с камином, два санузла, отдельная постирочная и выделенное помещение котельной. На первом этаже открытая дневная зона из двусветной гостиной и кухни-столовой. Интерьер без стен и потолка дарит ощущение пространственности и свободы; этот эффект усиливают большие боковые окна. Также на первом ярусе запланирована спальня, кладовая,
Номер проекта: DTE3
Разделы проекта: Архитектурный и Конструктивный разделы
Заказать проект можно на сайте deutek.ru или по телефону
+7 (495) 175-30-40
Другие проекты можете посмотреть в этом разделе
https://zen.yandex.ru/proektirovaniedomov
  • Общая площадь: 146 м2;
  • Габариты дома: 9.8 x 9.8 м;
  • Этажность: 2 (вкл. мансардный);
  • Фундамент: свайно-винтовой;
  • Материал стен: наружные стены: каркас – 150 мм. с доп. утеплением 50 мм.; цоколь: штукатурка цокольная;
  • Перекрытия: по деревянным балкам;
  • Крыша: мансарда;
  • Кровля: металлочерепица;
  • Фасад: штукатурка, имитация бруса;
  • Стиль: европейский.

Современный горожанин, мечтающий о собственном доме, видит идеальное жилище красивым, функциональным и удобным для жизни, несложным в возведении и эксплуатации. Возможно, таким, как этот каркасный мансардный коттедж в европейском стиле, общей площадью 146 м2. Он спроектирован для небольшой семьи, отличается компактностью и выраженным ощущением гармонии и уюта. Для будущих хозяев предусмотрено 3 спальни, двусветная гостиная с камином, два санузла, отдельная постирочная и выделенное помещение котельной.

-2

На первом этаже открытая дневная зона из двусветной гостиной и кухни-столовой. Интерьер без стен и потолка дарит ощущение пространственности и свободы; этот эффект усиливают большие боковые окна. Также на первом ярусе запланирована спальня, кладовая, санузел и котельная с выходом на отдельное крыльцо.

-3

На втором этаже — личная зона хозяев, состоит из двух спален, санузла и постирочной. Во всех спальнях предусмотрены встроенные гардеробные шкафы. Часть верхнего уровня занимает пространство «второй свет». Из общего холла открыт прекрасный обзор гостиной и выход на уютный деревянный балкончик.

Технические решения, дизайн Дом ставится на свайно-винтовой фундамент. В основе плана — ровный квадратный корпус габаритами 9.8 x 9.8 м и двускатная крыша с дополнительным боковым скатом. Между каркасом утеплитель 150 мм + дополнительный утепляющий слой 50 мм. Кровля из металлической черепицы. Экстерьерные особенности: Хорошо остекленные фронтальный и садовый фасады — и скромно оформленные боковые стороны. Подобный контраст отчасти обусловлен планировкой, поскольку техпомещения располагаются вдоль глухих стен. Играют роль и соображения приватности, что актуально для узких участков, «зажатых» между соседями. Трапециевидные окна мансарды сообщают зданию особую эстетику и элегантность, подчеркивая привлекательность фасадов. Комбинация в отделке двухцветной штукатурки и имитации бруса. Получившийся «полосатый» рисунок визуально увеличивает объем здания.

Функциональный и атмосферный коттедж понравится как «практикам», любящим четкость и порядок во всем, так и творческим натурам, черпающим вдохновение от пребывания на природе.

Проект двухэтажного дома по каркасной технологии в европейском стиле

Подробнее с проектом можно ознакомиться на сайте deutek.ru

Подписывайтесь на канал, ставьте лайки.