Найти в Дзене

Проект двухэтажного дома из газобетона с гаражом - DTE-34

Номер проекта: DTE-34 Разделы проекта: Архитектурный и Конструктивный разделы Заказать проект можно на сайте deutek.ru или по телефону +7 (495) 175-30-40 Другие проекты можете посмотреть в этом разделе https://zen.yandex.ru/proektirovaniedomov Будучи в поисках красивого и функционального загородного дома, оцените предложение от компании «Эвастрой» под номером П7. Это трехуровневый особняк с башней, общей площадью 320 м2. Основные достоинства подобного жилья: яркая архитектура, которая подчеркнет аристократизм владельца и позволит ощутить себя хозяином настоящего замка; отличная функциональная программа включает 5 спален (в том числе две гостевых), гостиную с камином, просторный гараж и вместительный цокольный ярус, куда можно вынести хозяйственные помещения; оригинальная геометрия эркерных комнат и интересная закругленная терраса. Планировка. В цокольном ярусе организована котельная, вместительный хозблок, кладовая и просторная постирочная площадью почти 30 м2. Попасть в цоколь можно п
Номер проекта: DTE-34
Разделы проекта: Архитектурный и Конструктивный разделы
Заказать проект можно на сайте deutek.ru или по телефону
+7 (495) 175-30-40
Другие проекты можете посмотреть в этом разделе
https://zen.yandex.ru/proektirovaniedomov
  • Общая площадь: 320 м2;
  • Габариты дома: 13.76 x 19.66 м;
  • Этажность: 2 (вкл. цокольный и мансардный);
  • Фундамент: монолитное ж/б плита;
  • Материал стен: кирпич;
  • Перекрытия: монолитное ж/б;
  • Крыша: мансарда;
  • Кровля: мягкая черепица;
  • Фасад: штукатурка, декоративный камень;
  • Стиль: европейский.

Будучи в поисках красивого и функционального загородного дома, оцените предложение от компании «Эвастрой» под номером П7. Это трехуровневый особняк с башней, общей площадью 320 м2. Основные достоинства подобного жилья: яркая архитектура, которая подчеркнет аристократизм владельца и позволит ощутить себя хозяином настоящего замка; отличная функциональная программа включает 5 спален (в том числе две гостевых), гостиную с камином, просторный гараж и вместительный цокольный ярус, куда можно вынести хозяйственные помещения; оригинальная геометрия эркерных комнат и интересная закругленная терраса.

-2

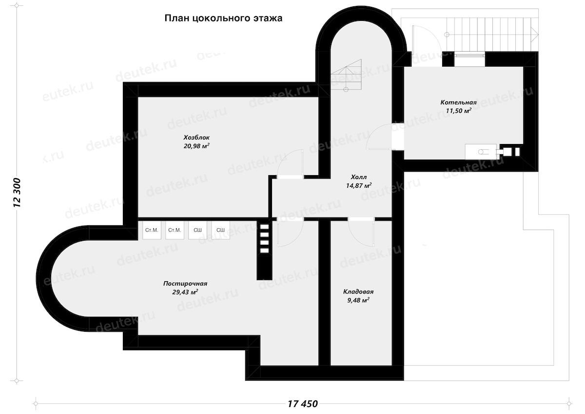
Планировка. В цокольном ярусе организована котельная, вместительный хозблок, кладовая и просторная постирочная площадью почти 30 м2. Попасть в цоколь можно по межэтажной лестнице и снаружи, через котельную.

-3

Первый этаж разделен надвое холлом, слева от которого — дневная зона, объединившая гостиную и кухню. В гостиной спроектирован камин и выход на крытую террасу; к кухне же примыкает башня, в остекленном пространстве которой расположен обеденный стол. Справа от холла — гостевая спальня, а из тамбура имеется доступ в гараж и гардеробную. Также есть общий санузел площадью 3,71 м2.

-4

Эркерная лестница ведет на второй этаж, где расположены три хозяйские и еще одна гостевая спальня, ванная комната и санузел. Во всех комнатах вместительные гардеробные шкафы. Одна из спален частично расположена в башне, благодаря чему получилась светлая зона отдыха. Из холла можно выйти на общий балкон.

Здание возводится на монолитной ж/б плите, а межэтажными перекрытиями служат высокопрочные железобетонные конструкции. Стены из традиционного полнотелого кирпича, рассчитанного на десятилетия эксплуатации. Фасады отделаны штукатуркой и — для дополнительной прочности и износоустойчивости — искусственным камнем. В экстерьере, кроме обильно остекленной конусной башни, вызывает интерес высокая крыша с треугольными мансардными окнами, арочное окно с пятигранным балконом, полукруглый эркер, декоративные консоли и балки на фронтоне. Кровля покрыта мягкой черепицей. В целом, фасад смотрится как единая, законченная и органичная композиция.

Проект дома 320 м2 из газобетона с гаражом - DTE-34

Подробнее с проектом можно ознакомиться на сайте deutek.ru

Подписывайтесь на канал, ставьте лайки.