Найти в Дзене

Проект дома в стиле хай-тек - DTE-33

Номер проекта: DTE-33 Разделы проекта: Архитектурный и Конструктивный разделы Заказать проект можно на сайте deutek.ru или по телефону +7 (495) 175-30-40 Другие проекты можете посмотреть в этом разделе https://zen.yandex.ru/proektirovaniedomov Трехэтажный дом в стиле хай-тек общей площадью 554 м2 выделяется нестандартным обликом и огромными панорамными окнами. Планировка впечатляет не менее экстерьера — 5 спален + гостевая, большой кабинет, отличная хоз.часть — много санузлов и гардеробных, постирочная, большая кладовка. А также терраса, патио и балкон, не уступающий по размерам террасе. И, как вишенка на торте — 177 м2 свободного пространства на верхнем ярусе! На первом этаже, кроме гостиной и кухни-столовой, расположены две спальни с общим санузлом и гардеробной, а также хозблок. Для отдыха предусмотрено просторное патио и терраса. На втором этаже — мастер-спальня, большой кабинет, гостевая спальня с собственным санузлом и две детские — в их пользовании находится детский санузел и г
Номер проекта: DTE-33
Разделы проекта: Архитектурный и Конструктивный разделы
Заказать проект можно на сайте deutek.ru или по телефону
+7 (495) 175-30-40
Другие проекты можете посмотреть в этом разделе
https://zen.yandex.ru/proektirovaniedomov
  • Общая площадь: 554 м2;
  • Габариты дома: 18.6 x 24.4 м;
  • Этажность: 3;
  • Фундамент: фундаментная плита с ребрами жесткости;
  • Материал стен: газобетонные блоки 400 мм;
  • Перекрытия: монолитные ж.б.;
  • Крыша: плоская;
  • Кровля: мембрана;
  • Фасад: клинкерная плитка, фасадная доска, металл. панели;
  • Стиль: Хай-Тек.

Трехэтажный дом в стиле хай-тек общей площадью 554 м2 выделяется нестандартным обликом и огромными панорамными окнами. Планировка впечатляет не менее экстерьера — 5 спален + гостевая, большой кабинет, отличная хоз.часть — много санузлов и гардеробных, постирочная, большая кладовка. А также терраса, патио и балкон, не уступающий по размерам террасе. И, как вишенка на торте — 177 м2 свободного пространства на верхнем ярусе!

-2

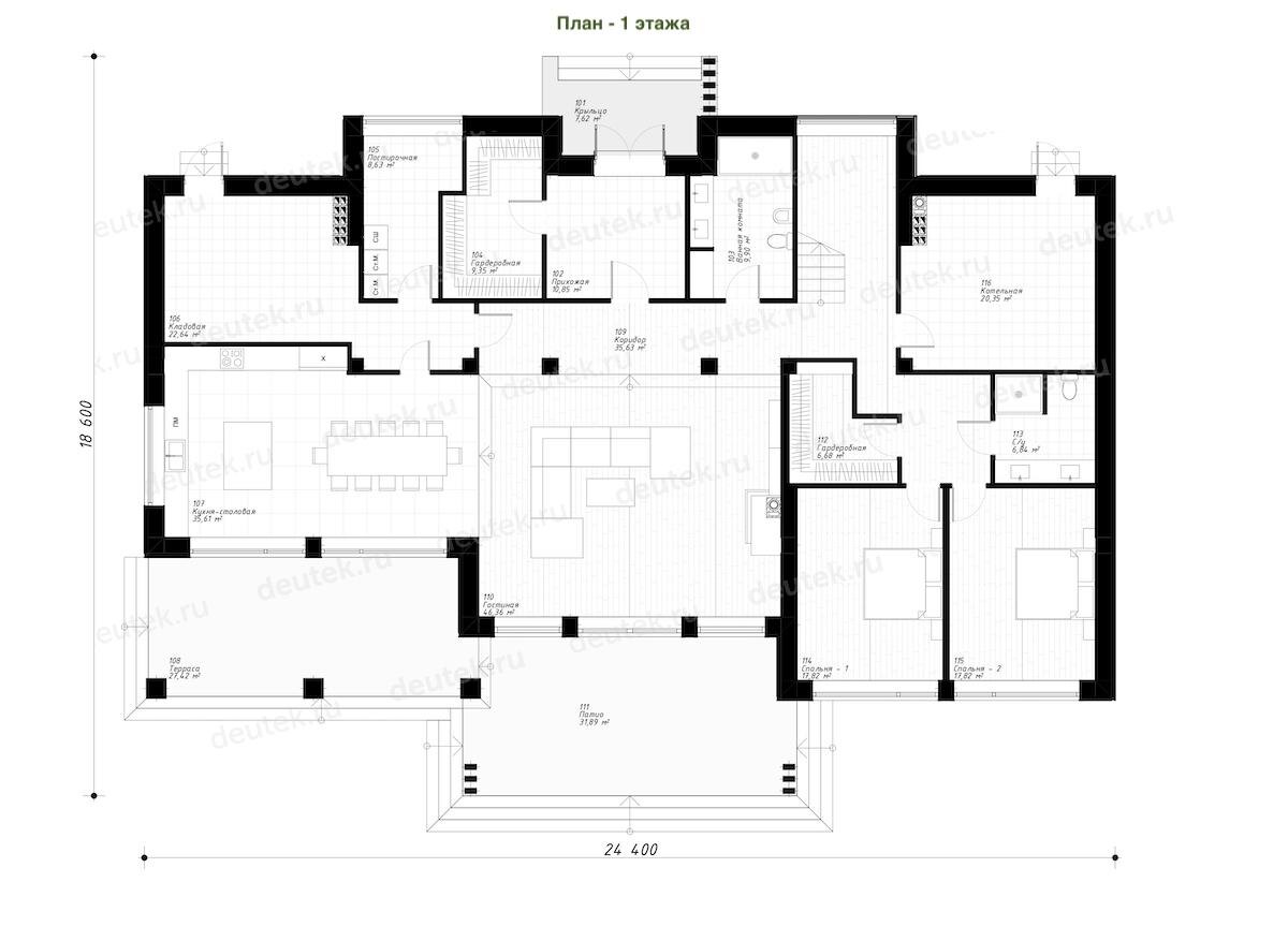
На первом этаже, кроме гостиной и кухни-столовой, расположены две спальни с общим санузлом и гардеробной, а также хозблок. Для отдыха предусмотрено просторное патио и терраса.

-3

На втором этаже — мастер-спальня, большой кабинет, гостевая спальня с собственным санузлом и две детские — в их пользовании находится детский санузел и гардеробная. Площадкой для отдыха на втором ярусе является просторный балкон.

-4

На плане третьего этажа обозначен лестничный холл и техпомещение. Остальное пространство — а это 177 м2 — обустроят будущие хозяева дома.

Здесь легко разместится большая современная семья и их многочисленные гости. Технические решения, дизайн несмотря на ультрасовременный облик, дом строится из привычного газобетона (из 400-мм блоков), на фундаментной плите с ребрами жесткости, монолитными ж/б перекрытиями и плоской крышей. Габариты здания — 18.6 x 24.4 м.

Проект дома 554 м2 в стиле хай-тек DTE-33

Подробнее с проектом можно ознакомиться на сайте deutek.ru

Подписывайтесь на канал, ставьте лайки.