Найти в Дзене

Проект двухэтажного дома из газобетона в европейском стиле - P4

Номер проекта: P4 Разделы проекта: Архитектурный и Конструктивный разделы Заказать проект можно на сайте deutek.ru или по телефону +7 (495) 175-30-40 Другие проекты можете посмотреть в этом разделе https://zen.yandex.ru/proektirovaniedomov Реализуя проект П4 на своем участке, вы получите отличный загородный коттедж в европейском стиле, общей площадью 281 м2, с пятью просторными спальнями, большой светлой гостиной, удобными санузлами и отдельной вместительной котельной. Технические решения, дизайн В составе дома — два полных этажа плюс эксплуатируемый чердак-мансарда. Наружные стены из газобетона, толщина блоков 400 мм. Здание ставится на усиленный фундамент — монолитный с ребрами жесткости, перекрытия — монолитные ж/б плиты. Планировка: схемы этажей практически идентичны — оба яруса разделяют продольные холлы, оканчивающиеся лестницей. Левая часть нижнего уровня занята большой гостиной, прекрасно освещаемой с трех сторон. Шикарный камин создает ощущение тепла, спокойствия, комфорта и у
Номер проекта: P4
Разделы проекта: Архитектурный и Конструктивный разделы
Заказать проект можно на сайте deutek.ru или по телефону
+7 (495) 175-30-40
Другие проекты можете посмотреть в этом разделе
https://zen.yandex.ru/proektirovaniedomov
  • Общая площадь: 281 м2;
  • Габариты дома: 13.9 x 14.05 м;
  • Этажность: 2 (вкл. Мансардный);
  • Фундамент: монолитная плита с ребрами жесткости;
  • Материал стен: газобетонные блоки 400;
  • Перекрытия: перекрытие 1-го этажа – монолитная ж.б плита, перекрытие 2-го этажа – монолитная ж.б. плита;
  • Крыша: чердачная, чердак эксплуатируемый;
  • Кровля: металлочерепица;
  • Фасад: штукатурка, декоративный камень;
  • Стиль: европейский.

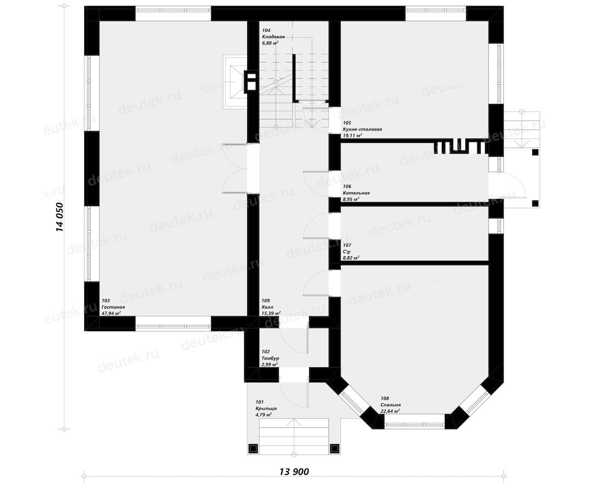
Реализуя проект П4 на своем участке, вы получите отличный загородный коттедж в европейском стиле, общей площадью 281 м2, с пятью просторными спальнями, большой светлой гостиной, удобными санузлами и отдельной вместительной котельной. Технические решения, дизайн В составе дома — два полных этажа плюс эксплуатируемый чердак-мансарда. Наружные стены из газобетона, толщина блоков 400 мм. Здание ставится на усиленный фундамент — монолитный с ребрами жесткости, перекрытия — монолитные ж/б плиты.

-2

Планировка: схемы этажей практически идентичны — оба яруса разделяют продольные холлы, оканчивающиеся лестницей. Левая часть нижнего уровня занята большой гостиной, прекрасно освещаемой с трех сторон. Шикарный камин создает ощущение тепла, спокойствия, комфорта и умиротворения. Справа расположены помещения «мокрой зоны» — кухня-столовая, котельная с отдельным выходом, вместительный санузел. Эркерная спальня с окнами на главный двор может быть использована по прямому назначению, или как просторный кабинет-библиотека. Для хранения необходимых в хозяйстве вещей предусмотрена кладовая под лестницей.

-3

На втором этаже четыре спальни; размер трех из них колеблется в пределах 23 м2, четвертая — чуть меньше, но также достаточно просторная — 19 м2. Кроме того, присутствует большая ванная и компактный санузел. Из холла можно выйти на общий балкон.

-4

На чердаке (17 м2) удобно разместить недостающие кладовые и гардеробные. Возможно, именно этот дом воплотит вашу мечту о собственном жилье.

Наружный дизайн выполнен в светло-бежевых тонах, в отделке использован классический тандем штукатурки и декоративного камня, для кровли берется металлическая черепица. Декор — угловые русты, наличники, цокольный молдинг, окантовка и подшив крыши — выполнен в белом цвете. Главный фасад украшен многогранным эркером, в центре крыльцо с односкатной крышей, опирающейся на столбы с полуколоннами, за ним внешний тамбур с балконом второго этажа. Окна жилых помещений — широкие, трехдольные. Изящества дому придают кованые ограждения, которые присутствуют даже на крыльце технического входа.

Проект двухэтажного дома из газобетона в европейском стиле - P4

Подробнее с проектом можно ознакомиться на сайте deutek.ru

Подписывайтесь на канал, ставьте лайки.