Найти в Дзене

Строители позвонили и сказали: «Мы с этим работать не будем». Как по одному чертежу понять, хороший ли дизайнер.

Одна из самых неприятных фраз, которые может услышать заказчик во время ремонта от строителей, звучит так: «Мы по этому проекту работать не будем». К сожалению, это очень распространенная ситуация, особенно если проект интерьера был заказан у неопытного или начинающего дизайнера. Строители отказываются не потому, что они плохие или вредные. Все проще они своим профессиональным взглядом сразу могут оценить реализуем этот проект или нет. Часто достаточно посмотреть на один первый чертеж и сделать вывод. Что бы не попасть в подобную ситуацию дизайнера нужно выбирать не только по красивым картинкам визуализаций, но и по его технической части. Проблема в том, что обычному заказчику чертежи кажутся чем-то непонятным: линии, цифры, символы. Кажется, что разобраться в этом невозможно. На самом деле всё гораздо проще. В этой статье я покажу, как отличить хороший чертёж от плохого, даже если вы не дизайнер и не строитель. Обмерный план — это не формальность и не «какой-то технический лист». Это
Оглавление

Одна из самых неприятных фраз, которые может услышать заказчик во время ремонта от строителей, звучит так: «Мы по этому проекту работать не будем». К сожалению, это очень распространенная ситуация, особенно если проект интерьера был заказан у неопытного или начинающего дизайнера.

Строители отказываются не потому, что они плохие или вредные. Все проще они своим профессиональным взглядом сразу могут оценить реализуем этот проект или нет. Часто достаточно посмотреть на один первый чертеж и сделать вывод.

Что бы не попасть в подобную ситуацию дизайнера нужно выбирать не только по красивым картинкам визуализаций, но и по его технической части.

Проблема в том, что обычному заказчику чертежи кажутся чем-то непонятным: линии, цифры, символы. Кажется, что разобраться в этом невозможно. На самом деле всё гораздо проще.

В этой статье я покажу, как отличить хороший чертёж от плохого, даже если вы не дизайнер и не строитель.

Почему обмерный план — это маркер профессионализма дизайнера.

Обмерный план — это не формальность и не «какой-то технический лист». Это точка старта всего проекта и документ, который фиксирует реальное состояние объекта, а не красивые фантазии.

Если на этом этапе дизайнер работает небрежно — дальше ошибки будут множиться, а платить за них придётся заказчику. Если дизайнер делает много ошибок, то бюджет ремонта увеличивается в разы.

По обмерному плану можно почти сразу понять:

  • умеет ли дизайнер работать с реальностью
  • думает ли он о строителях
  • можно ли будет реализовать проект

Что ОБЯЗАТЕЛЬНО должно быть на грамотном обмерном плане

1. Все размеры

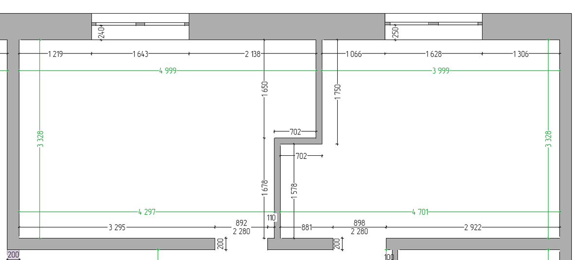
Габариты помещений, длины стен, простенки, ниши, выступы. Не «примерно», не «на глаз», а все ключевые размеры, нужные для работы. Если размеры выборочные — это первый тревожный звоночек. Ведь если размеры не верные, то при установке мебель просто не влезет или будут большие некрасивые щели, усложняющие уборку.

Фрагмент обмерного плана с указанием размеров.
Фрагмент обмерного плана с указанием размеров.

2. Все высоты

Высота потолков, понижения, перепады, балки, ригели. Проблема в том, что потолки почти никогда не бывают идеальны. А если дизайнер этого не заметил значит, он либо не был на объекте, либо не понимает, зачем эти данные нужны. Балки и ригели должны быть обозначены цветом и подписаны для наглядности и понимания строителей.

Фрагмент обмерного плана с указанием размеров балки и ее высоты от пола.
Фрагмент обмерного плана с указанием размеров балки и ее высоты от пола.

3. Оконные проёмы

Высота окна, высота подоконника, размеры откосов. Эти данные напрямую влияют на: радиаторы, шторы, мебель, рабочие поверхности. Ошибки здесь потом вылезают в самых дорогих местах.

Фрагмент обмерного плана с указанием размеров окна.
Фрагмент обмерного плана с указанием размеров окна.

4. Дверные проёмы

Ширина и высота проёма. И обязательная фактическая толщина стены. Очень частая история — дверь не встаёт, потому что дизайнер взял размеры из плана БТИ и не проверил их на объекте.

Фрагмент обмерного плана с указанием размеров дверного проема.
Фрагмент обмерного плана с указанием размеров дверного проема.

5. Толщины стен

Фактические размеры всех стен и перегородок. Разница даже в пару сантиметров на плане может обернуться: нестыковкой мебели, проблемами с сантехникой, переделками на стройке.

6. Несущие и межкомнатные стены

Они обязательно должны быть разделены и чётко обозначены цветом или подписью. Если дизайнер не видит разницы — это уже вопрос не вкуса, а безопасности.

Фрагмент обмерного плана с указанием статуса конструкций (сплошной цвет-несущая стена, штрихофка-не несущая стена, перегородка).
Фрагмент обмерного плана с указанием статуса конструкций (сплошной цвет-несущая стена, штрихофка-не несущая стена, перегородка).

7. Отклонения геометрии

Завалы стен, не параллельность, «ромбы» вместо прямых углов. Это очень важно для строителей. Если на плане идеальные прямые углы в старом доме — скорее всего, это фантазия. Да, в процессе ремонта стены выровняют Но обмерный план показывает то, что есть сейчас. Если отклонение более 30мм, его обязательно нужно указывать.

Фрагмент обмерного плана с указанием отклонения в геометрии стен.
Фрагмент обмерного плана с указанием отклонения в геометрии стен.

8. Существующие инженерные коммуникации

Стояки, вентиляция, выводы воды и канализации, газовые трубы, электрощит, котёл и т. д. Если на плане их нет — значит, дальше проект будут подгонять уже на объекте. А это риск ошибок и переделок.

Фрагмент обмерного плана с указанием существующих инженерных комуникаций.
Фрагмент обмерного плана с указанием существующих инженерных комуникаций.

9. Радиаторы отопления

Тип, размер, высота от пола, точки подключения. Их часто забывают. А потом внезапно оказывается, что мебель не влезает или когда, вы сидите на диване вам ухо жарит батарея. Радиатор обозначается значком и подписаны с размерами.

Фрагмент обмерного плана с указанием типа подключения радиатора и его размеров.
Фрагмент обмерного плана с указанием типа подключения радиатора и его размеров.

10. Площади и наименования помещений

Это нужно не для красоты, а для корректной планировки и дальнейшей документации. Обозначаются табличной с названием помещения, его порядковым номером и площадью.

Фрагмент обмерного плана с указанием зон.
Фрагмент обмерного плана с указанием зон.

11. Функциональные зоны

Мокрые зоны, грязные зоны, зона кухни. Как правило они выделяются цветом или подписью. Без этого невозможно грамотно работать с инженерией и планировкой. И если дизайнер эти зоны не отмечает, значит он не знает зачем они нужны. Основное правило про мокрые зоны закреплено в СП 54.13330.2016 и актуализированном СП 54.13330.2022. Санитарные узлы нельзя размещать над жилыми помещениями и кухнями соседей снизу.

Из этого правила вытекают два ключевых запрета:

Нельзя расширять санузел за счёт жилой комнаты, если под квартирой находится квартира с жилыми зонами.

Нельзя переносить санузел в центр квартиры, если под квартирой — жилое пространство.

Игнорирование этих правил может привести к штрафам в будущем. Дизайнер обязательно должен учитывать зоны.

Фрагмент обмерного плана с указанием особых (специальных) зон.
Фрагмент обмерного плана с указанием особых (специальных) зон.

Почему строители отказываются работать с такими проектами

Потому что плохой обмерный план это:

  • постоянные вопросы
  • переделки
  • ответственность за чужие ошибки

Строители это понимают сразу, а заказчики обычно уже в процессе ремонта.

Как делают обмеры нормальные дизайнеры.

Сначала выезд и замеры на объекте, часто от руки. Потом систематизация и проверка. И только затем — точный, выверенный чертёж, который дизайнер выполняет в специальной программе у себя за рабочим местом, опираясь на чертежи, сделанные от руки во время выезда.

Чем точнее старт, тем:

  • спокойнее стройка
  • меньше сюрпризов
  • дешевле ошибки (или их вообще нет)

Обмерный план — это не формальность и не «техническая мелочь». Это фундамент всего проекта. И если вы хотите понять, насколько дизайнер профессионален, то посмотрите именно на него.

Один лист может сказать о специалисте больше, чем десяток красивых визуализаций.