Найти в Дзене
ЭВАстрой

Проект дома с мансардой из газобетона в стиле Барнхаус - 106-44 (П24)

Номер проекта: 106-44 (П24) Разделы проекта: Архитектурный и Конструктивный разделы Узнать о проекте больше можно на сайте evastroy.ru или по телефону +7 (495) 175-30-40 Представляем узкий мансардный дом в стиле барнхаус общей площадью 126 м2. Здание отличается характерным «амбарным» экстерьером с двускатной бессвесовой кровлей и панорамным остеклением главного фасада. Последнее гарантирует прекрасный обзор окружающих пейзажей и отличное внутреннее освещение. Проект подойдет небольшой семье в формате 2 + 1 или 2 + 2. Будущие хозяева: имеют участок, вытянутый по оси север-юг; ценят функциональность, современный дизайн, элегантность, сочетание натуральных материалов и цветов; ищут компактный дом для постоянного проживания. В данном предложении вы найдете отличное сочетание желаемых качеств. В вашем распоряжении — две просторные спальни, залитая светом гостиная, удобная кухня, сауна, отдельная бойлерная, санузлы на каждом этаже. В качестве бонуса предусмотрено уютное патио, переходящее в
Номер проекта: 106-44 (П24)
Разделы проекта: Архитектурный и Конструктивный разделы
Узнать о проекте больше можно на сайте evastroy.ru или по телефону
+7 (495) 175-30-40
  • Общая площадь: 126.24 м2;
  • Габариты дома: 13.4 x 7 м;
  • Этажность: 2 (вкл. мансардный);
  • Фундамент: фундаментная плита с ребрами жесткости;
  • Материал стен: газобетонные блоки 400 мм;
  • Перекрытия: монолитное ж.б.;
  • Крыша: мансардная;
  • Кровля: фальц;
  • Фасад: штукатурка фасадная/планкен/;
  • Стиль: барнхаус.

Представляем узкий мансардный дом в стиле барнхаус общей площадью 126 м2. Здание отличается характерным «амбарным» экстерьером с двускатной бессвесовой кровлей и панорамным остеклением главного фасада. Последнее гарантирует прекрасный обзор окружающих пейзажей и отличное внутреннее освещение. Проект подойдет небольшой семье в формате 2 + 1 или 2 + 2. Будущие хозяева: имеют участок, вытянутый по оси север-юг; ценят функциональность, современный дизайн, элегантность, сочетание натуральных материалов и цветов; ищут компактный дом для постоянного проживания. В данном предложении вы найдете отличное сочетание желаемых качеств. В вашем распоряжении — две просторные спальни, залитая светом гостиная, удобная кухня, сауна, отдельная бойлерная, санузлы на каждом этаже. В качестве бонуса предусмотрено уютное патио, переходящее в террасу — идеальное место для отдыха или встречи с друзьями.

-2

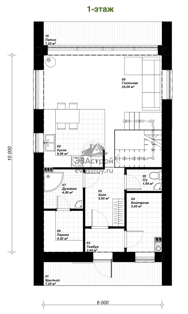
На первом этаже во входной части спроектирован тамбур и «влажные» комнаты — бойлерная, санузел, сауна с душевой. Большая часть площади занята дневным пространством, причем для зоны отдыха гостиной отведено лучшее место у панорамного окна. В 9-метровой кухне размещен угловой гарнитур с мойкой у окна и 4-местный обеденный стол. Напротив кухни — лестница на второй этаж.

-3

Наверху, в мансарде, две большие спальни, разделенные лестничным холлом и санузлом. Спальня со стороны главного фасада освещается панорамным окном во всю стену. В санузле предусмотрена установка душевой кабины.

Технические решения, дизайн Проектом предусмотрены стены из газобетонных блоков 400, монолитный с ребрами жесткости фундамент, монолитное ж/б перекрытие и фальцевая кровля. Входной и главный фасады расположены на противоположных торцевых сторонах дома. Главный фасад максимально остеклен и продолжается террасой-патио; входной фасад оформлен лаконично и предваряется крыльцом внутри контура дома. Габариты здания — 13.4 x 7 м.

Проект дома с мансардой из газобетона в стиле Барнхаус

Подробнее с проектом можно ознакомиться на сайте evastroy.ru