Добавить в корзинуПозвонить
Найти в Дзене

Как сделать вентиляцию, не понижая потолки?

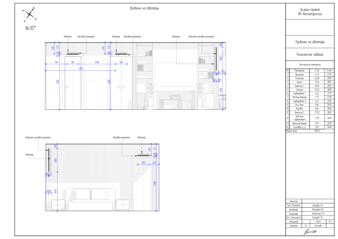
При ремонте квартиры, часто хочется сохранить высокие потолки. Добиться этого при стандартной прокладке вентиляции по потолку практически невозможно. Решением может стать её скрытый монтаж внутри стен и перегородок. Ключевые решения одного из проектов с таким способом монтажа: • Возвели каменные перегородки, напоминающие вентиляционные шахты. Между двумя стенами из бетонных блоков заложили воздуховоды (притока), заполняя свободное место звукоизоляционной ватой. В местах проходов использовались гибкие воздуховоды для экономии пространства за счёт меньшего диаметра. • Дизайнер продумал невидимые выводы. Вместо потолочных решеток, спроектировал выводы через стены в карнизы, дверные проемы и за шторами. Воздух поступает и удаляется незаметно, а решетки визуально скрыты. • Предусмотрели в проекте две независимые вент установки. Это помогло сократить количество воздуховодов и обслуживать 2 части квартиры площадью 180 м2 независимо, а также избежать опусков потолков. Результат: Квартира с иде

При ремонте квартиры, часто хочется сохранить высокие потолки. Добиться этого при стандартной прокладке вентиляции по потолку практически невозможно. Решением может стать её скрытый монтаж внутри стен и перегородок.

Ключевые решения одного из проектов с таким способом монтажа:

• Возвели каменные перегородки, напоминающие вентиляционные шахты. Между двумя стенами из бетонных блоков заложили воздуховоды (притока), заполняя свободное место звукоизоляционной ватой. В местах проходов использовались гибкие воздуховоды для экономии пространства за счёт меньшего диаметра.

• Дизайнер продумал невидимые выводы. Вместо потолочных решеток, спроектировал выводы через стены в карнизы, дверные проемы и за шторами. Воздух поступает и удаляется незаметно, а решетки визуально скрыты.

• Предусмотрели в проекте две независимые вент установки. Это помогло сократить количество воздуховодов и обслуживать 2 части квартиры площадью 180 м2 независимо, а также избежать опусков потолков.

Результат:

Квартира с идеальным микроклиматом, где ничто не выдает наличия сложной системы. Все механизмы работают, оставаясь «за кадром», обеспечивая заказчикам чистый дизайн и максимальный комфорт с сохранением высоты помещения.

#скрытаявентиляция #вентиляциявстенах #евроремонт #инженериявдизайне #комфорт #дизайнинтерьера #строительство #техническиерешения #люксорта