Добавить в корзинуПозвонить
Найти в Дзене

КАК МЫ АДАПТИРОВАЛИ ТИПОВОЙ ПРОЕКТ В ИНДИВИДУАЛЬНЫЙ (на примере нашего КБ-5)

Многие считают, что типовой проект - это что-то стандартное и «как у всех». Но на практике хороший типовой проект - это сильная база, которую можно адаптировать под конкретную семью. Сегодня покажем на реальном примере, как проект КБ-5 из каталога стал полностью индивидуальным домом для нашего клиента. С ЧЕГО ВСЁ НАЧАЛОСЬ В нашем каталоге - десятки проектов под разные сценарии жизни: от компактных одноэтажных домов до просторных двухэтажных с панорамными окнами и вторым светом. Клиент пролистал каталог - и практически сразу остановился на КБ-5. Почему именно он? Потому что этот проект уже изначально был максимально близок к его представлению о будущем доме. ПРОЕКТ КБ-5 - В ЧЁМ ЕГО СИЛА Двухэтажный дом из клееного бруса. Общая площадь - 173 м² Полезная - 150 м² Это дом для тех, кто любит пространство, свет и воздух. Что сразу привлекает внимание: • большие панорамные окна • выразительная архитектура • второй свет, создающий ощущение объёма • продуманная планировка без «пустых» метров ПЛ

Многие считают, что типовой проект - это что-то стандартное и «как у всех».

Но на практике хороший типовой проект - это сильная база, которую можно адаптировать под конкретную семью.

Сегодня покажем на реальном примере, как проект КБ-5 из каталога стал полностью индивидуальным домом для нашего клиента.

С ЧЕГО ВСЁ НАЧАЛОСЬ

В нашем каталоге - десятки проектов под разные сценарии жизни:

от компактных одноэтажных домов до просторных двухэтажных с панорамными окнами и вторым светом.

Клиент пролистал каталог - и практически сразу остановился на КБ-5.

Почему именно он?

Потому что этот проект уже изначально был максимально близок к его представлению о будущем доме.

ПРОЕКТ КБ-5 - В ЧЁМ ЕГО СИЛА

Двухэтажный дом из клееного бруса.

Общая площадь - 173 м²

Полезная - 150 м²

Это дом для тех, кто любит пространство, свет и воздух.

Что сразу привлекает внимание:

• большие панорамные окна

• выразительная архитектура

• второй свет, создающий ощущение объёма

• продуманная планировка без «пустых» метров

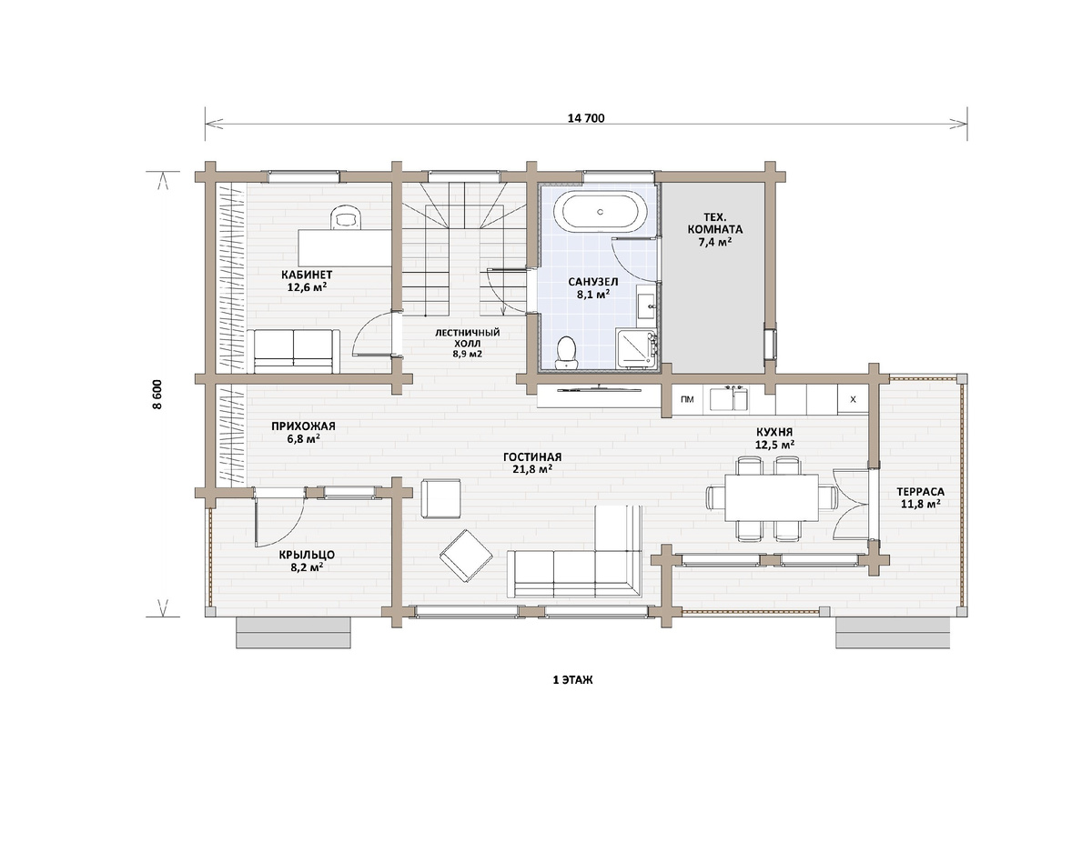
ПЛАНИРОВКА В БАЗОВОЙ ВЕРСИИ

ПЕРВЫЙ ЭТАЖ

-2

Мы входим через крыльцо и попадаем в прихожую.

Далее - просторная гостиная, объединённая с кухней.

На ПЕРВОМ ЭТАЖЕ также предусмотрены:

• отдельный кабинет

санузел

техническое помещение

терраса

Планировка удобная, логичная и комфортная для повседневной жизни.

ВТОРОЙ ЭТАЖ

-3

Через лестничный холл поднимаемся наверх - и попадаем в уютный холл второго этажа.

Здесь расположены:

3 спальни

• отдельный санузел с ванной

2 гардеробные (в разных спальнях)

балкон у одной из спален

А главное - невероятный простор благодаря второму свету.

Этот проект действительно «дышит».

ДЛЯ НАС ЛЮБОЙ ТИПОВОЙ ПРОЕКТ - ЭТО ОСНОВА, КОТОРУЮ МЫ АДАПТИРУЕМ ПОД КОНКРЕТНУЮ СЕМЬЮ

Даже если проект подходит на 90%, мы всегда задаём вопрос:

А как именно будет жить в этом доме конкретная семья?

И вот здесь начинается самое интересное.

ОТ ТИПОВОГО - К ИНДИВИДУАЛЬНОМУ

Дом остался КБ-5 по архитектурной идее, но внутри он стал совершенно индивидуальным.

1. Изменили раскладку окон

Мы переработали расположение окон, чтобы:

• усилить естественное освещение

• подчеркнуть видовые точки участка

• сделать фасад более выразительным

Иногда именно окна меняют восприятие дома кардинально.

2. Добавили гардеробную при входе

В базовом проекте её не было.

Для семьи это оказалось важным - хранение верхней одежды, обуви, сезонных вещей.

Мы добавили полноценную гардеробную к прихожей - и дом стал намного функциональнее.

3. Кабинет превратился в гостевую спальню

На первом этаже вместо кабинета теперь располагается гостевая спальня.

Почему это важно?

Потому что:

• удобно для родителей

• удобно для гостей

• удобно на будущее

Дом стал более гибким по сценариям жизни.

-5

4. Переработали второй этаж

Здесь изменения были особенно интересными.

✔ Вместо двух отдельных гардеробных - одна большая, полноценная гардеробная.

✔ Вместо одной из спален - кабинет.

-6

В итоге:

• у хозяев появилась удобная зона хранения

• рабочее пространство вынесено на второй этаж

• приватная зона стала более логичной

Мы не «переделали» типовой проект.

Мы усилили его.

Архитектура, стиль, масштаб - остались.

А планировка стала отражением жизни конкретной семьи.

ПОЧЕМУ ТИПОВОЙ ПРОЕКТ - ЭТО НЕ ОГРАНИЧЕНИЕ

Типовой проект - это:

• проверенная конструкция

• продуманная инженерия

• оптимальный бюджет

• понятные сроки

Но при этом он может быть полностью адаптирован под вас.

Этот дом после доработок стал ещё сильнее.

Он сохранил свою архитектурную харизму, но стал абсолютно индивидуальным.

Если вам понравился такой формат - напишите, что бы вы изменили в этом проекте для себя?

Заполните форму по ссылке - и мы вышлем вам презентацию проекта КБ-5, сориентируем по стоимости и вариантам комплектации.