Добавить в корзинуПозвонить
Найти в Дзене

Good Wood (Гуд Вуд): Честный разбор от строителя. Стоит ли связываться? Отзывы 2026!

Привет, коллеги. Решил разобрать по полочкам Good Wood (она же Гуд Вуд) – компанию, о которой сейчас не слышал, наверное, разве что глухой. На рекламу денег не жалеют, судя по всему, но мы с вами смотрим не на красивые картинки, а на реальный опыт. Ну что, поработаем с фактами? Для начала немного справочной, которую нарыл в сети. “Компания работает с 2005 года и построила уже более 5600 домов.” Компания-старичок, опыт в виде проектной базы, признаюсь честно, впечатлил. На самом деле, цифра внушительная, как по мне. Идем дальше. 🚶🏻‍➡️ У них своё производство клееного бруса, инженерный отдел, служба технадзора. Это значит, за качеством следите не только вы!). Уже лучше! Пока копал, наткнулся на несколько интересных кейсов, на мой скромный взгляд. 1. Индивидуальный проект в Дубках Тут зацепило как поработали с кухонной зоной. К гостиной примыкает просторная столовая зона со скрытой кладовкой. Кладовая интегрирована в кухонный гарнитур. Во-первых, это функционально, во-вторых здорово о

Привет, коллеги. Решил разобрать по полочкам Good Wood (она же Гуд Вуд) – компанию, о которой сейчас не слышал, наверное, разве что глухой. На рекламу денег не жалеют, судя по всему, но мы с вами смотрим не на красивые картинки, а на реальный опыт. Ну что, поработаем с фактами?

Для начала немного справочной, которую нарыл в сети.

“Компания работает с 2005 года и построила уже более 5600 домов.” Компания-старичок, опыт в виде проектной базы, признаюсь честно, впечатлил. На самом деле, цифра внушительная, как по мне.

Идем дальше. 🚶🏻‍➡️

У них своё производство клееного бруса, инженерный отдел, служба технадзора. Это значит, за качеством следите не только вы!). Уже лучше!

Пока копал, наткнулся на несколько интересных кейсов, на мой скромный взгляд.

1. Индивидуальный проект в Дубках

Тут зацепило как поработали с кухонной зоной. К гостиной примыкает просторная столовая зона со скрытой кладовкой. Кладовая интегрирована в кухонный гарнитур. Во-первых, это функционально, во-вторых здорово обыграли историю с пространством. Для тех, кто готовит часто, это решение уровня хорошего ресторана – всё, что нужно, под рукой, но при этом нет ощущения захламленности.

Дом снаружи
Дом снаружи

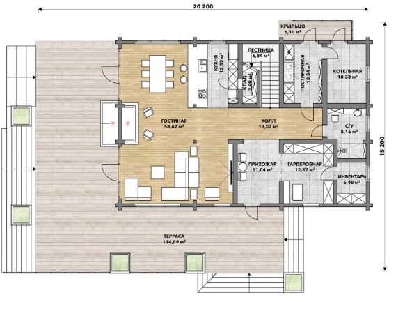
Планировка 1 этажа
Планировка 1 этажа

Планировка 2 этажа
Планировка 2 этажа

Ссылка на источник: https://www.gwd.ru/projects/unikalnye-proekty/proekt-dom-v-dubkakh-579-m/

2. Дом по индивидуальному проекту в Есенино

Пример того, как из типовой прямоугольной “коробки” сделать современный дом. За счет центрального второго света в гостиной и огромной застекленной террасы пространство визуально “раскрывается”. Комбинированные материалы (керамический блок + брус) самое разумное решение для прочности и эстетики.

Дом снаружи
Дом снаружи

Планировка 1 этажа
Планировка 1 этажа

Планировка 2 этажа
Планировка 2 этажа

Ссылка на источник: https://www.gwd.ru/projects/unikalnye-proekty/proekt-dom-v-esenino/

3. Индивидуальный проект дома в Рассказовке

Хороший ход с окантовкой террасы, получилась легкая, но четко обозначенная зона. Но по мне здесь не хватает прямого уличного входа. Так бы терасса была самостоятельной зоной и, на мой взгляд, это добавило бы сценариев использования и ещё сильнее связало бы интерьер с участком.

дом снаружи
дом снаружи

схема сбоку
схема сбоку

планировка дома
планировка дома

Ссылка на источник: https://www.gwd.ru/projects/unikalnye-proekty/proekt-dom-v-rasskazovke/

Ну что ж, доходим до самого интересного – смотрим свежак из отзывов Good Wood (честно признаюсь, смотрел не только отзывы 2026 года, но и 25, и немного захватил конец 24 года))

Предлагаю сначала рассмотреть отзывы Гуд Вуд на 5 звезд (брал ТОП из отзовиков по запросам “Гуд Вуд отзывы” и “Good Wood отзывы”).

Так вот, сильные стороны:

Анна, Московская область: "Строили дом из клееного бруса с Гуд Вуд. Цена выше среднего, но зато полная прозрачность: каждый этап в личном кабинете, все чеки. Служба технадзора действительно работает и ловит огрехи подрядчиков. Рекомендую за систему."

Дмитрий, Казань: "Выбрал Good Wood из-за собственного производства бруса. Качество материала отличное, усадка минимальная. Фиксированная смета это спасение, никаких сюрпризов в процессе. Из минусов только сроки немного сдвинулись из-за поставок окон, но нам заранее сообщили."

Сергей, Краснодарский край: "Мой отзыв о Good Wood, как и опыт в целом, положительный. Брал проект с адаптацией, инженеры учли все мои хотелки. После сдачи обнаружился небольшой скрип пола – в течение недели приехала их служба и всё исправила по гарантии. Работают на репутацию."

В большинстве отзывов Good Wood хвалят за индивидуальный подход, за выстроенную систему и поэтапность, прозрачность и качество работ.

Ну, как и полагается, у медали две стороны. Так и о Гуд Вуд можно встретить не очень радужные отзывы. Внизу выделил ТОП из слабых мест компании. Но, положа руку на сердце, стоит отметить, что негатива о них в интернете очень мало. Примерно 85% отзывов о компании имеют высокую оценку.

Первое и основное, наверное, что я встретил в отзывах, стоимость. Практически во всех отзывах её отмечают как высокую. Платите вы за имя, инфраструктуру и, надеетесь, за спокойствие. Но тут встает второй момент: качество не всегда стабильно. Встречаются жалобы на задержки сроков, недоделки при сдаче и некоторые нюансы. Но в целом, опять же, все это мелкие детали. Глобального негатива в их сторону не нашел за последние годы. Внизу добавил пару примеров отзывов для наглядности.

"С Гуд Вуд строил баню. Качеством и сроками доволен. Но на финальной уборке после строителей остался мусор в труднодоступных местах (опилки на чердаке). Пришлось допиливать самим. К самой конструкции претензий нет."

"Работали с Good Wood. Проект реализовали хорошо. Единственный нюанс – не всегда в срок присылали документы в лк, нужно было напоминать про акты. Но все вопросы решались в нашу пользу, менеджер был на связи. Построили качественно, но за эту цену другого и не ждали”

Ну что ж, вердикт от Петровича:

Good Wood это все таки выбор для тех, кто готов платить за систему и хочет минимизировать риски, переложив контроль на технадзор компании.

Кому подойдёт: Если бюджет позволяет, не хотите вникать в каждую сваю, а нужен “под ключ” с гарантией – стоит рассмотреть. Но будьте готовы: 1) Не бояться говорить про все нюансы, которые возникают в ходе работ 2) Не стесняться после завершения стройки обращаться в отдел сервиса с любыми вопросами, для устранения даже мелких проблем.

Кому искать другие варианты: Если бюджет жёстко ограничен или вы сами прораб и хотите сэкономить, управляя процессом лично. Вам их система может показаться избыточной и переплаченной.

Резюме: На рынке они одни из сильных игроков с отлаженными процессами, но не без проблем. Ваше решение должно строиться не на вере в рекламу, а на тщательной проверке договора и готовности быть внимательным заказчиком. Удачи в строительстве и ожидайте следующего обзора.

Уже на следующей неделе расскажу про фишки строительства и на чем привыкли экономить крупные застройщики. Будет интересно, не переключайтесь.