Найти в Дзене

Проект бани из кедра ручной рубки с террасой «Большая»

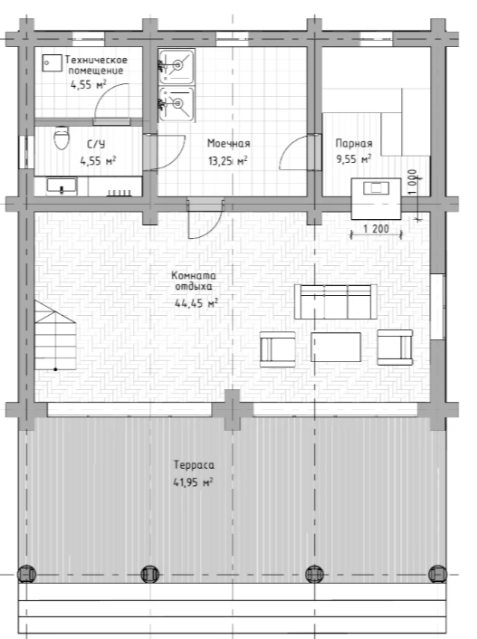
Предлагаем вашему вниманию проект бани «Большая» с террасой В основании первого этажа — сруб из кедра с выразительной шахматной торцовкой, подчеркивающей эстетику ручной работы и усиливающей долговечность конструкции. Характеристики: 
✔️ Диаметр бревен - 36-40 см. ✔️ Площадь проектирования - 145 м2. Проект отлично подходит тем, кто ищет надежное, продуманное и эстетичное решение для строительства просторной бани с возможностью доработки под себя. Если хотите получить расчет под ключ для Вашего региона - пишите в чат нашим менеджерам Перейти на наш сайт

Предлагаем вашему вниманию проект бани «Большая» с террасой

В основании первого этажа — сруб из кедра с выразительной шахматной торцовкой, подчеркивающей эстетику ручной работы и усиливающей долговечность конструкции.

Характеристики: 

✔️ Диаметр бревен - 36-40 см.

✔️ Площадь проектирования - 145 м2.

1 этаж
1 этаж

2 этаж
2 этаж

Проект отлично подходит тем, кто ищет надежное, продуманное и эстетичное решение для строительства просторной бани с возможностью доработки под себя.

Если хотите получить расчет под ключ для Вашего региона - пишите в чат нашим менеджерам

-4

Перейти на наш сайт