Добавить в корзинуПозвонить
Найти в Дзене

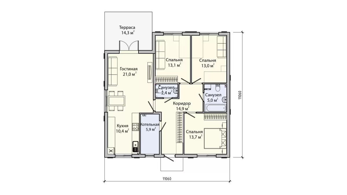
Это уютный дом размером 11x11 метров с плоской крышей, тремя спальнями и просторной террасой

Представляем наш новый проект — одноэтажный дом БП-98/16! ✨ Это уютный дом размером 11x11 метров с плоской крышей, тремя спальнями и просторной террасой 🌿. Общая площадь с учетом террасы составляет 115,6 м², а выполнен он из современных панелей БЭНПАН Премиум и Апекс, что гарантирует энергоэффективность и долговечность. 🔹 Основные особенности проекта: Компактная и функциональная планировка: 3 спальни, кухня-гостиная, 2 санузла, котельная Просторная терраса для отдыха и прогулок 🪴 Наружная отделка из планкена с покраской панели БЭНПАН Дом рассчитан для комфортного проживания 5-6 человек 🌟 Подробнее о проекте: https://benpan.ru/project/bp-9816/
📞 Хотите обсудить строительство вашего будущего дома? Звоните прямо сейчас: +7 (495) 260-98-32 А как вы представляете идеальный загородный дом? Какие функции для вас важны? Делитесь мнениями в комментариях! 😊 #домбп98_16 #загородныйдом #одноэтажныйдом #современноестроительство #энергоэффективность #недвижимость #строительство #комфортныйдо

Представляем наш новый проект — одноэтажный дом БП-98/16! ✨

Это уютный дом размером 11x11 метров с плоской крышей, тремя спальнями и просторной террасой 🌿. Общая площадь с учетом террасы составляет 115,6 м², а выполнен он из современных панелей БЭНПАН Премиум и Апекс, что гарантирует энергоэффективность и долговечность.

-2
-3
-4

🔹 Основные особенности проекта:

Компактная и функциональная планировка: 3 спальни, кухня-гостиная, 2 санузла, котельная

Просторная терраса для отдыха и прогулок 🪴

Наружная отделка из планкена с покраской панели БЭНПАН

Дом рассчитан для комфортного проживания 5-6 человек

🌟 Подробнее о проекте: https://benpan.ru/project/bp-9816/

📞 Хотите обсудить строительство вашего будущего дома? Звоните прямо сейчас: +7 (495) 260-98-32

А как вы представляете идеальный загородный дом? Какие функции для вас важны? Делитесь мнениями в комментариях! 😊

#домбп98_16 #загородныйдом #одноэтажныйдом #современноестроительство #энергоэффективность #недвижимость #строительство #комфортныйдом #архитектура #строймосква