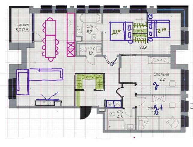
Предпочтите, к тому что я хорошо встаёт кухня, в гостиной включается большой диван. Но! Мы не знаем пока точно можно ли так сделать так возможно грустно пост перенести на завтра, так как там не мокрая зона.
Предпочтите, к тому что я хорошо встаёт кухня, в гостиной включается большой диван. Но! Мы не знаем пока точно можно ли так сделать так возможно грустно пост перенести на завтра, так как там не мокрая зона.
...Читать далее
Ну и здесь. Предпочтите, к тому что я хорошо встаёт кухня, в гостиной включается большой диван.
Но!
Мы не знаем пока точно можно ли так сделать так возможно грустно пост перенести на завтра, так как там не мокрая зона.