Добавить в корзинуПозвонить
Найти в Дзене

↪ BALANCE PROJECT — изнутри

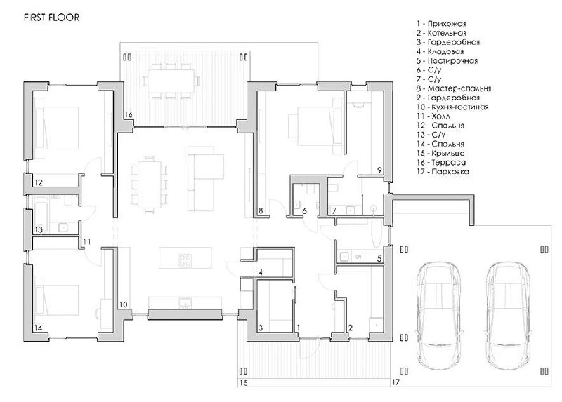
В основе проекта — одноэтажное решение, где все пространство развернуто вокруг большой кухни-гостиной. Мастер-спальня с гардеробной, приватные комнаты, удобные хозяйственные зоны — каждый элемент планировки логичен и на своем месте. Панорамные окна связывают интерьер с садом, превращая зелёный пейзаж в часть повседневного быта. Это дом, в котором простота форм превращается в гармонию жизни. Проект: #balance_archdepo

↪ BALANCE PROJECT — изнутри

В основе проекта — одноэтажное решение, где все пространство развернуто вокруг большой кухни-гостиной. Мастер-спальня с гардеробной, приватные комнаты, удобные хозяйственные зоны — каждый элемент планировки логичен и на своем месте.

Панорамные окна связывают интерьер с садом, превращая зелёный пейзаж в часть повседневного быта. Это дом, в котором простота форм превращается в гармонию жизни.

Проект: #balance_archdepo

-2