Добавить в корзинуПозвонить
Найти в Дзене
ИНДИВИДУАЛЬНЫЙ ДОМ

«ЭГОИСТ-308»: премиальный дом, в котором растворяются границы

Здесь архитектура ведет тихий диалог с природой. Панорамное остекление, натуральные материалы и продуманные линии создают не просто дом, а пространство для жизни в гармонии с собой и окружающим миром. Ваше личное убежище, где царит покой. Оазис у камина: душа проекта
Центром притяжения становится элегантная каминная зона. Зимними вечерами мерцание огня, его уютное потрескивание и мягкий свет создают неповторимую атмосферу тепла и умиротворения. Гармония в каждой детали
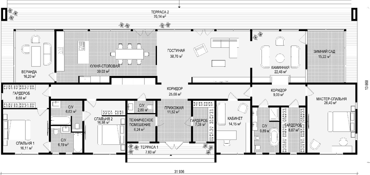
Одноэтажная планировка «Эгоиста-308» — эталон эргономики и комфорта для жизни без компромиссов: Философия проекта для взыскательных
Этот дом создан для тех, кто ищет: «Эгоист-308» — это выбор для постоянного проживания или создания уникальной семейной резиденции, где найдется место и для уединения, и для теплого общения. Характеристики проекта: Общая площадь: 385,82 м²
Жилая площадь: 307,85 м²
Террасы и балконы: 77,97 м²
Спальни: 3
Санузлы: 4
Кабинет: 1
Техническое помещение: да
Гараж: да
Сауна: да Для получения детально

Здесь архитектура ведет тихий диалог с природой. Панорамное остекление, натуральные материалы и продуманные линии создают не просто дом, а пространство для жизни в гармонии с собой и окружающим миром. Ваше личное убежище, где царит покой.

Оазис у камина: душа проекта
Центром притяжения становится элегантная каминная зона. Зимними вечерами мерцание огня, его уютное потрескивание и мягкий свет создают неповторимую атмосферу тепла и умиротворения.

Гармония в каждой детали
Одноэтажная планировка «Эгоиста-308» — эталон эргономики и комфорта для жизни без компромиссов:

  • Для жизни: 3 спальни (включая мастер-спальню), 4 санузла, светлая кухня-гостиная-столовая и кабинет.
  • Для порядка: 2 гардеробные и технический холл для инженерных систем.
  • Для души: зимний сад, просторная терраса (70,14 м²) и веранда, открывающие живописные виды через панорамные окна.

Философия проекта для взыскательных
Этот дом создан для тех, кто ищет:

  • Единение с природой через зимний сад, террасы и безрамное остекление.
  • Абсолютный комфорт, включающий гараж, сауну и умное зонирование.
  • Пространство и свет — ощущение свободы и обилие солнечного света в каждом помещении.

«Эгоист-308» — это выбор для постоянного проживания или создания уникальной семейной резиденции, где найдется место и для уединения, и для теплого общения.

-2

Характеристики проекта:

Общая площадь: 385,82 м²
Жилая площадь: 307,85 м²
Террасы и балконы: 77,97 м²
Спальни: 3
Санузлы: 4
Кабинет: 1
Техническое помещение: да
Гараж: да
Сауна: да

-3

Для получения детального плана и расчёта стоимости свяжитесь с нашим менеджером — поможем подобрать оптимальные решения под ваш бюджет и пожелания!

Ваш дом ждет вас!

Узнайте больше на нашем сайте: www.indivi-dom.ru

Звоните для консультации: +7 (495) 290-69-99

Приглашаем посетить наши выставочные дома:
www.indivi-dom.ru/vystavochnye-doma