Найти в Дзене

Еще один объект на который планируется заезд в ближайшее время в ДНП «Солнечное», Ломоносовский район

Здесь мы будем строить одноэтажный каркасный дом с террасой по проекту Scandi M. Общий размер дома 14.5х6 м, жилая основа 12х6 м + терраса 2,5х6 м. Из помещений в доме предусмотрены кухня-гостиная, две спальни, совмещенный СУ, котельная, гардеробная и холл. За процессом строительства можно следить по тегу #солнечное_scandi #ленстройдом #каркасныедома #солнечное_scandi lenstroydom.ru +7 (812) 408-30-08 скандимини.рф +7 (812) 504-80-80

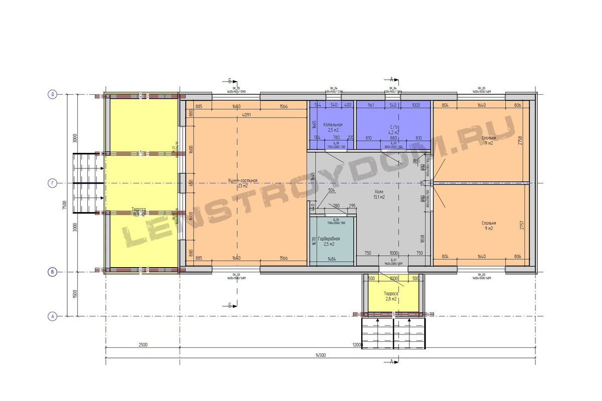
Еще один объект на который планируется заезд в ближайшее время в ДНП «Солнечное», Ломоносовский район. Здесь мы будем строить одноэтажный каркасный дом с террасой по проекту Scandi M.

Общий размер дома 14.5х6 м, жилая основа 12х6 м + терраса 2,5х6 м.

Из помещений в доме предусмотрены кухня-гостиная, две спальни, совмещенный СУ, котельная, гардеробная и холл.

За процессом строительства можно следить по тегу #солнечное_scandi

#ленстройдом #каркасныедома #солнечное_scandi

lenstroydom.ru

+7 (812) 408-30-08

скандимини.рф

+7 (812) 504-80-80

-2
-3
-4