Добавить в корзинуПозвонить
Найти в Дзене
GreenCube

Проект энергоэффективного дома M86: идеальное пространство для здоровья

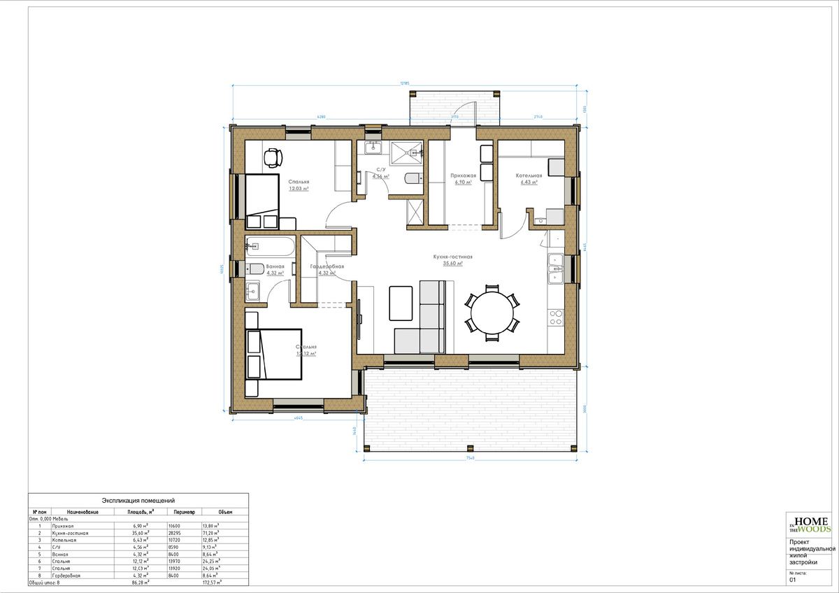
Планируете построить лучший дом для жизни, где современный комфорт встречается с экологичностью? Проект M86 с отапливаемой площадью 86 м² — это воплощение идеи о светлом, уютном и безопасном жилье, идеально подходящем для семьи из 2–3 человек. Если вы рассматриваете соломенный дом как основу для будущего семейного гнезда, данный проект станет безупречным выбором. Центральное место в доме занимает просторная гостиная, объединенная с зоной столовой. Это солнечное пространство создано для теплых встреч и отдыха. Использование натуральных материалов, таких как современные соломенные панели, позволяет поддерживать внутри идеальный микроклимат: зимой в таком доме тепло, а летом — свежо. Две просторные спальни: в каждой из них запроектированы полноценные системы хранения, что позволяет рационально использовать каждый метр. Два удобных санузла: наличие ванной комнаты и дополнительного санузла обеспечивает уровень комфорта, соответствующий самым высоким стандартам. Функциональная кухня: зона пр
Оглавление

Планируете построить лучший дом для жизни, где современный комфорт встречается с экологичностью? Проект M86 с отапливаемой площадью 86 м² — это воплощение идеи о светлом, уютном и безопасном жилье, идеально подходящем для семьи из 2–3 человек. Если вы рассматриваете соломенный дом как основу для будущего семейного гнезда, данный проект станет безупречным выбором.

Планировка, продуманная до мелочей

Центральное место в доме занимает просторная гостиная, объединенная с зоной столовой. Это солнечное пространство создано для теплых встреч и отдыха. Использование натуральных материалов, таких как современные соломенные панели, позволяет поддерживать внутри идеальный микроклимат: зимой в таком доме тепло, а летом — свежо.

В доме предусмотрены:

Две просторные спальни: в каждой из них запроектированы полноценные системы хранения, что позволяет рационально использовать каждый метр.

Два удобных санузла: наличие ванной комнаты и дополнительного санузла обеспечивает уровень комфорта, соответствующий самым высоким стандартам.

Функциональная кухня: зона приготовления пищи оборудована всем необходимым для размещения встроенной техники, превращая кулинарный процесс в удовольствие.

Здоровье и эстетика в каждом метре

Выбирая дом из соломы, вы выбираете жизнь без аллергенов и токсичных материалов. Это настоящий дом для здоровья, где стены «дышат», а отличная звукоизоляция обеспечивает тишину и покой.

Большие окна позволяют максимально эффективно использовать естественный дневной свет, наполняя комнаты жизнью. Фасад дома, выполненный в спокойных природных тонах, гармонично вписывается в ландшафт, подчеркивая статус владельца, ценящего экологичный стиль жизни.

Почему проект M86 — это ваш выбор?

Комбинация продуманной эргономики, энергоэффективных технологий и уютного внутреннего дизайна делает этот дом лидером в своем сегменте. Это не просто здание, а инвестиция в ваш комфорт.

Закажите строительство по проекту M86 на сайте spgreencube.ru и начните новую главу в доме, который заботится о вас!

Подпишитесь на канал. Здесь все о соломенных домах!