Добавить в корзинуПозвонить
Найти в Дзене

ВЫБИРАЕМ ПЛАНИРОВКУ ГОСТЕВОГО ДОМА. Нужны советы

В этом году мы планируем поставить в Крыму два гостевых домика.
Очень многие друзья, знакомые и подписчики спрашивают , когда уже можно будет к нам приезжать.
Хочется иметь возможность разместить гостей и заодно иметь доход на новом месте.
Сейчас мы уже активно присматривемся к модульным домикам, общаемся с несколькими компаниями и у меня уже голова кругом от вариантов. Нужны ваши советы по

В этом году мы планируем поставить в Крыму два гостевых домика.

Очень многие друзья, знакомые и подписчики спрашивают , когда уже можно будет к нам приезжать.

Хочется иметь возможность разместить гостей и заодно иметь доход на новом месте.

Сейчас мы уже активно присматривемся к модульным домикам, общаемся с несколькими компаниями и у меня уже голова кругом от вариантов. Нужны ваши советы по нескольким вопросам.

Итак, расскажу про задачи, которые должны решать эти домики и какие дилеммы передо мной стоят.

Нужно что бы в каждом домике могла разместиться семья мама, папа и двое детей. Срок проживания может быть и месяц. Так что должно быть достаточно комфортно гостям.

Помимо кухни, обеденной группы, дивана в гостиной и кровати в спальне, должны поместиться холодильник, стиральная машинка и шкаф.

Помимо домиков мы решаем и другие задачи, и так как свою недвижимость в Питере пока не продаём, то бюджет не сильно большой. Хочется симпатично, уютно, но бюджетно.

Сейчас я вам покажу два варианта домиков, расскажу свои мысли, а потом мы обсудим еще парочку концептуальных вопросов.

Обращайте внимание на метраж!

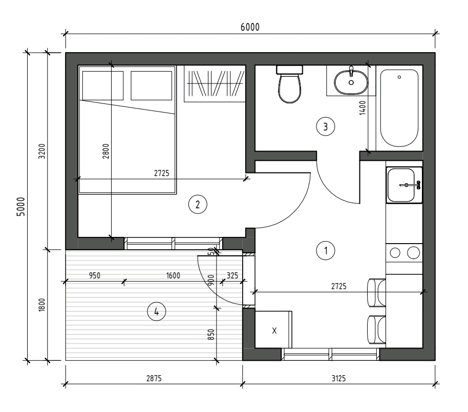
Итак, первый вариант

Домик небольшой, с небольшой терассой. По бюджету для меня идеальный. Но есть ощущение, что слишком маленький и в гостиную если и влезет небольшой диванчик, то уже шкаф и холодильник точно нет. Но повторюсь, по бюджету идеальный.

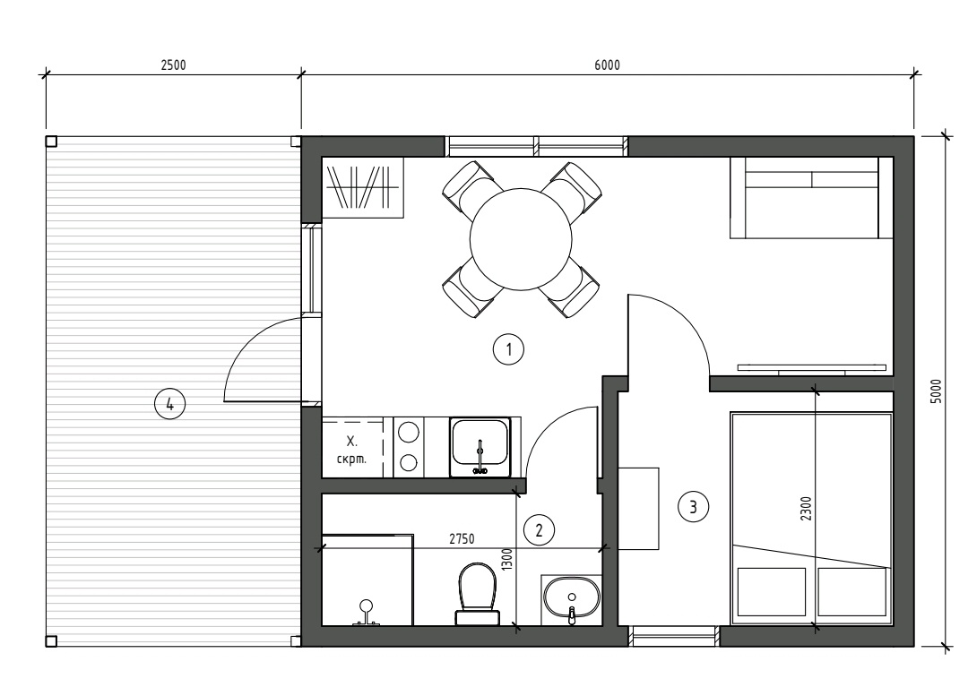
Домик номер два

-2

Здесь уже как будто есть возможность поиграть с расстановкой и впихнуть невпихуемое. Этот домик подороже, уже придётся напрячься, что бы поставить два, но думаю , что все таки ставим один раз и навсегда, надо побольше. Здесь еще большая терасса, можно с комфортом оборудовать место для посиделок на улице.

Так, что смущает.

Я хотела поставить домики рядом и между ними сделать общий двор с летней кухней.

Кто жил на юге знает, что готовить летом в доме это так себе, на улице намного приятнее. Именно поэтому в южных домах как правило есть кухня в доме и летняя кухня.

Летнюю кухню я планирую оборудовать плитой, местом для приготовления еды, ящиками для посуды, мангалом и несколькими столиками, которые можно при желании сдвинуть.

Такое общее место посиделок, где гости могут готовить, принимать пищу и общаться. Мне кажется это очень классно.

Но есть и другие мнения. Моя подруга сказала, что ей бы не хотелось на отдыхе готовить и есть с другими людьми.

Вот очень интересно ваше мнение. Делать для каждого домика отдельную летнюю кухню так себе идея. У каждого домика и так будет своя терасса, своя небольшая кухня в доме и своя приватная зона отдыха с цветами и качельками.

Еще есть вопросы, которые касаются отделки. Все эти модульные домики практически идут с отделкой вагонкой. Это вроде как экологично, но не очень современно, как мне кажется.

Мне хочется в каждом помещении сделать акцентную стену, которую оклеить красивыми обоями. Сейчас их очень много и они невероятно красивые.

Вот здесь тоже хочу вас послушать.

Вот на этом месте где я сижу,  будут домики
Вот на этом месте где я сижу, будут домики

У нас очень красивые места и я уверена, что гости будут с удовольствием приезжать. Но вот что бы они приехали не один раз, а приезжали снова и снова нужно все придумать и сделать отдых у нас комфортным.

Итак, у нас главные вопросы:

• Планировка. Какую выбираем? Или может что-то доработать и изменить?

• Насколько комфортно будет разместить летнюю кухню во дворе, между домами?

• Отделка вагонкой. Как к этому относитесь?

Буду очень признательна вам за помощь и за советы, этот тот случай когда они нужны.

Может у вас есть аналогичный опыт создания гостевых домиков.