Найти в Дзене

Начинаем разбор нового проекта с конструкцией под ТВ

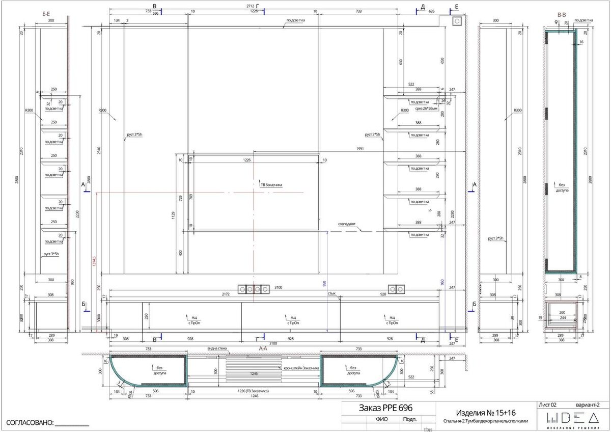
Здесь вся композиция выстроена вокруг плавной кривой: радиусные боковины, скругленная линия фасадов, сопряжение с вертикальной панелью и открытыми полками. (см. рис. 1). По чертежам хорошо видно, что радиус задан не только по фасаду, но и по корпусу: гнутые детали идут через всю глубину изделия. Это потребовало отдельного расчета раскроя и последующей подгонки на этапе сборки. Нижний блок конструкции решен как визуально легкая линия хранения: выдвижные ящики на скрытых направляющих, с равномерным ритмом фасадов и точной посадкой по высоте. Важно, что радиус сохранен и в нижней части — без обрывов и прямых торцов (см. рис. 2). Отдельного внимания заслуживает декоративная панель с полками: полки «врезаются» в радиусную часть, подсветка интегрирована во врезной профиль и работает как мягкий контур. Дальше будем разбирать остальные изделия этого проекта — по той же логике: от чертежа к реализованной форме.

Начинаем разбор нового проекта с конструкцией под ТВ.

Здесь вся композиция выстроена вокруг плавной кривой: радиусные боковины, скругленная линия фасадов, сопряжение с вертикальной панелью и открытыми полками. (см. рис. 1).

По чертежам хорошо видно, что радиус задан не только по фасаду, но и по корпусу: гнутые детали идут через всю глубину изделия. Это потребовало отдельного расчета раскроя и последующей подгонки на этапе сборки.

Нижний блок конструкции решен как визуально легкая линия хранения: выдвижные ящики на скрытых направляющих, с равномерным ритмом фасадов и точной посадкой по высоте. Важно, что радиус сохранен и в нижней части — без обрывов и прямых торцов (см. рис. 2).

Отдельного внимания заслуживает декоративная панель с полками: полки «врезаются» в радиусную часть, подсветка интегрирована во врезной профиль и работает как мягкий контур.

Дальше будем разбирать остальные изделия этого проекта — по той же логике: от чертежа к реализованной форме.

-2
-3
-4