Найти в Дзене

ПРОЕКТ: ТИПОВОЙ ИЛИ ИНДИВИДУАЛЬНЫЙ

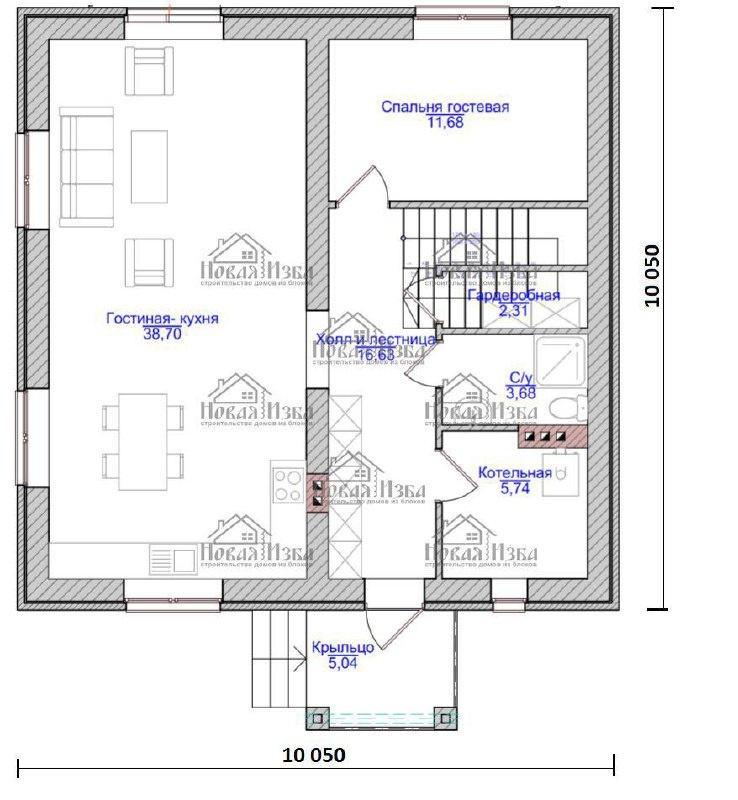
Часть 2. Продолжая тему предыдущего поста, покажем Вам примеры проектов, один из которых мы относим к типовым, а второй индивидуально разработанный, на основе пожеланий заказчика. Эти 2 проекта были успешно нами реализованы, с результатами Вы можете ознакомится на нашем сайте, более того, советуем посмотреть наш видеообзор готового дома. Названия представленных проектов для ознакомления на сайте: 1. (типовой) ФАГОТ (148,3 м2) 2. (индивидуальный) ДВИНА (353,5 м2) Cсылка на видеообзор (проект ДВИНА): https://www.newizba.ru/projects/dvina.php 🌐Сайт: https://www.newizba.ru/projects/ 📨Почта: mail@newizba.ru ☎️Телефон: +7 495 618-24-90 ✳️WhatsApp: +7 926 759-91-77 MAX: +7 926 759-91-77

ПРОЕКТ: ТИПОВОЙ ИЛИ ИНДИВИДУАЛЬНЫЙ. Часть 2.

Продолжая тему предыдущего поста, покажем Вам примеры проектов, один из которых мы относим к типовым, а второй индивидуально разработанный, на основе пожеланий заказчика.

Эти 2 проекта были успешно нами реализованы, с результатами Вы можете ознакомится на нашем сайте, более того, советуем посмотреть наш видеообзор готового дома.

Названия представленных проектов для ознакомления на сайте:

1. (типовой) ФАГОТ (148,3 м2)

2. (индивидуальный) ДВИНА (353,5 м2)

Cсылка на видеообзор (проект ДВИНА): https://www.newizba.ru/projects/dvina.php

🌐Сайт: https://www.newizba.ru/projects/

📨Почта: mail@newizba.ru

☎️Телефон: +7 495 618-24-90

✳️WhatsApp: +7 926 759-91-77

MAX: +7 926 759-91-77

-2
-3
-4
-5
-6