Добавить в корзинуПозвонить
Найти в Дзене
ДОМ-Т

«ЭГОИСТ-308»: премиальный дом, где стираются границы с природой

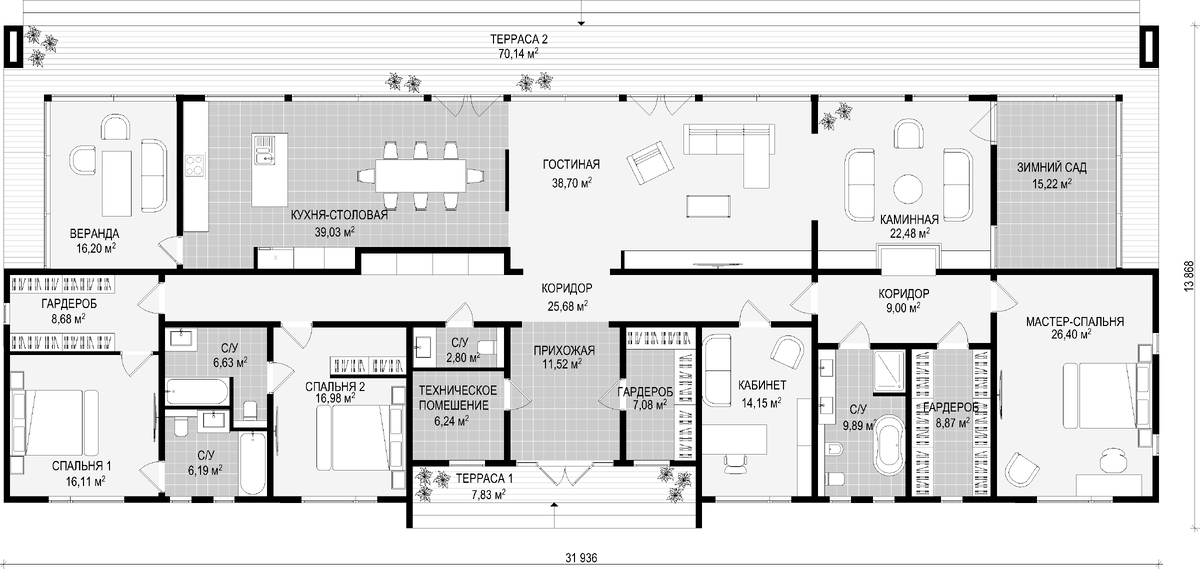
Представьте пространство, где дом и природа становятся единым целым. Где натуральные материалы, панорамное остекление и продуманная архитектура создают живую симфонию покоя и гармонии. Это не просто дом — это ваше личное убежище. Сердце дома: каминный оазис В центре проекта расположена изысканная каминная зона — идеальное место для зимних вечеров. Мерцание живого огня, его уютное потрескивание и мягкий свет наполняют пространство магической атмосферой тепла и безмятежности. Продуманная гармония пространства Одноэтажная планировка «Эгоиста-308» — образец эргономики и комфорта. Здесь нет случайных зон: Идеальный баланс функциональности и эстетики Этот проект создан для тех, кто ценит: «Эгоист-308» — выбор для постоянного проживания или создания исключительного загородного пространства для семьи, где каждый найдет и уединение, и место для общения. Характеристики проекта: Общая площадь: 385,82 м²
Жилая площадь: 307,85 м²
Террасы и балконы: 77,97 м²
Спальни: 3
Санузлы: 4
Кабинет: 1
Техничес

Представьте пространство, где дом и природа становятся единым целым. Где натуральные материалы, панорамное остекление и продуманная архитектура создают живую симфонию покоя и гармонии. Это не просто дом — это ваше личное убежище.

Сердце дома: каминный оазис

В центре проекта расположена изысканная каминная зона — идеальное место для зимних вечеров. Мерцание живого огня, его уютное потрескивание и мягкий свет наполняют пространство магической атмосферой тепла и безмятежности.

Продуманная гармония пространства

Одноэтажная планировка «Эгоиста-308» — образец эргономики и комфорта. Здесь нет случайных зон:

  • для жизни: 3 спальни (включая мастер-спальню) с 4 санузлами, просторная гостиная-кухня-столовая, кабинет;
  • для комфорта: 2 гардеробные, отдельный технический холл для оборудования;
  • для души: зимний сад, светлая веранда и большая терраса (70,14 м²), открывающая живописные виды через панорамное остекление.

Идеальный баланс функциональности и эстетики

Этот проект создан для тех, кто ценит:

  • единение с природой: зимний сад, террасы, панорамные окна;
  • практичность:отдельный гараж, сауна для релаксации, умное зонирование;
  • свет и пространство: обилие естественного света и визуальная свобода каждого помещения.

«Эгоист-308» — выбор для постоянного проживания или создания исключительного загородного пространства для семьи, где каждый найдет и уединение, и место для общения.

-2

Характеристики проекта:

Общая площадь: 385,82 м²
Жилая площадь: 307,85 м²
Террасы и балконы: 77,97 м²
Спальни: 3
Санузлы:
4
Кабинет:
1
Техническое помещение:
да
Гараж:
да
Сауна:
да

-3

Для получения детального плана и расчёта стоимости свяжитесь с нашим менеджером — поможем подобрать оптимальные решения под ваш бюджет и пожелания!

Ваш дом ждет вас!

Узнайте больше на нашем сайте: www.tndom.ru

Звоните для консультации: +7 (495) 774-44-77