Найти в Дзене
CIM-BIM

Генплан на автопилоте? Теперь это реально

Привет, Дзен! На связи команда разработки продукта PIKTools Генплан. Хотите узнать, как генпланисту оперативно создавать, редактировать, оформлять и проверять генеральные планы? Как получать рабочую документацию строительства, сократить трудозатраты на ее разработку? Как наш продукт PIKTools Генплан помогает в этом? Если да, тогда приготовьте себе кофе и погнали — мы продолжаем наш рассказ. Если вы пропустили вводную статью про продукт, советуем начать с нее. Сегодня речь пойдет о модуле «Озеленение». Расскажем о том, из чего он состоит, а также какие прикладные задачи и проблемы он решает. Проектирование озеленения — это не только рисование кружков на плане. Это сложный, комплексный процесс, включающий множество этапов: А вот так выглядит фрагмент плана озеленения, выполненный на квартальной застройке. Ручное создание, выбор и оформление необходимого ассортимента дендроплана или сводного плана благоустройства после каждого изменения — это довольно сложно. Даже в САПР AutoCAD процесс с
Оглавление

Привет, Дзен!

На связи команда разработки продукта PIKTools Генплан.

Хотите узнать, как генпланисту оперативно создавать, редактировать, оформлять и проверять генеральные планы? Как получать рабочую документацию строительства, сократить трудозатраты на ее разработку? Как наш продукт PIKTools Генплан помогает в этом?

Если да, тогда приготовьте себе кофе и погнали — мы продолжаем наш рассказ. Если вы пропустили вводную статью про продукт, советуем начать с нее. Сегодня речь пойдет о модуле «Озеленение». Расскажем о том, из чего он состоит, а также какие прикладные задачи и проблемы он решает.

Методики проектирования благоустройства: от дендроплана до ведомости объемов материалов

Рис 1. Скриншот «PIKTools Генплан. Модуль Озеленение»
Рис 1. Скриншот «PIKTools Генплан. Модуль Озеленение»

Проектирование озеленения — это не только рисование кружков на плане.

Это сложный, комплексный процесс, включающий множество этапов:

  • правильный подбор ассортимента зеленых насаждений согласно климатической зоне и нормам (СП 82.13330.2016);
  • учет декоративности зеленых насаждений и их сочетаний;
  • учет инсоляции, газоустойчивости, агротехники зеленых насаждений;
  • расстановку в модели отдельно стоящих деревьев и кустарников;
  • заполнение штриховками в модели зон посадок живых изгородей из кустарников, многолетников и миксбордеров из травянистых растений и зон с устройством газонов;
  • заполнение всех позиционных обозначений зеленых насаждений;
  • оформление всех элементов зеленых насаждений на плане (все должно быть графически читаемо и иметь необходимые подписи);
  • определения нарушений нормативных отступов и приближений посадок к подземным коммуникациям;
  • формирование дендроплана и перечетной ассортиментной ведомости озеленения;
  • выполнение расчета стоимости посадочного материала и работ.
Рис 2. Скриншот «Пример плана озеленения в ГОСТ 21.508 в монохроме»
Рис 2. Скриншот «Пример плана озеленения в ГОСТ 21.508 в монохроме»

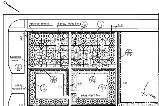
А вот так выглядит фрагмент плана озеленения, выполненный на квартальной застройке.

Рис 3. Скриншот «Пример плана озеленения на квартальной застройке, выполненный в САПР в цвете»
Рис 3. Скриншот «Пример плана озеленения на квартальной застройке, выполненный в САПР в цвете»

Процесс проектирования озеленения сопровождается множеством сложностей. Среди них:

  • трудоемкий подбор ассортимента зеленых насаждений в заданной климатической зоне строительства из огромного на рынке;
  • отсутствие готовой графики в формате DWG ассортимента зеленых насаждений, множество размеров блоков и цветопередачи;
  • большие трудозатраты на составление ассортиментной ведомости вручную при высокой насыщенности благоустройства;
  • длительная расстановка и заполнение позиционных обозначений на плане и ведомости всех зеленых насаждений;
  • трудозатраты для внесения корректировок в ассортиментные ведомости, особенно при большой насыщенности благоустройства на квартальной современной застройке.

Ручное создание, выбор и оформление необходимого ассортимента дендроплана или сводного плана благоустройства после каждого изменения — это довольно сложно. Даже в САПР AutoCAD процесс создания своей библиотеки блоков может занять месяцы. Например, все это нужно сделать в одном файле DWG, что также непростая задача озеленителя-генпланиста.

Текущая ситуация и сложный процесс создания плана благоустройства (и в частности, плана озеленения) привела нашу команду к разработке модуля «Озеленение», который с английской педантичностью и четкостью выполняет эти прикладные задачи.

Таблица ниже демонстрирует, какие именно задачи облегчаются с помощью нового решения, подчеркивает его ценность для озеленителей и генпланистов и помогает сделать осознанный выбор инструмента для работы.

Рис 4. Скриншот «Таблица сравнения задач САПР/САПР+PIKTools Генплан»
Рис 4. Скриншот «Таблица сравнения задач САПР/САПР+PIKTools Генплан»

Подход и решения PIKTools Генплан в модуле «Озеленение»

PIKTools Генплан реализует объектно-ориентированный подход к проектированию благоустройства. В его основе — библиотека классифицированных элементов с настроенными пользовательскими свойствами с графическим представлением.

Модуль «Озеленение», а также модуль «Общее ГП» формализует лучшие отраслевые практики, зашивая нормативы и алгоритмы расчетов прямо в инструменты.

Вот краткое описание всех функциональных возможностей модуля «Озеленение»:

  • автоматизированное создание ведомости озеленения по блокам, штриховкам и полилиниям;
  • выбор элементов для нескольких границ проектирования (например, этапы строительства);
  • группировка объемов по разным границам проектирования в одну таблицу;
  • считывание элементов из внешних ссылок DWG;
  • предварительный просмотр готовой таблицы до вставки в модель;
  • экспорт таблицы в Excel с условными знаками и изображениями;
  • вставка таблицы в чертеж с графическим отображением элемента на плане;
  • вставка таблицы в разных масштабах аннотации;
  • разные подачи и представления ведомостей озеленения (проектная рабочая документация, АГР, ГОСТ, Реновация);
  • автоматизированное создание и заполнение подписей позиционных обозначений озеленения по ГОСТ и вывод на печать;
  • библиотека озеленения (палитра растений, CAD-графика, функциональные типы, параметры) с готовыми пользовательскими свойствами озеленения и посадочного материала (деревья, кустарники, многолетники, газон).
Рис 5. Скриншот «Описание функций модуля «Озеленение»
Рис 5. Скриншот «Описание функций модуля «Озеленение»
Рис 6. Скриншот «Функции модуля «Озеленение»
Рис 6. Скриншот «Функции модуля «Озеленение»

Ведомость озеленения как составная часть плана благоустройства

Рассмотрим несколько примеров прикладных задач и их решений с помощью инструментов PIKTools Генплан.

План благоустройства на квартальной застройке очень насыщен информацией о проектируемых элементах. Поэтому его детализируют в виде отдельного плана сводного озеленения (план отдельно стоящих деревьев и кустарников, цветников из многолетников, живых изгородей и так далее, см. ГОСТ 21.508 п10.3). Всю эту информацию выполняют в формате DWG и используют внешние ссылки, чтобы оптимизировать управление данными и быстродействием САПР.

Рис 7. Скриншот  «Пример. Состав сводного плана озеленения DWG»
Рис 7. Скриншот  «Пример. Состав сводного плана озеленения DWG»

Рассмотрим прикладную задачу: «Выполнить сводную ведомость озеленения по всему проекту». Инструмент «Ведомость озеленения» сделает это за вас за пару кликов мышкой.

Для создания чертежа «План озеленения» используем несколько инструментов PIKTools Генплан. Это «Метки озеленения» и «Ведомость озеленения Тип Р» — генератор условных знаков и листа для его оформления и печати в PDF для создания подписей и необходимых таблиц с заполнением.

Инструменты расстановки элементов:

  • расстановка по контуру — для создания аллей и живых изгородей;
  • хаотичное размещение внутри полигона, имитирующее природную случайность — для создания групп кустарников и многолетников в цветниках;
  • расстановка по точкам — для штучных деревьев-солитеров.

Инструменты расчетов ассортимента:

  • ассортиментная ведомость для дендроплана;
  • ведомость объемов материалов озеленения, типов креплений и ирригаций.

Автоматическая генерация документации:

  • генератор листа — создает лист с видовым экраном плана, ведомости, подписями, заполняет лист типовой аннотацией, примечаниями и прочим.

Автоматический контроль качества:

  • топология — проверяет корректность расположения зеленых насаждений относительно зданий и подземных коммуникаций.

Ассортиментную ведомость и спецификацию всего озеленения можно создать буквально за пару кликов. Она учитывает изменение количества зеленых насаждений в модели озеленения, в частности, отдельно стоящих деревьев и площадь покрытия газонами.

Рис 8. Скриншот «Функции ведомости озеленения тип Р»
Рис 8. Скриншот «Функции ведомости озеленения тип Р»

Предположим, в проекте вы выбрали растения и расставили или начертили их в модели. Для этого вам могли бы помочь инструменты «Раскладка» и функция Family manager, аналог «Поиска по параметрам функционального типа» на маркетплейсах.

Например, найти все лиственные деревья с временем цветения в мае — деревья с желтым цветом окраски.

-9
Рис 9 и 10. Скриншот «Функции ведомости озеленения тип Р»
Рис 9 и 10. Скриншот «Функции ведомости озеленения тип Р»

Готово — перед вами список всех подходящих элементов.

-11
Рис 11 и 12. Скриншот «Функции ведомости озеленения тип Р» и «Фрагмент генплана»
Рис 11 и 12. Скриншот «Функции ведомости озеленения тип Р» и «Фрагмент генплана»

Выбрали способ расстановки:

Рис 13. Скриншот «Функции ведомости озеленения тип Р»
Рис 13. Скриншот «Функции ведомости озеленения тип Р»

Что получилось:

Рис 14. Скриншот «Фрагмент генплана «Бульвар с деревьями»
Рис 14. Скриншот «Фрагмент генплана «Бульвар с деревьями»

В результате этих действий появляется план с контурами, на котором расставлены элементы озеленения. Если вам нужно сделать ведомость, запускаем инструмент, делаем выборку или в модели, или из внешней ссылки DWG, выбираем тип и вставляем таблицу. Готово — вы оперативно получили нужный документ.

-15
Рис 15 и 16. Скриншот  «Ведомость озеленения Тип Р»
Рис 15 и 16. Скриншот  «Ведомость озеленения Тип Р»

Как инструмент повысил качество рабочей документации

Если проверять пересечения, приближения, наложения, дублирование элементов генплана в CАПР Civil вручную, есть большой риск пропустить ошибки. А это окажет прямое влияние на технико-экономические показатели по генплану.

Также у нас есть инструмент «Топология» — она позволяет выявлять ошибки на аппаратном уровне, пользователь не тратит время на их поиск и занимается анализом и решением проблем. Этот инструмент может показывать ему, например, все пересечения бордюров на генплане, посадочные ямы и стволы отдельно стоящих деревьев и кустарников, приближения деревьев и кустарников к подземным коммуникациям.

-17
Рис 17. Скриншот «Топология. Кол-во ошибок на плане»
Рис 17. Скриншот «Топология. Кол-во ошибок на плане»

Результат выводится в окне инструмента, здесь можно также исправить возможные ошибки. Это делается до передачи документации на стройку, что исключает избыточные согласования с подрядчиками возникших в процессе производства коллизий.

Как продукт PIKTools решает проблему расчета ведомости озеленения по нескольким земельным участкам одном проекте

К примеру, у вас в модели есть несколько границ проектирования или границы нескольких стадий строительства, и вам нужно рассчитать и создать ведомость озеленения сразу по двум и более границам. Инструмент автоматизировано посчитает, какие элементы находятся в каждой зоне.

-19
Рис 18 и 19. Скриншот  «Функция «Ведомости озеленения Тип П»
Рис 18 и 19. Скриншот  «Функция «Ведомости озеленения Тип П»
-21
-22
Рис 20 и 21. Скриншот «Интерфейс ведомости озеленения»
Рис 20 и 21. Скриншот «Интерфейс ведомости озеленения»

Как продукт PIKTools удовлетворяет потребности согласований с государственными органами власти

Одним из условий успешного согласования проектной документации и материалов благоустройства с регуляторными ведомствами является наличие в материалах проекта ведомости озеленения с перспективным изображением ассортимента и посадочного материала.

-24
Рис 22 и 23. Скриншот «Пример подачи таблицы окна «Ведомость Озеленения»
Рис 22 и 23. Скриншот «Пример подачи таблицы окна «Ведомость Озеленения»

Как сделать эту таблицу с минимальными трудозатратами? Вручную это выполняется через поиск файла картинки на просторах интернета, потом сохранение этих файлов на компьютере. И только после всего этого файлы можно вставлять в пространство модели в САПР Civil в чертеж формата DWG как растровое изображение и накладывать сверху таблицы CAD эти картинки по соответствию названия растения и его изображению.

Рассмотрим создание проекта жилой застройки с дворовой и прилегающей территорией с более чем тысячей различных позиций посадочного материала. Сколько времени уйдет на это при выполнении задачи вручную?

-26
Рис 24 и 25. Скриншот «PIKTools Генплан. Инструмент «Просмотр элементов»
Рис 24 и 25. Скриншот «PIKTools Генплан. Инструмент «Просмотр элементов»

Звучит очень трудоемко. Например, 10 минут на поиск картинки в интернете или справочнике, 20 минут на создание растра в DWG, и так тысячу раз — получается 3 тысячи минут на одну таблицу ведомости АГР. И это не считая необходимости изменений в таблице — тогда придется все повторить сначала. А с помощью модуля «Озеленение» эта задача выполняется за одну минуту! Запустили инструмент, выбрали тип ведомости, вставили в DWG или экспортировали в Excel. Готово!

-28
Рис 26 и 27. Скриншот «PIKTools Генплан»
Рис 26 и 27. Скриншот «PIKTools Генплан»

С помощью генератора условных знаков и генератора листа можно подготовить и оформить лист необходимой документации для печати и дальнейшего согласования в департаменте градостроительной политики.

-30
-31
Рис 28, 29 и 30. Скриншот «PIKTools Генплан»
Рис 28, 29 и 30. Скриншот «PIKTools Генплан»

---------------------------------------------------------------------

Заключение

Для подготовки этой статьи использовались функции продукта и реальные объекты, которые прошли положительное заключение экспертизы.

Используемые инструменты продукта для статьи:

  • ведомость озеленения стадия П;
  • ведомость озеленения стадия Р;
  • ведомость озеленения стадия ГОСТ;
  • АГР;
  • метки П;
  • метки Р;
  • контроль меток (есть выноска или нет, подписано насаждение или нет);
  • расстановка насаждений (рядовая, шахматная, аллейная, по контуру);
  • топология — отношения между пространственными объектами и их связями (проверка пересечений с сетями, ГП-ГП, озел. — освещение, озел. — бордюры, озел. — здания);
  • стикер П — ведомость объемов материалов;
  • элементы — отдельно стоящие деревья и кустарники, живые изгороди из кустарников, многолетники и миксы из многолетних травянистых растений, кастомное озеленение;
  • замена одного ассортимента на другой;
  • генератор листа — план озеленения с типовой аннотацией;
  • условные знаки озеленения как часть плана благоустройства по ГОСТ (УЗ дерева, куста);
  • оптимизатор классификации (если есть концепция озеленения, то ее можно превратить в смарт-озеленение, деревья, кустарники, многолетники и газоны).

Преимущества от использования PIKTools Генплан и CAD-стандарт:

  • создание единого оформления РД, включая слои, цвета и имена зеленых насаждений;
  • сокращение трудозатрат на разработку плана благоустройства;
  • сокращение трудозатрат на разработку материалов и архитектурно-градостроительного анализа для департамента;
  • оптимизирование процесса проектирования;
  • оптимизирование графики и единообразия чертежей для строительства;
  • ускорение расчета объемов материалов;
  • наполнение и повышение качества машиночитаемых данных в моделях;
  • выполнение чертежей по ГОСТ.