Добавить в корзинуПозвонить
Найти в Дзене
Филдс

Теплые стены в шкафу и круглое окно в спальне: как оформили евродвушку 40 м² для стоматолога

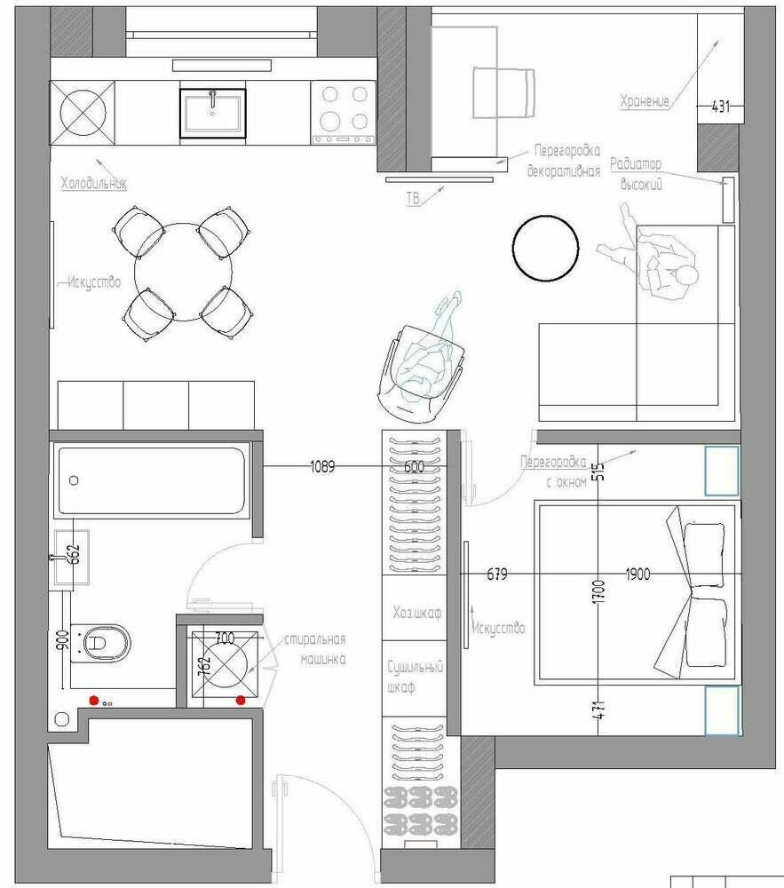
Дизайнер Анна Шевченко оформила евродвушку 40 м² для молодого мужчины, стоматолога по профессии. Требовалось создать легкий и жизнерадостный интерьер, поэтому автор проекта не побоялась использовать яркие краски. Пространство полностью перекроили: создали объединенную кухню-гостиную, продлили прихожую, чтобы организовать в ней вместительную систему хранения. Контур санузла несколько изменили, чтобы запланировать нишу для шкафа со стиральной машинкой. Изолированной сделали только спальню. Несмотря на то, что гостиную и кухню объединили, для них выбрали разную цветовую палитру. В гостиной это оттенки синего. Их можно видеть не только в отделке, но и в мебели. Разбавить насыщенную базу помогают белые элементы: вертикальный радиатор, который неожиданно перекликается с журнальным столиком, бра, ручки на фасадах шкафа. Чтобы немного приземлить интерьер, современный диван дополнили винтажным креслом в стиле mid-century. Рабочее место организовали за единственной разделяющей кухню и гостину
Оглавление

Дизайнер Анна Шевченко оформила евродвушку 40 м² для молодого мужчины, стоматолога по профессии. Требовалось создать легкий и жизнерадостный интерьер, поэтому автор проекта не побоялась использовать яркие краски.

  • Общая площадь: 40 м²
  • Место: Москва
  • Количество комнат: евротрешка
  • Высота потолка: 3,4 м
  • Бюджет: 3 млн рублей
  • Кто здесь живет: мужчина
  • Дизайнер: Анна Шевченко (студия 2312interiors)
  • Фото: Евгений Кулибаба

Планировка

Пространство полностью перекроили: создали объединенную кухню-гостиную, продлили прихожую, чтобы организовать в ней вместительную систему хранения. Контур санузла несколько изменили, чтобы запланировать нишу для шкафа со стиральной машинкой. Изолированной сделали только спальню.

Гостиная

Несмотря на то, что гостиную и кухню объединили, для них выбрали разную цветовую палитру. В гостиной это оттенки синего. Их можно видеть не только в отделке, но и в мебели. Разбавить насыщенную базу помогают белые элементы: вертикальный радиатор, который неожиданно перекликается с журнальным столиком, бра, ручки на фасадах шкафа.

Чтобы немного приземлить интерьер, современный диван дополнили винтажным креслом в стиле mid-century.

-3

Рабочее место организовали за единственной разделяющей кухню и гостиную перегородкой. Для оформления этой зоны выбрали нейтральный фон, который разнообразили графичным акцентом на стене. Роспись помогла идейно связать весь интерьер воедино.

Кухня

Кухонный гарнитур построили линейно вдоль окна. Его глянцевые фасады стали главным цветовым акцентом. В роли вспомогательного выступил бордовый ретро-холодильник. Его поддержали цоколем кухни и плинтусами в тон.

У противоположной стены организовали дополнительные системы хранения — винтажную консоль и антресоль с теми же фасадами, что и у кухни. Композиционно объединить охристо-желтую корпусную мебель помог кант под потолком.

Центральное место заняла столовая группа. Особого внимания заслуживает необычная люстра из металла и белых стеклянных шаров.

Спальня

Поскольку спальня без окон, в перегородке с ней предусмотрели круглое отверстие, через которое в комнату проникает естественный свет. Несмотря на небольшую площадь, в помещении поместилась не только кровать, но и встроенный шкаф с фасадами в тон стенам. Прикроватные тумбы сделали подвесными, чтобы облегчить интерьер.

Прихожая

Прихожую практически полностью заключили в охристо-желтый объем. Белым оставили только потолок, тогда как все двери и фасады систем хранения оформили в тон стенам. Арочный проем, ведущий в комнату, перекликается с зеркалом при входе.

-9

В одном из шкафов предусмотрели теплые стены для сушки белья. Он находится прямо напротив модуля со стиральной машинкой.

-10

Санузел

В отделке стен в санузле скомбинировали плитку и краску, на пол уложили тот же керамогранит, что и в прихожей. Ванну от застройщика сохранили, как и просил заказчик, но для удобства запланировали рядом две ниши для косметических принадлежностей.

-11

Интересные мнения в комментариях приветствуются. Если материал понравился — ставь лайк!

🖤 Филдс — это не только блог на Дзене, но и магазин дизайнерской мебели.