Добавить в корзинуПозвонить
Найти в Дзене
Берег Песочной

Уютный двухэтажный дом в современном стиле с пятью спальнями

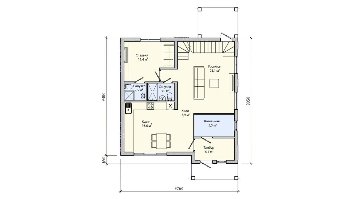
🏡 Представляем наш проект — одноэтажный дом БП-135.2! Проект БП-135.2 — уютный двухэтажный дом в современном стиле с пятью спальнями. Этот загородный коттедж из железобетонных панелей БЭНПАН Премиум создан для комфортной жизни семьи из 5-6 человек. 🔹 Планировка дома: Вход ведет в тамбур, далее — просторная кухня-гостиная с лестницей на второй этаж, Из тамбура можно попасть в котельную, Небольшой коридор ведет к санузлу и гостевой спальне с собственным санузлом, На втором этаже — холл, четыре спальни и два санузла (один из них — к спальне). 🔗 Подробнее о проекте: https://beregpesochnoy.ru/construction/lot-no9b
❓ А вы мечтаете о доме с множеством спален и современным стилем? Какие особенности будущего дома для вас важны? Поделитесь в комментариях! 📞 Хотите узнать больше о проекте БП-135.2? Пишите или звоните: +7 (495) 260-98-32 #загородныйдом #строительство #архитектура #современныйдом #доммечты #коттедж #частныйдом #уют #современныйстиль #жилье #строимснами #домподключ

🏡 Представляем наш проект — одноэтажный дом БП-135.2!

Проект БП-135.2 — уютный двухэтажный дом в современном стиле с пятью спальнями. Этот загородный коттедж из железобетонных панелей БЭНПАН Премиум создан для комфортной жизни семьи из 5-6 человек.

-2
-3
-4

🔹 Планировка дома:

Вход ведет в тамбур, далее — просторная кухня-гостиная с лестницей на второй этаж,

Из тамбура можно попасть в котельную,

Небольшой коридор ведет к санузлу и гостевой спальне с собственным санузлом,

На втором этаже — холл, четыре спальни и два санузла (один из них — к спальне).

🔗 Подробнее о проекте: https://beregpesochnoy.ru/construction/lot-no9b

❓ А вы мечтаете о доме с множеством спален и современным стилем? Какие особенности будущего дома для вас важны?

Поделитесь в комментариях!

📞 Хотите узнать больше о проекте БП-135.2? Пишите или звоните: +7 (495) 260-98-32

#загородныйдом #строительство #архитектура #современныйдом #доммечты #коттедж #частныйдом #уют #современныйстиль #жилье #строимснами #домподключ