Найти в Дзене
ВФ-СТРОЙ

✅ Рубрика: Проекты домов

Проект дома в стиле Хай-тек с эксплуатируемой кровлей S-182
https://www.vfstroy.ru/catalog/project/s-182/
.
.
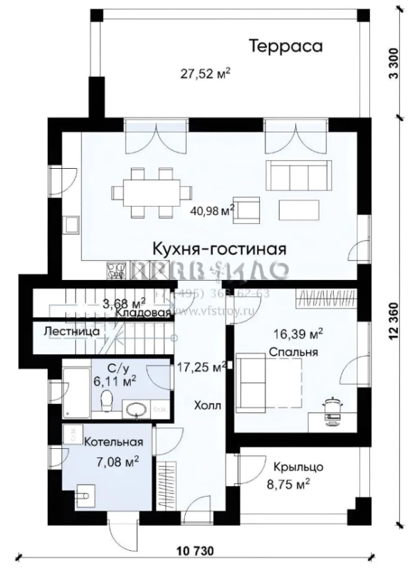
Перед нами – двухэтажный хайтек-дом, кубические формы и плоская крыша которого понравятся тем, кого привлекает современный стиль в архитектуре. Планировка и размеры дома рассчитаны на проживание 4-5 человек.
.
На первом этаже много функциональных помещений, но начать следует с главного – кухни-гостиной. 40-метровое пространство объединило в себе кухонную зону, большой обеденный стол и диван, на котором вся семья сможет вечерами смотреть любимый сериал. А в теплую погоду можно распахнуть панорамные окна-двери и «продолжить» гостиную летней террасой.
.
На этаже есть полноценная спальня и большая ванная комната. Котельная может совмещать в себе функционал постирочной, а под лестницей вы найдете кладовую для любых вещей, которые могут пригодиться в быту.
.
Второй этаж тоже крайне интересен. Здесь есть три спальни, и у каждой – своя гардеробная. А в родительской мастер-спальне еще и

Проект дома в стиле Хай-тек с эксплуатируемой кровлей S-182
https://www.vfstroy.ru/catalog/project/s-182/
.
.
Перед нами – двухэтажный хайтек-дом, кубические формы и плоская крыша которого понравятся тем, кого привлекает современный стиль в архитектуре. Планировка и размеры дома рассчитаны на проживание 4-5 человек.
.
На первом этаже много функциональных помещений, но начать следует с главного – кухни-гостиной. 40-метровое пространство объединило в себе кухонную зону, большой обеденный стол и диван, на котором вся семья сможет вечерами смотреть любимый сериал. А в теплую погоду можно распахнуть панорамные окна-двери и «продолжить» гостиную летней террасой.
.
На этаже есть полноценная спальня и большая ванная комната. Котельная может совмещать в себе функционал постирочной, а под лестницей вы найдете кладовую для любых вещей, которые могут пригодиться в быту.
.
Второй этаж тоже крайне интересен. Здесь есть три спальни, и у каждой – своя гардеробная. А в родительской мастер-спальне еще и свой санузел. Вторая ванная комната, расположенная на этаже, также в вашем распоряжении. Но главная «изюминка» второго этажа – это большая терраса, по сути являющаяся эксплуатируемой кровлей. Согласитесь, мало что может сравниться с чашкой кофе утром на террасе собственного загородного дома.
.
.
.
__________________________
Ещё больше информации о новостях малоэтажного строительства на сайте
www.vfstroy.ru/
Выбирайте проекты домов из нашего каталога
www.vfstroy.ru/catalog/ и стройматериалы shop.vfstroy.ru/catalog/, посещайте реализованные, ответим на все интересующие вас вопросы, +7 (495) 363-62-63 #правило_проекты