Добавить в корзинуПозвонить
Найти в Дзене
Частная Архитектура

Дом как тотальное произведение искусства: между бункером и оперой

Архитектор Пеннелл спроектировал этот дом как гипотетический проект и вместе с несколькими студентами и одним подрядчиком построил большую его часть самостоятельно, используя простые материалы сложными способами. Дом оснащен таким количеством художественных и механических приспособлений, что невольно возникает вопрос: “Боже мой, кто же, чёрт возьми, построил этот дом? Он выглядит таким строгим, таким внушительным, таким индустриальным! И всё же в нём есть изящество европейского дворцового великолепия! Абстрактная необычность ранних импрессионистов! Величие Аалто или Лооса!» Прямоугольное здание имеет три надземных уровня с частично затопленным подвальным этажом. Камни, выкопанные из фундамента, которые команда подтолкнула как можно ближе к улице, были сложены вокруг основания, чтобы придать ему деревенский вид. Снаружи дом узкий, а его бетонные элементы фундамента выступают из скалистого склона. Большая часть дома обшита фанерой, а сторона, выходящая на улицу, — массивными панелями Ha

Архитектор Пеннелл спроектировал этот дом как гипотетический проект и вместе с несколькими студентами и одним подрядчиком построил большую его часть самостоятельно, используя простые материалы сложными способами.

-2

Дом оснащен таким количеством художественных и механических приспособлений, что невольно возникает вопрос: “Боже мой, кто же, чёрт возьми, построил этот дом? Он выглядит таким строгим, таким внушительным, таким индустриальным! И всё же в нём есть изящество европейского дворцового великолепия! Абстрактная необычность ранних импрессионистов! Величие Аалто или Лооса!»

-3

Прямоугольное здание имеет три надземных уровня с частично затопленным подвальным этажом. Камни, выкопанные из фундамента, которые команда подтолкнула как можно ближе к улице, были сложены вокруг основания, чтобы придать ему деревенский вид. Снаружи дом узкий, а его бетонные элементы фундамента выступают из скалистого склона. Большая часть дома обшита фанерой, а сторона, выходящая на улицу, — массивными панелями Hardie Board, «уложенными внахлест, как гигантская черепица». Отдельные панели скреплены большими винтами с шестигранной головкой, чтобы они выглядели как механически соединенные заклепками.

-4
-5

Главный вход находится с одной стороны, а с другой фасад утоплен с консольным элементом крыльца, выступающим из фасада наподобие «бульдозерного лезвия». На фасаде этой стороны видна фанера, использованная для каркаса большей части дома. Вдоль широкой стороны здания расположен ряд внешних колонн из конструкционного железа, зажатых между стропилами плит перекрытия. Между каждым из этих вертикальных элементов натянуты металлические тросы, поддерживающие «бульдозерный отвал» и консольные свесы крыши. «Подобно тому, как павлин использует свои перья, чтобы казаться более устрашающе большим и красивым, дом окружен различными экзоскелетными приспособлениями, чтобы увеличить его воспринимаемый масштаб и массу, — сказал Пеннелл. — Оболочка дома становится более многослойной и неоднозначной, в отличие от простой и простой«.

-6
-7

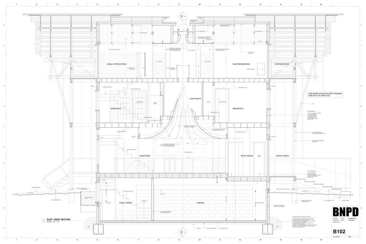
Конструкция крыши состоит из трёх больших ферм, а её плоскости расположены слоями, что придаёт всей конструкции телескопический вид. На вершине вырезанных лазером стальных колпаков формируются косынки ферм и профили карнизов, которые, по словам Пеннелла, были навеяны декоративными «мини-крышами», встречающимися в японской архитектуре. В центре крыши над трёхуровневым световым колодцем в центре плана расположен прозрачный купол, напоминающий тот, что использовался в качестве куполообразных фонарей в бомбардировщиках времен Второй мировой войны. Внутри план Пеннелла должен был напоминать планировку церкви, с кухонным островом вместо алтаря, поэтому в плане имеет форму креста. «Кухонный остров — это алтарь. Короткая ось — это главная ось«, — рассказал Пеннелл, сравнив её с планировкой церкви Святого Георгия в Блумсбери в Лондоне, спроектированной английским архитектором XVIII века Николасом Хоксмуром.

-8
-9

Стены оштукатурены, полы деревянные, мебель столярная и обшивка стен выполнена в современном стиле, хотя выше штукатурка, словно водоворот, устремляется к центральному световому колодцу, заполненному скульптурной инсталляцией Пеннелла. Часть плана первого и второго этажей выступает за фасад, на первом этаже имеются эркеры, а на втором — окно-иллюминатор. На втором этаже находятся две спальни и детская игровая комната. Палитра материалов на втором и третьем этажах напоминает палитру первого, с белыми стенами. Однако планировка более прогрессивная, с открытыми стенами между каждой комнатой, а не коридорами. На третьем, самом верхнем этаже, находятся главная спальня и кладовая, фермы скульптурной крыши оставлены открытыми, а декоративные многослойные балки выступают в жилые помещения.

-10
-11

В центре главной спальни имеется отверстие в полу, обозначающее световой колодец, а над ним гипсокартон использовался для создания рамы, в которой крепится окулус. Пеннелл сказал, что работа не продана, и назвал её в каком-то смысле «дешёвым зданием для фильмов категории B». «В той мере, в какой это было авторское, оперное «тотальное произведение», практически бескомпромиссное во всех мыслимых отношениях, оно представляет собой стремление, идеал — средство, с помощью которого новая эра беззаботных, самодельных YouTube-пользователей, готовых пойти на большие физические усилия, могла бы получить шанс воплотить в жизнь свои иначе нереализуемые творения«, — рассказал Пеннелл.

-12
-13

Название: Дом по адресу Джон Лемли Лейн, 300 (House 300 John Lemley Ln)
Расположение:
Блэксбурга, Вирджиния, США
Архитектура:
Ben Pennell
Строительство:
2024
Площадь:
251 м2
Бюджет:
$515.000
Фото:
Ben Pennell

Посмотрите больше фото и проектную графику.

🖐 Подпишитесь на наш ТГ-канал - новое ежедневно.