Найти в Дзене
Интерьерный блог Rerooms

Друзья, что делать, когда студия маленькая, а полноценную кровать всё-таки хочется

? Формат «спухня», где кровать буквально соседствует с кухонным гарнитуром — одно из самых популярных решений, особенно для квартир под сдачу (да и для себя тоже). Здесь очень важно не просто поставить кровать, а грамотно вписать её в планировку: зонировать пространство, сохранить ощущение уюта и не превратить интерьер в компромисс. Мы собрали несколько интересных решений, которые доказывают: студия с кроватью может быть стильной и удобной. 🟢Дизайн-проект квартиры-студии 28,7 м² 🟢Дизайн-проект квартиры-студии 23,72 м² 🟢Дизайн-проект квартиры-студии 25,95 м²

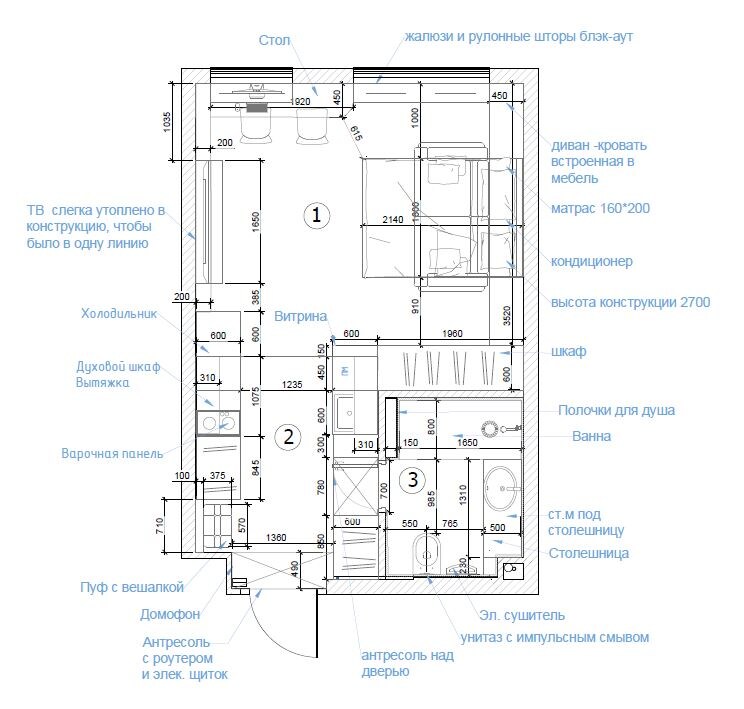
Друзья, что делать, когда студия маленькая, а полноценную кровать всё-таки хочется?

Формат «спухня», где кровать буквально соседствует с кухонным гарнитуром — одно из самых популярных решений, особенно для квартир под сдачу (да и для себя тоже).

Здесь очень важно не просто поставить кровать, а грамотно вписать её в планировку: зонировать пространство, сохранить ощущение уюта и не превратить интерьер в компромисс.

Мы собрали несколько интересных решений, которые доказывают: студия с кроватью может быть стильной и удобной.

🟢Дизайн-проект квартиры-студии 28,7 м²

🟢Дизайн-проект квартиры-студии 23,72 м²

🟢Дизайн-проект квартиры-студии 25,95 м²

-2
-3
-4
-5
-6
-7
-8
-9