Найти в Дзене
mood_for_home

Дизайн квартиры. Евротрешка 70 кв.м

Африканская эстетика на фоне мягкого минимализма.
Этот интерьер воспринимается как маленькое путешествие. Хозяева решили добавить этническое настроение не через привычный декор «из поездок», а через атмосферу и тактильные впечатления. Мягкое освещение подчеркивает природную фактуру дерева, а тонкие линии орнамента, созданного художниками специально для этого проекта, перекликаются с силуэтами

Африканская эстетика на фоне мягкого минимализма.

Этот интерьер воспринимается как маленькое путешествие. Хозяева решили добавить этническое настроение не через привычный декор «из поездок», а через атмосферу и тактильные впечатления. Мягкое освещение подчеркивает природную фактуру дерева, а тонкие линии орнамента, созданного художниками специально для этого проекта, перекликаются с силуэтами трав и мотивами традиционных узоров. Африканские акценты здесь звучат ненавязчиво — скорее как легкий шорох теплого ветра над саванной. Приглашаем заглянуть внутрь.

Место: г. Москва

Объект: евротрешка 70 кв.м

Высота потолков: 3 м

Автор проекта: дизайнер Екатерина Владимирова

Декоратор: Варвара Калицкая

Автор фото: Ольга Мелекесцева

Реализация: 2024 год

«Изначально проект задумывался как инвестиционный — для сдачи в аренду, ориентировочно семейной паре или семье с ребенком, — рассказывает дизайнер. — Но заказчики не хотели безличный интерьер “под арендатора”. Им было важно создать стильное и продуманное пространство для людей, которые ценят комфорт и качественный дизайн даже в съемной квартире».

Запросы заказчиков

  • Практичный интерьер для долгосрочной аренды.
  • Две спальни и две гардеробные.
  • Выразительные детали с отсылками к африканской эстетике.

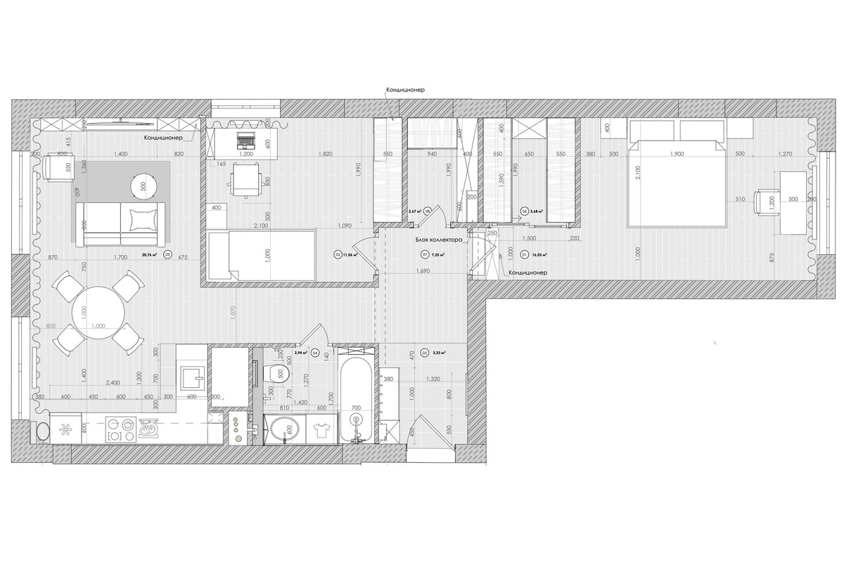
Логика перепланировки

По плану застройщика это была стандартная двухкомнатная квартира. В процессе перепланировки выделили вторую спальню, предусмотрели ниши под две гардеробные, а кухню объединили с гостиной, сделав общее пространство более открытым и удобным.

Планировка
Планировка

Кухня-гостиная

Кухонный гарнитур изготовили на заказ. Комплект техники — базовый и привычный, все в стандартных габаритах: встроенный холодильник, посудомоечная машина, духовой шкаф, варочная панель и вытяжка. Фартук оформили керамогранитом, оттенок которого точно совпадает со столешницей из искусственного камня.

Обратите внимание на деталь: штора аккуратно обходит высокую нишу между холодильником и окном. Внутри предусмотрели удобное хранение для габаритных предметов — например, стремянки или швабры.

-3

Стул Wox Flat S 2023, ясень 007 - 16 590 р.

-4

Стол Beads 700 - 65 990 р

Точеная ножка превращает обычный обеденный стол в настоящий арт-объект.

-5
Стол подошел идеально — удобный и компактный. Выбирали модель с округлыми формами по нескольким причинам. Это модно, гармонично вписывается в стилистику проекта. А еще функционально: обтекаемые формы позволяют комфортно перемещаться по небольшой комнате.

Гостиная

В гостиной акцент сделан на продуманном освещении. Бра ручной работы с необычной росписью становится настоящим арт-объектом и вечером наполняет пространство мягким, теплым светом. Декор поддерживает атмосферу: вазы выразительных форм, книги и ковер из плетеной кожи добавляют интерьеру характер и создают нужное настроение.

«Для этого проекта художники А. Гарасько и В. Озеров создали авторские росписи — своеобразный оммаж африканскому изобразительному искусству, которое стало источником современного примитивизма. Они изучали музейные образцы африканских орнаментов, и к этим рисункам действительно стоит присмотреться: в них спрятаны символы плодородия и удачи, солярные знаки и мотивы кофейных зерен», — отмечает дизайнер.

-6

Журнальный столик ARCH STAND HIGH - 28 875 р.

Диван прямой Арклоу Cozy Ligh - 50 211 р. от divan.ru

-7

Тумба CLARE TV 2 - 94 500 р.

Ковер divan.ru Плюма-Mokko 120x180 - 8 290 р.

Картина Ирины Герасимовой от Reloft Art - 160 000₽

Декор Звено от IZZI DECOR - 53 000₽

-8

Спальни

В квартире предусмотрены две спальни — основная и гостевая. При необходимости вторую комнату легко адаптировать под детскую или кабинет с полноценным рабочим местом.

В более просторной, основной спальне рабочую зону разместили у окна: ее выделили цветом и подчеркнули локальным светом. «Африканские мотивы здесь звучат очень тонко — через авторскую роспись, созданную специально для этого проекта, а также через формы и оттенки декоративных подушек, которые поддерживают общий характер интерьера», — отмечает дизайнер.

-9

Консоль из массива бука - 98 800 р.

-10

Для обеих спален решили сделать кровати на заказ — по индивидуальным размерам под конкретные помещения. В комнате, которую в будущем можно использовать как детскую или кабинет, предусмотрели удобное хранение: вместительный шкаф встроили в нишу, чтобы максимально рационально задействовать пространство. А игривый гобелен с тигром добавляет характер и поддерживает общее настроение интерьера.

-11

ТАФТИНГОВЫЙ КОВЕР SAFARI FERM LIVING, 118Х160, LEOPARD - 32 445 р.

Приставной столик Umbra Bellwood - 23 385 р.

-12

Полка настенная Bergenson Bjorn Shely - 8 900 р.

Письменный стол Лесли Oak от divan.ru - 19 790₽

Зеркало Екатерины Владимировой
Зеркало Екатерины Владимировой

Прихожая

В прихожей разместили зеркало выразительной формы на массивном деревянном основании. Оно объединяет ключевые линии и фактуры интерьера и помогает собрать пространство в цельную композицию. Также у входа удалось организовать отдельную гардеробную комнату.

Бра Tooy
Бра Tooy

Санузел

В этом помещении сделали ставку на выразительные фактуры. Пол оформили керамической плиткой с эффектом натурального камня, а стену с инсталляцией — декоративной влагостойкой штукатуркой с бархатистой, «глиняной» текстурой. Системы хранения предусмотрели сразу в двух зонах: за экраном под ванной и в подвесных шкафах.

Раковина Geberit
Раковина Geberit

-16

✅ Подписывайтесь на наш канал а телеграме: https://t.me/+ECJ6NOinTp5kZDYy еще больше проектов дизайнеров с артикулами

Автор проекта: дизайнер Екатерина Владимирова

Фотограф: Ольга Мелекесцева

Стилист: Варвара Калицкая