Найти в Дзене
DIVAN.RU

Нестандартная однушка 41 кв.м: два яруса, стеклоблоки и продуманные системы хранения

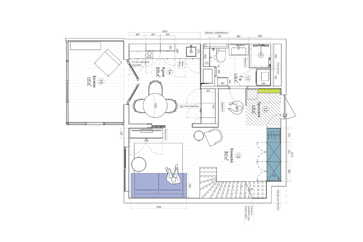
Яркая мебель, парящая лестница и стеклоблоки для зонирования — вот ключевые элементы этого проекта. Заглянем в гости. Объект: первый ярус 37 кв.м + лоджия 8 кв.м, второй ярус 16 кв.м в ЖК «Образцовые кварталы» г. Санкт-Петербург (потолки: 2,2 м на первом ярусе, 2,1 м на втором) Автор проекта и фото: дизайнер Саша Михайлова Бюджет: 4 млн рублей Квартира сдавалась застройщиком без отделки, выделен стенами был только санузел. Дом имеет четыре этажа, а квартира расположена на самом верхнем, мансардном. Первоначальная высота потолка здесь была от 3,2 до 4,8 м. Это дало возможность выстроить второй ярус. Кстати: в квартире вместо радиаторов установлен водяной теплый пол на 37 кв.м с четырьмя терморегуляторами. Кухонный гарнитур двухсекционный: линейный (с укороченным верхним ярусом) и встроенный (на смежной стене). Нижние фасады сиреневые, верхние — белые. Фартук — белая плитка 10 х 10 см с сиреневой затиркой. Техника белая, для ненавязчивости. Деталь: часть стены между кухней и гостиной выл
Оглавление

Яркая мебель, парящая лестница и стеклоблоки для зонирования — вот ключевые элементы этого проекта. Заглянем в гости.

Объект: первый ярус 37 кв.м + лоджия 8 кв.м, второй ярус 16 кв.м в ЖК «Образцовые кварталы» г. Санкт-Петербург (потолки: 2,2 м на первом ярусе, 2,1 м на втором)

Автор проекта и фото: дизайнер Саша Михайлова

Бюджет: 4 млн рублей

Пожелания заказчика

  • Второй ярус со спальней и гардеробной.
  • Максимум мест хранения.
  • Необычная лестница как часть интерьерного решения

Планировочное решение

Квартира сдавалась застройщиком без отделки, выделен стенами был только санузел. Дом имеет четыре этажа, а квартира расположена на самом верхнем, мансардном.

Первоначальная высота потолка здесь была от 3,2 до 4,8 м. Это дало возможность выстроить второй ярус.

Кстати: в квартире вместо радиаторов установлен водяной теплый пол на 37 кв.м с четырьмя терморегуляторами.

Кухня

Кухонный гарнитур двухсекционный: линейный (с укороченным верхним ярусом) и встроенный (на смежной стене). Нижние фасады сиреневые, верхние — белые. Фартук — белая плитка 10 х 10 см с сиреневой затиркой. Техника белая, для ненавязчивости.

Деталь: часть стены между кухней и гостиной выложили стеклоблоками. «Это эффектное зонирование, сохраняющее ощущение простора», — отмечает дизайнер.

Лоджия

Кухня имеет выход на панорамную лоджию. На стенах здесь обои с природным орнаментом, из мебели — металлическая консоль, два мягких кресла и журнальный стол.

Гостиная

Высокие потолки гостиной создают ощущение простора. Центр композиции — мягкий диван Льери от divan.ru, напротив него — яркая тумба Квелен. Интерьер дополняют ковер с ностальгическим мотивом и столик из переработанного пластика.

Диван Льери от divan.ru — проверенное решение в моих проектах. Он просторный и комфортный, а изящные ножки придают особый шарм. Обивка гармонично сочетается с кухнейю Благодаря широкому выбору тканей на divan.ru всегда можно найти подходящий вариант.

➡️Товары бренда divan.ru

Пространство под вторым ярусом используется для хранения вещей. Фокусная точка интерьера — лестница с интегрированной подсветкой, под которой стоит тумба Шелби от бренда divan.ru для дополнительного хранения.

Спальня

«Ограничения по высоте потолка и наклон крыши вынудили нас разместить кровать именно здесь, — поясняет дизайнер. — Розетки были интегрированы в пол с учетом требований безопасности. Для спальни выбрали просторную кровать Амьен от divan.ru с изголовьем из букле. Дополнили интерьер прикроватной тумбой Велари и мягким креслом Тилар».

➡️Товары бренда divan.ru

Санузел

Санузел также служит постирочной: здесь установлены стирально-сушильная машина с хранением, унитаз с инсталляцией и гигиеническим душем, раковина с тумбой и зеркало с подсветкой.

Прихожая

«Зеркальные поверхности визуально приподняли низкий потолок в прихожей. Яркая салатовая обувница на заказ — якорь нашего проекта. Ее неординарность подчеркивает стена из мелких зеркальных квадратов (как у диско-шара), которые разбрасывают блики света», — делится автор проекта.

🔥 Вот это поворот! До 29 января дарим скидку 7% сверху на всё для дома с промокодом WOW7. Обустраивайтесь выгодно с divan.ru >>

-11

============================

Оцените интерьер в комментариях, а если материал понравился — не забудьте поставить лайк👍

🖤divan.ru — не только блог про интерьеры, но и производитель доступной дизайнерской мебели. Ищите новые идеи и переходите на сайт, чтобы воплотить их в жизнь.

*Цены указаны на момент публикации