Добавить в корзинуПозвонить
Найти в Дзене
DIVAN.RU

Минимализм с африканским акцентом: евротрешка 70 кв.м в Москве

Этот интерьер переносит в другое измерение. Игра света на фактуре дерева и тонкие, авторские орнаменты, вдохновленные природой и традициями, создают уникальную атмосферу. Африканские нотки звучат ненавязчиво, как легкое дуновение ветра из саванны. Посмотрим ближе. Объект: евротрешка 70 кв.м, г. Москва (потолки 3 м) Автор проекта: дизайнер Екатерина Владимирова, декоратор Варвара Калицкая, автор фото Ольга Мелекесцева Изначально это была типовая двушка от застройщика. После перепланировки здесь появилась вторая спальня, две гардеробные ниши, а кухня стала единым пространством с гостиной. Кухонная мебель изготовлена на заказ. Набор встроенной техники стандартный: холодильник, посудомойка, духовка, варочная панель, вытяжка. Фартук из керамогранита в цвет столешницы из искусственного камня. Обратите внимание: для хранения высоких предметов, таких как стремянка или швабра, была организована ниша между холодильником и окном, которую аккуратно прикрывает штора. Прием: точеная ножка делает обе
Оглавление

Этот интерьер переносит в другое измерение. Игра света на фактуре дерева и тонкие, авторские орнаменты, вдохновленные природой и традициями, создают уникальную атмосферу. Африканские нотки звучат ненавязчиво, как легкое дуновение ветра из саванны. Посмотрим ближе.

Объект: евротрешка 70 кв.м, г. Москва (потолки 3 м)

Автор проекта: дизайнер Екатерина Владимирова, декоратор Варвара Калицкая, автор фото Ольга Мелекесцева

Пожелания заказчиков

  • Спроектировать две спальные зоны и две полноценные гардеробные.
  • Интегрировать элементы африканского стиля в интерьер.

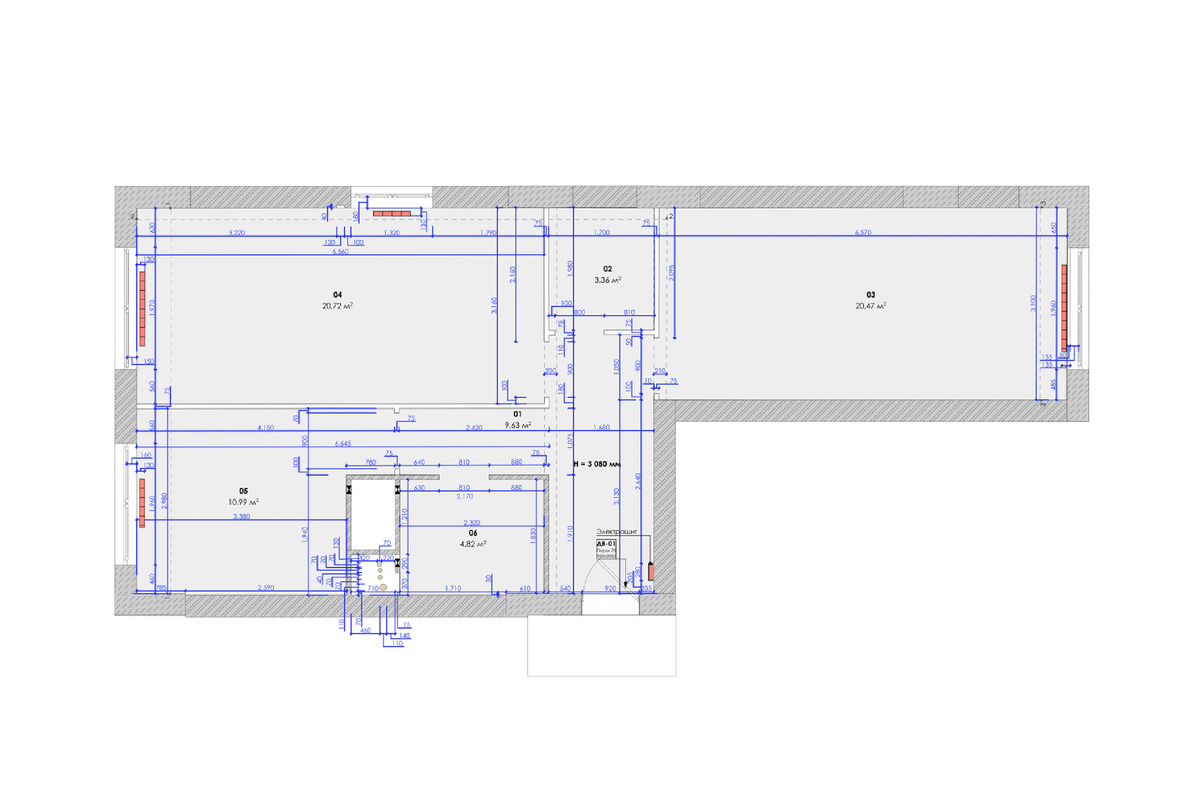
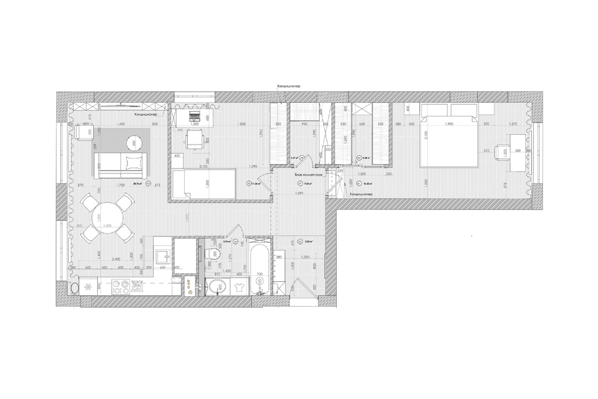
Планировочное решение

Изначально это была типовая двушка от застройщика. После перепланировки здесь появилась вторая спальня, две гардеробные ниши, а кухня стала единым пространством с гостиной.

Кухня-гостиная

Кухонная мебель изготовлена на заказ. Набор встроенной техники стандартный: холодильник, посудомойка, духовка, варочная панель, вытяжка. Фартук из керамогранита в цвет столешницы из искусственного камня.

Обратите внимание: для хранения высоких предметов, таких как стремянка или швабра, была организована ниша между холодильником и окном, которую аккуратно прикрывает штора.

Прием: точеная ножка делает обеденный стол не просто мебелью, а настоящим арт-объектом.

Диван Арклоу от divan.ru — отличный выбор, он удобен и занимает мало места. Я остановилась на варианте с плавными линиями из-за актуального тренда и соответствия общей концепции. К тому же, такая форма практична: отсутствие острых углов облегчает передвижение в ограниченном пространстве.

➡️Товары бренда divan.ru

Освещение — ключевой элемент интерьера гостиной. Вечером бра ручной работы с уникальной росписью функционирует как арт-объект, создавая теплую, уютную атмосферу. Вазы нестандартных форм, книги и ковер из плетеной кожи — детали, которые придают интерьеру индивидуальность.

«Художники А. Гарасько и В. Озеров разработали для проекта уникальные росписи. Это оммаж африканскому искусству, истоку примитивизма. Изучив музейные образцы, художники включили в рисунки символы плодородия, удачи, солярные знаки и кофейные зерна», — делится дизайнер.

Спальни

Квартира имеет две спальни: главную и гостевую. Последняя легко трансформируется в детскую или кабинет с полноценным рабочим местом.

В основной спальне у окна обустроили рабочее место, выделив его цветом и локальным освещением. «Африканские мотивы в спальне реализованы деликатно: через авторскую роспись и декоративные подушки, которые гармонируют по форме и цвету», — отмечает дизайнер.

Для каждой спальни изготовлены кровати на заказ. В комнате с потенциалом трансформации в детскую или кабинет организована зона хранения со встроенным шкафом. Общую стилистику интерьера дополняет оригинальный гобелен с изображением тигра.

➡️Товары бренда divan.ru

Прихожая

В прихожей висит зеркало оригинальной формы на массивном деревянном основании. Оно служит связующим звеном между разными элементами интерьера, объединяя их в единую концепцию. На входе в квартиру есть отдельная гардеробная.

Обратите внимание: дверь в гардеробную скрытого монтажа замаскировали рисунком. Нарисованные арки «смягчили» прямоугольные границы.

Санузел

В санузле задействовали несколько фактур: керамическая плитка под камень на полу и влагостойкая штукатурка под бархатистую глину на стене с инсталляцией. Хранение организовано под ванной и в подвесных шкафах.

🔥 Вот это поворот! До 29 января дарим скидку 7% сверху на всё для дома с промокодом WOW7. Обустраивайтесь выгодно с divan.ru >>

-9

============================

Оцените статью в комментариях, а если материал понравился — не забудьте поставить лайк👍

🖤divan.ru — не только блог про интерьеры, но и производитель доступной дизайнерской мебели. Ищите новые идеи и переходите на сайт, чтобы воплотить их в жизнь.

*Цены указаны на момент публикации