Добавить в корзинуПозвонить
Найти в Дзене

CALM PROJECT — изнутри

Планировка выполнена в форме буквы L: приватная зона с тремя спальнями собрана в одном крыле, а кухня-гостиная и общие пространства раскрываются в сторону террасы. Такое решение позволяет изолировать личные комнаты и одновременно обеспечить простор для жизни и отдыха на природе. Проект: #calm_archdepo

CALM PROJECT — изнутри

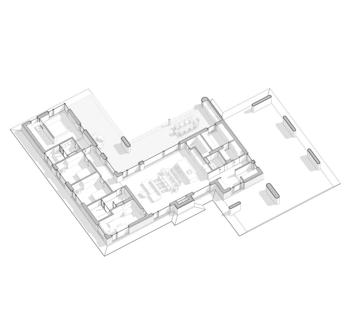
Планировка выполнена в форме буквы L: приватная зона с тремя спальнями собрана в одном крыле, а кухня-гостиная и общие пространства раскрываются в сторону террасы.

Такое решение позволяет изолировать личные комнаты и одновременно обеспечить простор для жизни и отдыха на природе.

Проект: #calm_archdepo

-2