Добавить в корзинуПозвонить
Найти в Дзене

Как реализовать дизайн-проект без переделок: разбор реального ремонта квартиры

Многие сталкиваются с ситуацией, когда дизайн-проект выглядит убедительно, но в процессе ремонта интерьер начинают упрощать, переделывать или менять «по месту».
В результате финальный результат заметно отличается от задуманного.
В этом материале разбираем реализацию дизайн-проекта квартиры на реальном объекте и показываем, за счёт чего удалось обойтись без переделок — от планировки до финальных

Реализация дизайн-проекта без переделок: реальный ремонт квартиры
Реализация дизайн-проекта без переделок: реальный ремонт квартиры

Многие сталкиваются с ситуацией, когда дизайн-проект выглядит убедительно, но в процессе ремонта интерьер начинают упрощать, переделывать или менять «по месту».

В результате финальный результат заметно отличается от задуманного.

В этом материале разбираем реализацию дизайн-проекта квартиры на реальном объекте и показываем, за счёт чего удалось обойтись без переделок — от планировки до финальных деталей.

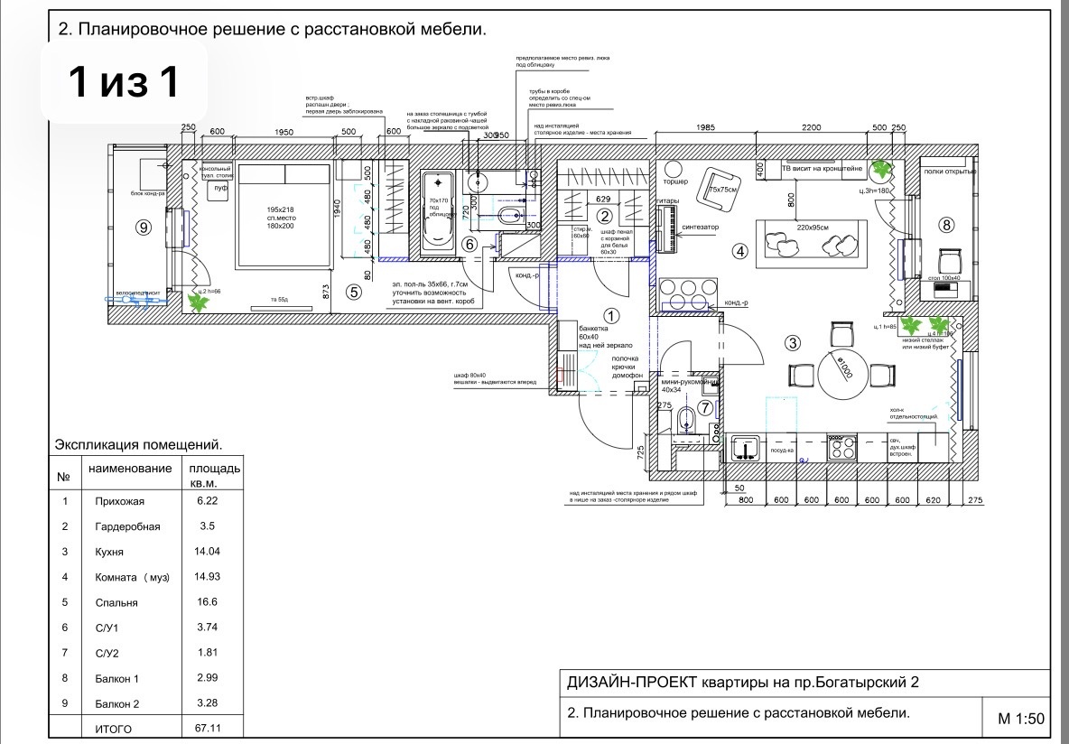
Реализация дизайн-проекта: с чего начинается результат ремонта

Любая успешная реализация начинается не на стройке, а на этапе проектирования.

В этом проекте заранее были зафиксированы:

• планировка с точными размерами

• расположение мебели и проходов

• сценарии освещения

• инженерные решения

• узлы сложных элементов

Это позволило строителям работать по проекту, а не принимать решения «по привычке».

Планировка квартиры: почему пространство выглядит цельным

На фото кухни-гостиной видно:

• удобные проходы

• правильные пропорции

• логичное зонирование

• отсутствие визуальной перегруженности

Такой результат достигается за счёт:

• точных привязок мебели

• заранее рассчитанных расстояний

• учёта дверей, проёмов и инженерии

Если планировка не проработана детально, пространство почти всегда выглядит случайным — даже при хорошем ремонте.

Пропорции и проходы выглядят логично, потому что были рассчитаны ещё на этапе проектирования
Пропорции и проходы выглядят логично, потому что были рассчитаны ещё на этапе проектирования

Кухня реализована строго по проекту — без изменений размеров и упрощений на объекте
Кухня реализована строго по проекту — без изменений размеров и упрощений на объекте

Освещение в квартире: как избежать переделок на объекте

Освещение — одна из самых частых причин переделок при ремонте квартиры.

В этом проекте были заранее разработаны:

• план светильников

• план выключателей

• сценарии освещения для разных зон

На реализации это даёт:

• отсутствие тёмных участков

• комфортный свет для жизни

• совпадение визуального эффекта с проектом

Когда свет «добирают по факту», без переделок обойтись почти невозможно.

-4

Освещение не добиралось по факту — все сценарии были заложены в проекте
Освещение не добиралось по факту — все сценарии были заложены в проекте

Отделка стен и акценты: как сохранить идею дизайн-проекта

В проекте использованы:

• акцентная кирпичная стена

• тёмные оттенки

• декоративные панели

На реализации видно, что:

• акценты не конфликтуют между собой

• пропорции сохранены

• примыкания выполнены аккуратно

Это результат разверток стен и узлов, а не удачной импровизации на объекте.

Акцентные решения работают, когда их пропорции и примыкания заданы в чертежах
Акцентные решения работают, когда их пропорции и примыкания заданы в чертежах

Реализация спальни по дизайн-проекту: точность важнее эффектов

Спальня выглядит спокойно и гармонично за счёт:

• точной высоты изголовья

• симметричного расположения бра

• мягкого сценарного освещения

Такие детали невозможно «поймать на глаз».

Они всегда закладываются в проект и фиксируются в чертежах.

Спальня выглядит спокойно и цельно благодаря точным размерам и привязкам мебели
Спальня выглядит спокойно и цельно благодаря точным размерам и привязкам мебели

Коридор и подсветка: детали, которые часто упрощают

Подсветка плинтуса и проходных зон:

• визуально расширяет пространство

• создаёт глубину

• работает как ночной сценарий

На практике такие решения часто убирают, потому что:

• не заложена электрика

• нет понимания узлов

В этом проекте подсветка была предусмотрена сразу, поэтому реализовалась без сложностей.

Даже проходные зоны выглядят продуманно, когда они заложены в проекте
Даже проходные зоны выглядят продуманно, когда они заложены в проекте
Подсветка реализовалась без сложностей, потому что была предусмотрена на этапе проекта
Подсветка реализовалась без сложностей, потому что была предусмотрена на этапе проекта

Санузел по дизайн-проекту: где чертежи решают всё

Санузел — самое сложное помещение в реализации.

На фото видно:

• раковину с точной посадкой

• смеситель по оси

• совпадение мебели и зеркала

• логичное расположение розеток

Это результат:

• детальных размеров

• привязок сантехники

• заранее запроектированной мебели

Без этих данных санузел почти всегда приходится переделывать.

Посадка раковины, ось смесителя и мебель совпадают благодаря точным размерам
Посадка раковины, ось смесителя и мебель совпадают благодаря точным размерам

-11

Почему этот ремонт обошёлся без переделок

Этот интерьер получился таким не потому, что:

• «повезло со строителями»

• «всё решили на объекте»

А потому что:

• дизайн-проект был проработан до деталей

• чертежи задавали правила

• решения принимались до начала ремонта

Визуализации задали образ.

А рабочая документация сделала его реальностью.

Вывод: как реализовать дизайн-проект без переделок

Если вы планируете ремонт квартиры и хотите:

• предсказуемый результат

• соответствие проекту

• контроль бюджета и сроков

начинать стоит с грамотного дизайн-проекта, по которому действительно можно строить.

Мы всегда готовы показать реальные проекты и рассказать, из чего складывается рабочая документация и как она влияет на результат ремонта