Найти в Дзене
Всё о недвижимости

Квартира-евротрешка: планировка, дизайн и обустройство

Последние несколько лет особую популярность на рынке недвижимости набирают квартиры-евротрешки. Они подходят для семьи из 3-4 человек, где у каждого есть свое личное пространство. Что такое евротрешка, как выглядит планировка евротрешки с кухней-гостиной, какие у нее есть плюсы и минусы, а также как обустроить интерьер евротрешки, разбираемся в статье с дизайнером интерьера. Евротрешка – это квартира с двумя изолированными спальнями и большой кухней, которая объединена с гостиной. Также в ней может быть балкон или лоджия, 2 санузла (либо один большой), постирочная, кладовка или гардеробная. В квартире-евротрешке создается единое функциональное пространство, подходящее для жизни семьи с детьми. Основное отличие евротрешки от трехкомнатной квартиры и евродвушки состоит в количестве комнат. Как мы уже написали выше, в евротрешке две комнаты и кухня-гостиная. В обычной трешке есть три изолированные комнаты и кухня, но она размером меньше, чем кухня-гостиная в евротрешке. Евродвушка похожа
Оглавление

Последние несколько лет особую популярность на рынке недвижимости набирают квартиры-евротрешки. Они подходят для семьи из 3-4 человек, где у каждого есть свое личное пространство. Что такое евротрешка, как выглядит планировка евротрешки с кухней-гостиной, какие у нее есть плюсы и минусы, а также как обустроить интерьер евротрешки, разбираемся в статье с дизайнером интерьера.

Что такое евротрешка?

Евротрешка – это квартира с двумя изолированными спальнями и большой кухней, которая объединена с гостиной. Также в ней может быть балкон или лоджия, 2 санузла (либо один большой), постирочная, кладовка или гардеробная. В квартире-евротрешке создается единое функциональное пространство, подходящее для жизни семьи с детьми.

Отличие от обычной трешки и евродвушки

Основное отличие евротрешки от трехкомнатной квартиры и евродвушки состоит в количестве комнат. Как мы уже написали выше, в евротрешке две комнаты и кухня-гостиная. В обычной трешке есть три изолированные комнаты и кухня, но она размером меньше, чем кухня-гостиная в евротрешке.

Евродвушка похожа планировкой на евротрешку. В ней тоже есть большая кухня-гостиная, но изолированная комната в такой квартире только одна.

Как выглядит планировка евротрешки?

Дизайнер интерьеров и руководитель студии дизайна интерьеров «АртМоне» Светлана Шатская выделила общую логику планировки евротрешки:

  1. Общая зона – кухня‑гостиная, в которой максимум площади и света, минимум коридоров.
  2. Две отдельные комнаты: спальня родителей и детская.
  3. Хранение и постирочная – в «глухих» местах (коридор, ниши, санузел, балкон, теневые зоны комнат), а не в жилых метрах.
  4. Разделение дневной (кухня‑гостиная, рабочие места) и ночной (спальни) частей квартиры.

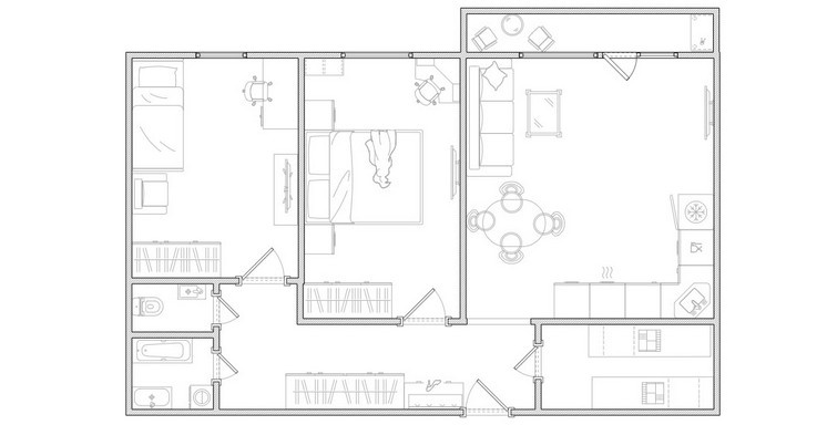
На картинке наглядно представили, как выглядит евротрешка.

Планировка квартиры евротрешка
Планировка квартиры евротрешка

Дизайн квартиры-евротрешки: интерьер и зонирование

Для комфортной жизни евротрешку, как и любую другую квартиру, нужно правильно обустроить. Важно заранее продумать в евротрешке дизайн интерьера с кухней-гостиной.

Идеи для кухни-гостиной

Светлана Шатская рекомендует в кухне-гостиной выделить отдельно зону кухни и зону отдыха и приема гостей.

«Оптимально Г‑образная или линейная кухня, а также остров или полуостров, которые разделяют кухонную зону и гостиную в евротрешке. Функции острова – дополнительная рабочая поверхность, посадочные места. Также на острове можно разместить варочную поверхность или мойку, если продумать вытяжку и подводы. Холодильник, мойку, плиту стоит размещать в одном треугольнике, без лишних переходов. Верхние шкафы на кухне лучше делать до потолка, антресоли задействуем под редко используемые вещи», – советует эксперт.

В гостиной зоне из обязательных предметов мебели для семьи – диван, ТВ-зона и обеденный стол либо журнальный столик, если обеды проходят за островом/полуостровом.

-3
«Диван можно разместить спинкой к кухне, так получится естественная граница зон. Если диван раскладной диван, то это еще и резервное спальное место. ТВ‑зону стоит сделать с тумбой и навесными шкафами, чтобы было организовано дополнительно хранение (игрушки, игры, техника). Обеденный стол можно сделать раскладным и разместить у окна или стены. При очень маленькой площади – основной обед можно организовать за полуостровом», – делится дизайнер.

Спальни и рабочие зоны

В каждой спальне в евротрешке важно выделить зону для сна и рабочую зону. При необходимости в родительской спальне можно даже сделать мини-кабинет, если позволяет площадь. Также нельзя забывать про места под хранение.

«Для спальни родителей подойдет кровать 160-180 см, изголовьем ее надо расположить к глухой стене и оставить проходы минимум 60-70 см. Встроенный шкаф до потолка вдоль одной стены или мини-гардеробная глубиной от 90 см позволят комфортно разместить все вещи», – говорит эксперт.
-4

В рабочей зоне родительской спальни можно поставить узкий стол или консоль у окна либо вместо одной прикроватной тумбы. Для книг или рабочих принадлежностей лучше выбирать закрываемые полки или шкафчик над столом, чтобы не было «офиса на виду».

Интерьер детской в евротрешке должен подходить под несколько задач: сон, учеба, игры и хранение.

«Спальную зону в детской стоит расположить в углу, а учебную – у окна. Стол для учебы должен быть около 120-160 см. Игровая зона может быть в центре на ковре. На полу должно быть минимум мебели», – рекомендует дизайнер.

Для одного ребенка в комнате из мебели нужны обычная кровать 80-110 см, стол и шкаф. Для двух детей можно выбрать двухъярусную кровать или две обычные кровати вдоль разных стен.

«Мы дважды реализовывали идею постановки кроватей под 90 градусов с тумбой между ними. Для учебы – длинный общий стол вдоль окна или два отдельных стола по бокам от окна напротив друг друга. Для хранения – высокий шкаф для одежды, низкие модули/ящики для игрушек (можно интегрировать в шкаф), полки над столом для книг и тумбы под столом для тетрадей», – рассказывает Светлана Шатская.
-5

Цветовые решения и стили

Выбор цветовой гаммы для ремонта квартиры евротрешка определяется особенностью планировки – наличием просторной кухни-гостиной и двух отдельных комнат. Для общего пространства оптимальны светлые нейтральные тона: бежевый, светло-серый, молочный. Они визуально расширяют помещение. Акцентные цвета – глубокий синий, терракотовый, оливковый – используются дозированно в текстиле и декоре.

Спальни допускают более смелые решения. Приглушенные темные оттенки создают камерную атмосферу и подходят для родительской спальни. Пастельные тона в детской способствуют расслаблению.

Среди стилей для евротрешек особенно популярны скандинавский, современный минимализм и неоклассика. Для семей с детьми подходит экостиль с природными оттенками и безопасными материалами.

Практическое обустройство евротрешки

Дизайн квартиры евротрешка и грамотное обустройство каждой комнаты требует продуманного подхода к организации пространства. Главная задача – сделать квартиру функциональной и комфортной для отдыха и уединения. При планировании важно учитывать потребности всех членов семьи и предусмотреть достаточно мест для хранения вещей.

Мебель и системы хранения

Для кухни-гостиной можно выбрать модульную мебель, которая легко трансформируется под разные цели. К примеру, раскладной диван для гостей, барная стойка со встроенными полками, остров с обеденной и рабочей зонами. Кухонный гарнитур лучше заказать до потолка – верхние шкафы вместят редко используемую посуду и технику.

В спальнях оптимальны встроенные шкафы-купе и вертикальные системы хранения, которые экономят площадь для игровой зоны и зоны отдыха.

В прихожей стоит использовать пространство по максимуму: антресоли, узкие обувницы, настенные крючки и органайзеры. Ниши и углы можно превратить в полезные места хранения с помощью встроенных стеллажей.

«Идеально, если в евротрешке есть маленькая гардеробная 2-4 м² у входа или рядом со спальней. В ней можно расположить штанги на двух уровнях, выдвижные ящики, полки под обувь. Если гардеробной нет, то подойдет встроенный шкаф‑купе вдоль коридора до потолка, шкафы в нишах и антресоли над дверями», – отмечает дизайнер интерьера.
-6

Освещение и функциональные зоны

Правильное освещение помогает наглядно разделить открытое пространство кухни-гостиной на функциональные зоны. Над обеденным столом разместите подвесные светильники, в зоне отдыха – торшер или бра, на кухне – яркую подсветку рабочей поверхности и общий потолочный свет.

В спальнях предусмотрите многоуровневое освещение: основной потолочный светильник, прикроватные лампы для чтения, локальное освещение рабочей зоны.

«В спальне должны быть общий свет, приглушенный, индивидуальный (бра, подвесы, настольные лампы у кровати) и локальный свет у стола», – дополняет эксперт.

Зонировать евротрешку можно не только освещением. Здесь на помощь приходят разные напольные покрытия, мобильные перегородки (ширмы или шторы), ковры и стеллажи.

Плюсы и минусы евротрешки

Планировка евротрешки с кухней-гостиной подходит многим семьям, но имеет свои особенности. Перед покупкой взвесьте все преимущества и недостатки такой квартиры.

Плюсы евротрешки:

  • Современная планировка с рациональным использованием площади.
  • Стоимость евротрешки ниже, чем у классической трехкомнатной квартиры.
  • Удобное пространство для приема гостей и семейных мероприятий.
  • При грамотном обустройстве и ремонте квартиры евротрешка для каждого члена семьи есть личное пространство.
  • Гибкость в зонировании и расстановке мебели.

Минусы евротрешки:

  • Запахи от приготовления пищи распространяются по всей гостиной.
  • Меньше приватности – две изолированные комнаты вместо трех. Возможно, для двоих детей нужны отдельные спальни.
  • Ограниченные возможности для перепланировки в будущем.

Если вы ищите квартиру для покупки, переходите в сервис «Акварто». На одном сайте собраны все объявления с крупнейших площадок.

Поиск квартиры
Поиск квартиры

Регистрируйтесь в сервисе, сохраняйте поиск с заданными фильтрами и включайте уведомления. Так вы будете получать подборку новых подходящих предложений и не упустите выгодный вариант.

Сервис по поиску квартиры
Сервис по поиску квартиры

Когда стоит выбрать евротрешку: главное

  1. Евротрешка – это квартира с большой кухней-гостиной и двумя отдельными комнатами.
  2. Квартира евротрешка оптимальна для семей с одним или двумя детьми. Также она подходит для пар, которые работают из дома, – в евротрешке им можно организовать спальню, кабинет и зону отдыха в кухне-гостиной.
  3. Для семей с двумя и более детьми, где важна приватность каждого члена, лучше рассмотреть классическую планировку трехкомнатной квартиры.

Автор: Юлия Лукоянова

Источник: https://clck.ru/3RQvzj