Добавить в корзинуПозвонить
Найти в Дзене

Проект "Эверест" 120 м2 одноэтажного дома из керамоблока и со "вторым" светом в центре

Клиенты с опытом жизни в доме заказали проект дома для сына. И да, здесь нет общей площади в 500 м2, а разумные - 120. И при этом нет ощущения, что чего-то не хватает. Изюминкой тут будет "второй" свет в зоне гостиной. Мебель расставили, всё вмещается. Даже мастер-спальня есть. Наружная отделка планируется облицовочным материалом под камень и кирпич по кладке из 44 керамоблока. Поймали баланс между уклоном крыши, высотой этажа и границей навеса на террасе. Элементы диагональных ног отсутствуют - что положительно скажется на отходах покрытия и простоте реализации. Также наши готовые проекты представлены на Озон и ВБ. Ссылка в комментариях.
3D Визуализация №1
3D Визуализация №1

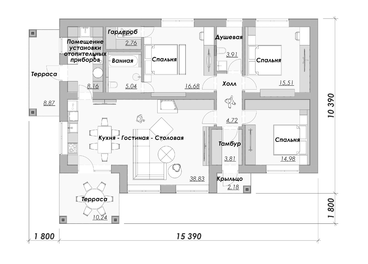
Клиенты с опытом жизни в доме заказали проект дома для сына.

И да, здесь нет общей площади в 500 м2, а разумные - 120.

И при этом нет ощущения, что чего-то не хватает.

Изюминкой тут будет "второй" свет в зоне гостиной.

Планировка
Планировка

Мебель расставили, всё вмещается. Даже мастер-спальня есть.

Наружная отделка планируется облицовочным материалом под камень и кирпич по кладке из 44 керамоблока.

Поймали баланс между уклоном крыши, высотой этажа и границей навеса на террасе.

Элементы диагональных ног отсутствуют - что положительно скажется на отходах покрытия и простоте реализации.

Также наши готовые проекты представлены на Озон и ВБ. Ссылка в комментариях.