Найти в Дзене
СтройДизайн

Квартира площадью 71,27 м² по адресу Льва Толстого, 15

12-этажный кирпичный дом. В нём наш объект — 3-комнатная квартира для перепланировки и переустройства ➡️ Мы прошли полный путь проектирования — от исходной планировки — детального альбома рабочих чертежей и до реализации 😊 В проекте была выполнена перепланировка: перераспределены помещения, выстроена логичная связь между жилыми зонами, санузлами и местами хранения Основной задачей было повысить функциональность квартиры без потери полезной площади и с учётом инженерных ограничений старого фонда Мы разработали: 👍планировочное решение с расстановкой мебели и оборудования 👍 полный пакет рабочих чертежей и визуализаций 👍 планы электрики, освещения и слаботочных систем 👍 схемы монтажных и демонтажных работ Это пример проекта, где дизайн не картинка, а продуманная система, по которой квартира точно может быть реализована так, как задумано 🔝

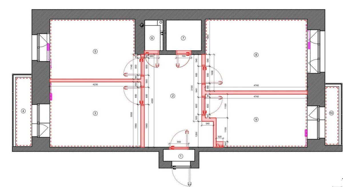
Квартира площадью 71,27 м² по адресу Льва Толстого, 15

12-этажный кирпичный дом. В нём наш объект — 3-комнатная квартира для перепланировки и переустройства

➡️ Мы прошли полный путь проектирования — от исходной планировки — детального альбома рабочих чертежей и до реализации

😊 В проекте была выполнена перепланировка: перераспределены помещения, выстроена логичная связь между жилыми зонами, санузлами и местами хранения

Основной задачей было повысить функциональность квартиры без потери полезной площади и с учётом инженерных ограничений старого фонда

Мы разработали:

👍планировочное решение с расстановкой мебели и оборудования

👍 полный пакет рабочих чертежей и визуализаций

👍 планы электрики, освещения и слаботочных систем

👍 схемы монтажных и демонтажных работ

Это пример проекта, где дизайн не картинка, а продуманная система, по которой квартира точно может быть реализована так, как задумано 🔝

-2
-3
-4
-5
-6
-7
-8
-9