Добавить в корзинуПозвонить
Найти в Дзене
Лира сервис

Расчёт софитной площадки в здании дома культуры

Расчётная модель софитной площадки строится на основании архитектурных решений (раздел АР), а также раздела «Технологические решения» (ТХ), в котором выполнена расстановка специального технологического оборудования. Цель расчёта – подобрать сечения несущих конструкций площадки. Софитная площадка предназначена для размещения в ней осветительного оборудования. Такие площадки располагаются рядом со зрительным залом. Расположение софитных площадок показано на плане здания: Ограждение площадки для софитов выполняется из ГВЛ по металлическому каркасу серия 1.231.9-10.8 высотой до 3.3 м по типу ПГВМ-2 с переделом огнестойкости 1.25 часа (таблица на листе 3 серии 1.231.0-10.8.0.0 ПЗ). Расход материалов на 1 м.2 перегородки – см. таблицу на листе 3 серия 1.231.9-10.8-0.0 ПЗ. Расстановка осветительного оборудования принимается в соответствии с разделом ТХ. Несущая конструкция софитной площадки выполнена из стальных консольных балок, тип сечения – швеллер. По периметру площадки расположены обвязо
Оглавление

Исходные данные

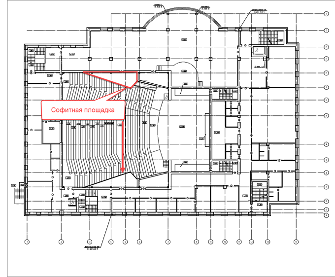
Расчётная модель софитной площадки строится на основании архитектурных решений (раздел АР), а также раздела «Технологические решения» (ТХ), в котором выполнена расстановка специального технологического оборудования. Цель расчёта – подобрать сечения несущих конструкций площадки.

Архитектурные решения

Софитная площадка предназначена для размещения в ней осветительного оборудования. Такие площадки располагаются рядом со зрительным залом. Расположение софитных площадок показано на плане здания:

План дома культуры с указанием местоположения софитных площадок
План дома культуры с указанием местоположения софитных площадок

Ограждение площадки для софитов выполняется из ГВЛ по металлическому каркасу серия 1.231.9-10.8 высотой до 3.3 м по типу ПГВМ-2 с переделом огнестойкости 1.25 часа (таблица на листе 3 серии 1.231.0-10.8.0.0 ПЗ). Расход материалов на 1 м.2 перегородки – см. таблицу на листе 3 серия 1.231.9-10.8-0.0 ПЗ.

Технологические решения

Расстановка осветительного оборудования принимается в соответствии с разделом ТХ.

Конструктивные решения

Несущая конструкция софитной площадки выполнена из стальных консольных балок, тип сечения – швеллер. По периметру площадки расположены обвязочные балки из стальных уголков. Поверх несущих конструкций уложен дощатый настил.

Общий вид модели софитной площадки
Общий вид модели софитной площадки
Общий вид модели с учётом рамы для расстановки оборудования
Общий вид модели с учётом рамы для расстановки оборудования

Консольные балки опираются на кирпичную стену. Кладка стены, в месте опирания консоли, должна быть рассчитана на местное сжатие (смятие).

Моделирование несущих конструкций

Консольные и обвязочные балки моделируются при помощи соответствующих команд (балка стальная), в расчётную модель, также, включается рама для осветительного оборудования. Дощатый настил моделируется при помощи команды «плита», с интерпретацией «посредник для нагрузок»:

Моделирование дощатого настила
Моделирование дощатого настила

Материал плиты – древесина хвойных пород из библиотеки САПФИР. Такое решение позволит автоматизировать сбор нагрузок на балки. Толщина дощатого настила должна быть определена отдельным расчётом.

Сбор нагрузок

На софитную площадку будут действовать следующие нагрузки:

Список загружений
Список загружений

Собственный вес несущих конструкций учитывается программой автоматически.

Вес деревянного настила.

Для приложения веса деревянного настила используется команда «нагрузка-штамп»:

Приложение нагрузки-штамп на плиту-посредник
Приложение нагрузки-штамп на плиту-посредник

Нагрузка прикладывается к плите, в свойствах нагрузки следует указать, что она прикладывается через посредники. Интенсивность нагрузки может быть определена путём деления массы плиты на её площадь, эти параметры можно посмотреть в свойствах плиты-посредника.

Определение распределённого веса дощатого настила
Определение распределённого веса дощатого настила

Контур нагрузки должен совпадать с контуром плиты.

Вес ограждения

Вес ограждающих конструкций определяем по серии 1.231.9-10.8 тип перегородки ПГВМ-2:

Определение веса гипсокартонной перегородки
Определение веса гипсокартонной перегородки

Вес 1м2 перегородки ПГВМ2 составляет 50.4 кг, при высоте перегородки 3.2 м, её погонный вес составит 50.4*3.2=161.6 кг/м.

Нагрузка от веса перегородок
Нагрузка от веса перегородок

Распределённую нагрузку следует приложить к обвязочным балкам. Также, в загружении «Вес ограждения» учитывается вес огнезащиты балок площадки, состоящей из двух слоёв гипсокартона – 0.026 тс/м2. Нагрузка - распределённая по площади, способ приложения – через посредники.

Вес оборудования

В соответствии с разделом ТХ, осветительное оборудование располагается следующим образом:

Расстановка оборудования на выносном софите
Расстановка оборудования на выносном софите

Суммарный вес оборудования составит 22*1+4.54*1+3.2*6+4.5*4=63.74кг. Данную нагрузку допустимо учесть путём приложения её к нижним концам стоек, с коэффициентом надёжности Yf=1.05, в соответствии с таблицей 8.2 СП 20.13330.2016. Нагрузка в основании стойки составит 63.74/2=31.87 кг. В расчётной модели софитной площадки следует включить раму для подвески оборудования, сечения элементов рамы следует принимать в соответствии с разделом ТХ, при необходимости проверив их прочность и жёсткость отдельным расчётом.

Полезные нагрузки

Полезную нагрузку в помещении софитной площадки определяем по таблице 8.3 СП 20.13330.2016, п.11 – участки обслуживания и ремонта оборудования в производственных помещениях – 0.15 тс/м2. Полезная нагрузка в чердачном помещении определяется по таблице 8.3, п.8 – 0.07 тс/м2. Нагрузки - распределённые по площади, способ приложения – через посредники.

Дополнительные настройки расчётной модели

Настройки для сбора нагрузок

Как уже сообщалось ранее, распределённые по площади нагрузки будут прикладываться к балкам через посредники. Чтобы нагрузка от посредников прикладывалась только к консольным балкам, следует отредактировать настройки обвязочных балок следующим образом:

Корректировка свойств обвязочных балок
Корректировка свойств обвязочных балок

Коэффициенты восприятия вертикальных и горизонтальных нагрузок устанавливаем равными 0, для консолей эти параметры следует оставить по умолчанию – равными 1.

Характеристики для расчёта стальных конструкций

Балкам будут назначены следующие дополнительные характеристики:

Группа стальных конструкций 3, принятая марка стали С245;

Тип Элемента – балка. Расчёт на изгибные усилия (My, Mz, Qy, Qz, Mw);

Коэффициенты условий работы и надёжности:

Yc устойчивости = 1;

Yc прочности = 1 Таблица 1 СП 16.13330.2017 примечание 5 В случаях, не оговорённых в настоящей таблице, в формулах следует принимать Yc=1;

Данные для расчёта на прогиб:

Предельно допустимый прогиб устанавливается исходя из эстетико-психологических требований по таблице Д.1 СП 20.13330.2016. Максимальная длина консоли составляет 3350 мм, с учётом глубины заделки в стену, исходя из этого вычисляем предельно допустимый прогиб линейной интерполяцией между величинами 3 м – 1/150 и 6 м – 1/200. Для L=3.35 предельный прогиб равен 1/156;

Данные для расчёта на общую устойчивость, K,b=1. Принимаем как коэффициент к длине, равный 1, т.к. нижний пояс консоли, который является сжатым, не имеет раскреплений. В настройках устанавливаем параметр «Балка с одной осью симметрии», нагрузка прикладывается к верхнему поясу.

Диалоговое окно задания дополнительных характеристик.
Диалоговое окно задания дополнительных характеристик.

Марка стали балок задаётся на этапе выбора сечения:

Задание сечения балки софитной площадки
Задание сечения балки софитной площадки

Несущими конструкциями софитной площадки являются консольные балки, поэтому дополнительные характеристики и материалы будем задавать только для них. Сечения оставшихся элементов (обвязочных балок и рамы для осветительного оборудования) подбираются конструктивно.

Расчёт модели в ПК ЛИРА САПФИР

Создание расчётной модели в САПФИР и её доработка

Выполним создание расчётной модели в САПФИР:

Диалоговое окно создания расчётной модели
Диалоговое окно создания расчётной модели

В диалоговом окне создания расчётной модели следует поставить флажок «Распределить нагрузки на стержни через посредники». После нажатия кнопки «ОК» программа САПФИР вызовет окно расчётного процессора, после чего будет создана сама расчётная модель:

Общий вид расчётной модели в САПФИР
Общий вид расчётной модели в САПФИР

В расчётную модель следует внести дополнительные корректировки: нужно удалить связи по низу колонн (стоек софитной рамы), которые программа установила автоматически, если для создания стоек использовалась команда «Колонна»:

Удаление связей по низу стоек
Удаление связей по низу стоек

После корректировки можно экспортировать модель в Визор.

Расчёт модели в Лире

В открывшейся расчётной модели выведем на экран мозаику конструктивных элементов, дабы убедиться, что они были созданы автоматически:

Мозаика назначенных конструктивных элементов. Условно показаны только несущие балки
Мозаика назначенных конструктивных элементов. Условно показаны только несущие балки

Также следует убедится, что из САПФИРа в Лиру перешли все исходные данные для расчёта: нагрузки, связи, комбинации нагрузок (РСН), материалы для расчёта стальных конструкций. Убедившись, что все исходные данные перенесены правильно, выполняем полный расчёт. По завершении расчёта выведем на экран мозаику перемещения узлов по оси Z от комбинации всех нагрузок:

Мозаика перемещений по Z(G)
Мозаика перемещений по Z(G)

Убедившись в правильности деформационной картины (деформации конструкций происходят в направлении действия нагрузок), переходим к анализу результатов расчёта стальных конструкций:

Мозаика результатов проверки назначенных сечений по 1 предельному состоянию
Мозаика результатов проверки назначенных сечений по 1 предельному состоянию
Мозаика результатов проверки назначенных сечений по 2 предельному состоянию
Мозаика результатов проверки назначенных сечений по 2 предельному состоянию
Мозаика результатов проверки назначенных сечений по местной устойчивости
Мозаика результатов проверки назначенных сечений по местной устойчивости

По результатам проверки делаем вывод, что несущая способность и устойчивость балок софитной площадки обеспечена, а деформации не превышают предельных значений.