Π”ΠΎΠ±Π°Π²ΠΈΡ‚ΡŒ Π² ΠΊΠΎΡ€Π·ΠΈΠ½ΡƒΠŸΠΎΠ·Π²ΠΎΠ½ΠΈΡ‚ΡŒ
Найти Π² Π”Π·Π΅Π½Π΅
ИникаммСдиа

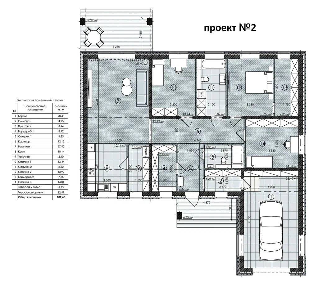
🏘НС Β«ΠΏΡ€ΠΎΡ…ΠΎΠ΄Π½Ρ‹Π΅Β» ΠΊΠΎΠΌΠ½Π°Ρ‚Ρ‹, Π° ΠΏΡ€ΠΎΠ΄ΡƒΠΌΠ°Π½Π½Ρ‹Π΅ ΠΌΠ°Ρ€ΡˆΡ€ΡƒΡ‚Ρ‹

Π’ Β«Π‘Π»ΠΈΠ·ΠΊΠΎΠΌΒ» Π²Ρ‹ Π½Π΅ Π±ΡƒΠ΄Π΅Ρ‚Π΅ ΠΈΠ΄Ρ‚ΠΈ Π² Ρ‚ΡƒΠ°Π»Π΅Ρ‚ Ρ‡Π΅Ρ€Π΅Π· Π³ΠΎΡΡ‚ΠΈΠ½ΡƒΡŽ, Π³Π΄Π΅ сидят гости. Бпальни Π΄Π΅Ρ‚Π΅ΠΉ ΠΈ Π±Π°Π±ΡƒΡˆΠΊΠΈ Π½Π΅ Π±ΡƒΠ΄ΡƒΡ‚ ΡΠΎΡΠ΅Π΄ΡΡ‚Π²ΠΎΠ²Π°Ρ‚ΡŒ с домашним ΠΊΠΈΠ½ΠΎΡ‚Π΅Π°Ρ‚Ρ€ΠΎΠΌ. КаТдая ΠΊΠΎΠΌΠ½Π°Ρ‚Π° ΠΈΠΌΠ΅Π΅Ρ‚ Π»ΠΎΠ³ΠΈΡ‡Π½Ρ‹ΠΉ ΠΈ ΠΈΠ·ΠΎΠ»ΠΈΡ€ΠΎΠ²Π°Π½Π½Ρ‹ΠΉ доступ. Π­Ρ‚ΠΎ Ρ€Π΅ΡˆΠ°Π΅Ρ‚ Π³Π»Π°Π²Π½ΡƒΡŽ ΠΏΡ€ΠΎΠ±Π»Π΅ΠΌΡƒ совмСстного проТивания β€” сохранСниС Π»ΠΈΡ‡Π½Ρ‹Ρ… Π³Ρ€Π°Π½ΠΈΡ†.

🏘НС Β«ΠΏΡ€ΠΎΡ…ΠΎΠ΄Π½Ρ‹Π΅Β» ΠΊΠΎΠΌΠ½Π°Ρ‚Ρ‹, Π° ΠΏΡ€ΠΎΠ΄ΡƒΠΌΠ°Π½Π½Ρ‹Π΅ ΠΌΠ°Ρ€ΡˆΡ€ΡƒΡ‚Ρ‹.

Π’ Β«Π‘Π»ΠΈΠ·ΠΊΠΎΠΌΒ» Π²Ρ‹ Π½Π΅ Π±ΡƒΠ΄Π΅Ρ‚Π΅ ΠΈΠ΄Ρ‚ΠΈ Π² Ρ‚ΡƒΠ°Π»Π΅Ρ‚ Ρ‡Π΅Ρ€Π΅Π· Π³ΠΎΡΡ‚ΠΈΠ½ΡƒΡŽ, Π³Π΄Π΅ сидят гости. Бпальни Π΄Π΅Ρ‚Π΅ΠΉ ΠΈ Π±Π°Π±ΡƒΡˆΠΊΠΈ Π½Π΅ Π±ΡƒΠ΄ΡƒΡ‚ ΡΠΎΡΠ΅Π΄ΡΡ‚Π²ΠΎΠ²Π°Ρ‚ΡŒ с домашним ΠΊΠΈΠ½ΠΎΡ‚Π΅Π°Ρ‚Ρ€ΠΎΠΌ. КаТдая ΠΊΠΎΠΌΠ½Π°Ρ‚Π° ΠΈΠΌΠ΅Π΅Ρ‚ Π»ΠΎΠ³ΠΈΡ‡Π½Ρ‹ΠΉ ΠΈ ΠΈΠ·ΠΎΠ»ΠΈΡ€ΠΎΠ²Π°Π½Π½Ρ‹ΠΉ доступ. Π­Ρ‚ΠΎ Ρ€Π΅ΡˆΠ°Π΅Ρ‚ Π³Π»Π°Π²Π½ΡƒΡŽ ΠΏΡ€ΠΎΠ±Π»Π΅ΠΌΡƒ совмСстного проТивания β€” сохранСниС Π»ΠΈΡ‡Π½Ρ‹Ρ… Π³Ρ€Π°Π½ΠΈΡ†.

-2