Добавить в корзину
Позвонить
Найти в Дзене
Войти
Андрей Червяков "А4-правильный ф
36 подписчиков
Подписаться
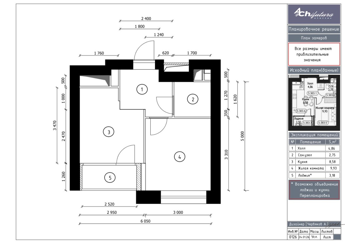
Вот что у нас получилось чисто математически по размерам данного объекта
1 февраля
1 фев
30
~1 мин
🧮
🧮
...
Читать далее
Вот что у нас получилось чисто математически по размерам данного объекта 🧮
Образование
190,2 тыс интересуются
Следить за темой
614643549.796.1777440781998.65613