Добавить в корзинуПозвонить
Найти в Дзене

Как сделать презентацию интерьера частного дома в нейросети

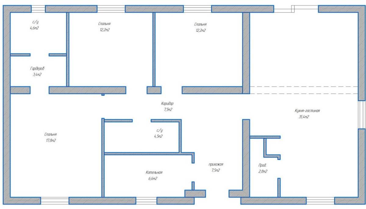
Сразу оговорюсь - это не интерьер как таковой. До профессионального интерьера даже эскизной стадии этим картинкам далеко. Работа позиционировалась как картинка для соц.сетей у человека, занимающегося строительством частных домов. Итак в качестве основы у нас вот такой план. Сначала все переводим. Прости, великий и могучий 1 этап. Грузим в ламарену и делаем картинку-основу. Экспериментально доказано что сразу все "поднять" вместе с мебелью не получается. Промт примерно такой. Use light beige parquet flooring in all living spaces (bedrooms, living room, kitchen, children's room, study) Use beige ceramic tiles in the boiler room, entrance hall/cloakroom, and bathroom Important: This is a first stage render - NO FURNITURE should be added. Show only the architectural elements: walls, doors, windows, and floor finishes. Use the plan strictly as the base: Keep the EXACT layout, proportions and thickness of all walls Maintain precise room shapes and sizes as shown in the 2D drawing Do NOT cha

Сразу оговорюсь - это не интерьер как таковой. До профессионального интерьера даже эскизной стадии этим картинкам далеко. Работа позиционировалась как картинка для соц.сетей у человека, занимающегося строительством частных домов. Итак в качестве основы у нас вот такой план.

Сначала все переводим. Прости, великий и могучий

-2

1 этап. Грузим в ламарену и делаем картинку-основу. Экспериментально доказано что сразу все "поднять" вместе с мебелью не получается. Промт примерно такой.

Use light beige parquet flooring in all living spaces (bedrooms, living room, kitchen, children's room, study)

Use beige ceramic tiles in the boiler room, entrance hall/cloakroom, and bathroom

Important: This is a first stage render - NO FURNITURE should be added. Show only the architectural elements: walls, doors, windows, and floor finishes.

Use the plan strictly as the base:

Keep the EXACT layout, proportions and thickness of all walls

Maintain precise room shapes and sizes as shown in the 2D drawing

Do NOT change the opening direction of any door; hinge and swing directions must stay exactly as in the plan

Do NOT add, remove, move or resize any windows

Every architectural element in the drawing must appear in the same place in the 3D render

The render should show empty rooms with the specified floor finishes, allowing clear visualization of the space layout and proportions.

Ultra-detailed, clean, sharp, 3D floor plan render showing architectural elements only

-3

2 этап. Нужно примерно описать что вы хотите видеть в каждой из комнат. Лучше не писать указаний "слева, справа и т.д." чем более общие фразы вы пишете тем больше свободы получает нейросеть.

переводим на английский и грузим вместе с основой

-4

Что-то такое получится в итоге. Итераций получается много, это да. Например тут не "встал" холодильник в нишу, явно предназначенную для него. Можно упростить себе жизнь предварительно расставив мебель в ПО - архикаде или еще где-то. Если вам дали на это время.

Например так

Основа. Тут пришлось все расставить
Основа. Тут пришлось все расставить

результат

Хорошо видно некоторую "скромность" в цветах. Это результат отработки основы - нейросети изнчально дается белый цвет как исходные данные.
Хорошо видно некоторую "скромность" в цветах. Это результат отработки основы - нейросети изнчально дается белый цвет как исходные данные.